Prodej pozemku, Dubí - Mstišov, Mírová, 723 m2 (ID: 1953353)
Mírová, Dubí, Mstišov
(za nemovitost, včetně provize, právního servisu, stavebního povolení projektu 3kk)
Popis
Prodej stavebního pozemku o velikosti 723 m² v Dubí – Mstišov.
Nabízíme rovinný stavební pozemek, na kterém je částečně navezena zemina pro snadné srovnání terénu. Pozemek se nachází v klidném a příjemném prostředí s kompletní občanskou vybaveností v dosahu.
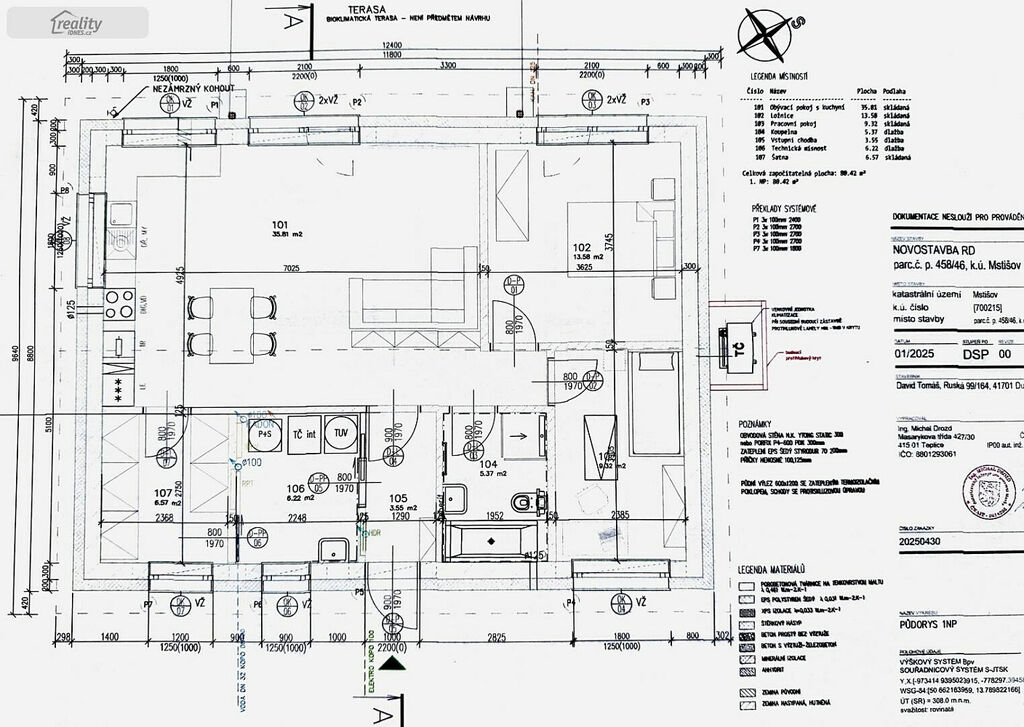
Inženýrské sítě jsou připraveny k okamžitému napojení – elektroměr již osazen a vodoměr je již zapojený. K pozemku je vydáno stavební povolení na novostavbu rodinného domu 3+kk o velikosti 80,42 m². Lze v případě z šatny udělat menší pokoj a tím bude dispozice 4+kk. Součástí bude kompletní projektová dokumentace.
V případě zájmu o koupi mě neváhejte kontaktovat. Financování Vám rádi pomůžeme zajistit.
Ideální místo pro realizaci Vašeho vysněného bydlení.
Máte zájem o tuto nemovitost?
Smetanovo návrší 210/11, Dubí
Pomůžeme Vám!
Pomůžeme Vám!
Kontakt

Simona Červená
Přihlášení k odběru
Nenechte si ujít nejnovější nabídky prodeje pozemků v Dubí.
Podobné nabídky

Prodej pozemku, Dubí, 25736 m2
1 286 800 Kč

Prodej pozemku pro bydlení, Dubí, Mírová, 715 m2
1 950 000 Kč

Prodej zahrady, Dubí, B. Němcové, 312 m2
650 000 Kč

Prodej pozemku pro bydlení, Dubí, Bílinská, 677 m2
2 700 000 Kč