Prodej činžovního domu, Ústí nad Labem - Krásné Březno, Svádovská, 387 m2 (ID: 1953346)
Svádovská, Ústí nad Labem, Krásné Březno
(za nemovitost, včetně provize, právního servisu)
Popis
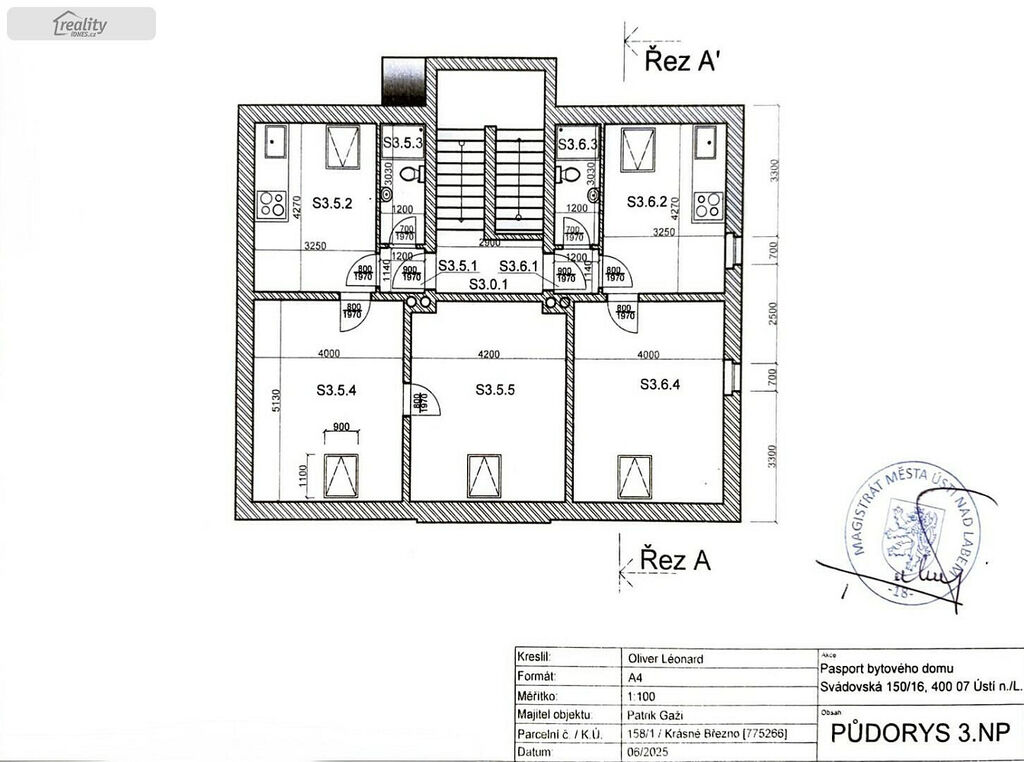
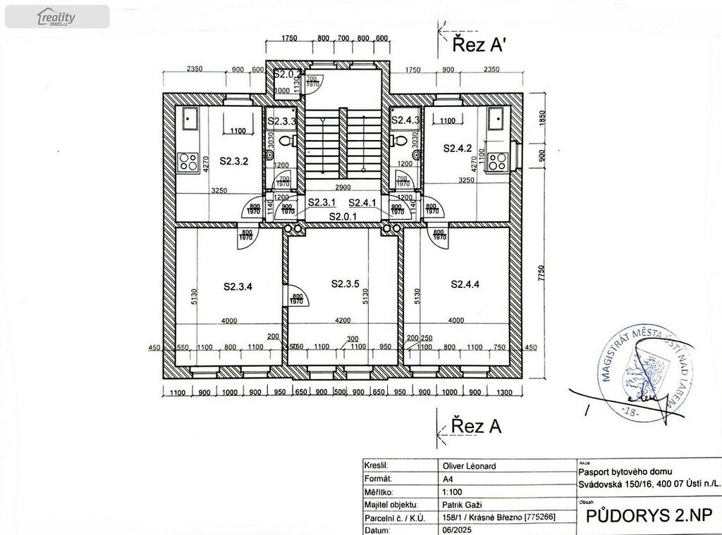
Nabízíme Vám bytový dům v Krásném Březně, ulice Svádovská. Nyní probíhá rekonstrukce, kde bude celkem 6 bytových jednotek.
Byt č. 1 - 41,13 m²
Byt č. 2 - 42,06 m²
Byt č. 3 - 60,55 m²
Byt č. 4 - 39,40 m²
Byt č. 5 - 60,55 m²
Byt č. 6 - 39,40 m²
Zatím je hotová nová střecha s krovy (krytina plech), stropy, podlahy, trámy, rozvod elektřiny, vody, nové okna. Součástí je pasport bytového domu.
Výměry: 1. PP- 45,21m², 1. NP -108,49 m², 2. NP - 118,13m², 3. NP - 115,19m²
Výhodou je vjezd do dvora a větší pozemek, který mohou poté nájemníci využívat.
Uvedená cena je za stav dokončení. V případě, že tomu tak nebude je majitel ochoten jednat.
Financování zařídíme.
Máte zájem o tuto nemovitost?
Smetanovo návrší 210/11, Dubí
Pomůžeme Vám!
Pomůžeme Vám!
Kontakt

Simona Červená
Přihlášení k odběru
Nenechte si ujít nejnovější nabídky prodeje činžovních domů v Ústí nad Labem.
Tipy Realitymatu