Pronájem bytu 4+1, Praha - Dejvice, Kladenská, 125 m2
Kladenská, Praha, Dejvice
(+ poplatky)
Popis
Do tohoto parádního bytu hledáme fajnovou rodinu nebo i jen pár, který má rád prostor a ocení styl, v jakém je byt provedený. Nabízíme útulné kvalitní bydlení s výhledem dlouhodobého pronájmu.
Byt je to opravdu velkorysý! Má dostatečně veliké místnosti, poctivé dřevěné parkety, velká Euro okna s dvojskly a předokenními elektrickými roletami, pěkné výhledy a orientaci na všechny světové strany. Kromě toho spoustu různých úložných vestavěných skříní a zrekonstruované původní prvky. V srdci bytu Vás jistě okouzlí nádherný prostor, který může vzniknout propojením haly (s otevírací prosklenou stěnou) a obývacího pokoje.
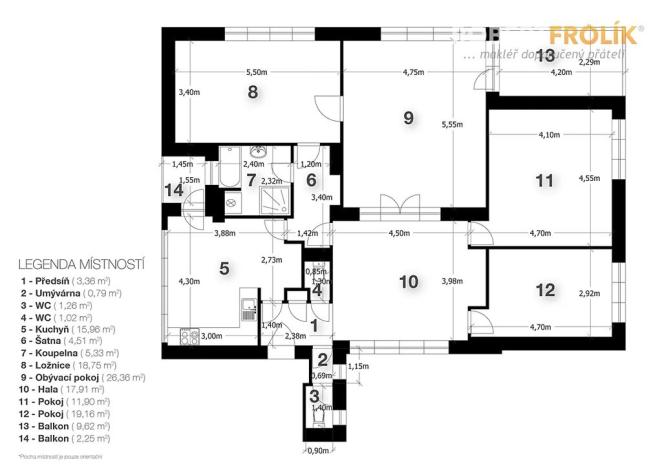
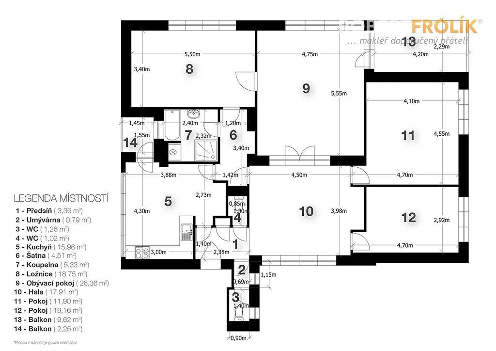
Najdete ho v 1. patře výborně udržované vilky, v ulici Kladenská, jen pár kroků od stanice metra Bořislavka. Ve své celkové ploše cca 125 m2 (+ terasa cca 9 m2) Vám nabídne: vstupní chodbu, halu, obývací pokoj, 3 samostatné ložnice, kuchyni s malou lodžií, koupelnu a dvě WC. Do bytu se vstupuje po společném domovním schodišti. Sousedy budete mít jen pod a nad bytem, protože byt zabírá celé patro vilky.
Je vytápěn vlastním plynovým kombi kotlem, který ohřívá i teplou vodu. V kuchyni zůstane myčka, sklokeramická varná deska, elektrická trouba a digestoř. Může být i pračka. V koupelně je kromě vany a sprchového koutu i bidet. Obě WC jsou samostatné.
Jedno auto můžete parkovat v garáži přímo u domu (výška je na běžný osobák) a druhé (např. SUV) klidně před garáží. Garáž je v ceně nájemného.
Za nákupy a různými službami to budete mít pár kroků do obchodního centra Bořislavka. V ulicích kolem domu pak najdete i různé další obchůdky, malé kavárničky, restaurace a pod..
Kromě nájemného budete platit zálohy na služby (voda - vlastní měření, odpad, osvětlení domu, revize kotle) v částce 2.000 Kč/měs. + spotřebu elektřiny a plynu (převádí se na nájemce). Na elektřinu odhaduji 2.000 Kč, plyn 2.500 Kč. Nájemné a zálohy se platí měsíčně předem, jistota je 2x nájemné, provize 1 nájemné.
Byt je ihned volný, připravený k dlouhodobému pronájmu.
Dlouho neváhejte a objednejte se na prohlídku, ať Vám byt neuteče! Takových bytů totiž v nabídce moc není!
PENB není k dispozici, dle zákona uvádím třídu G.
Máte zájem o tuto nemovitost?
Reality FROLÍK | privátní realitní makléř
Národní obrany 589/10, Praha 6
Pomůžeme Vám!
Pomůžeme Vám!
Kontakt

Robert Frolík
Přihlášení k odběru
Nenechte si ujít nejnovější nabídky pronájmu bytů 4+1 v Praze 6.