Pronájem skladu, Praha - Hostivař, U továren, 450 m2
U továren, Praha 10, Hostivař
Popis
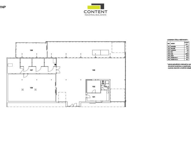
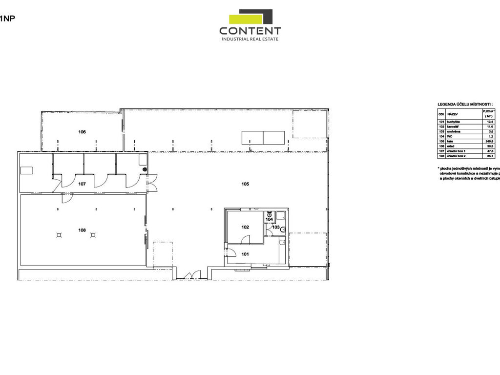
Praha 10 - Hostivař, ulice U Továren. Exkluzivně a bez provize nabízíme k pronájmu samostatnou halu 450 m², vhodnou pro skladování nebo velkoobchod, která se skladá z:
skladová část – 250 m², chladící boxy - 160 m², kancelářské prostory a zázemí – 40 m².
- K dispozici od 1.3.2026,
- budova zateplena, vytápěna plynovým kotlem,
- výška stropu 3 m, betonová podlaha, dlažba, dobré denní světlo,
- 3 x přímý vjezd – největší 2,7 x 2,7 m,
- chladící jednotky schopny chladit nejméně na 4°C,
- kanceláře s kuchyňkou a sociálním zázemím,
- prosklený osobní vstup
- dostatečné manipulační a parkovací plochy,
- bezproblémová dostupnost pro TIR a ostatní dopravu.
Cena za celý objekt 110.000,-kč/měsíc + energie.
Pro více informací nás kontaktujte. V případě zájmu vám rádi zajistíme prohlídku nemovitosti.
Máte zájem o tuto nemovitost?

Průmyslová 1472/11, Praha 10
Pomůžeme Vám!
Pomůžeme Vám!
Kontakt

David Machač
Přihlášení k odběru
Nenechte si ujít nejnovější nabídky pronájmu skladů v Praze 10.