Dražba pole, Žihobce, 2193 m2 (ID: 1950837)
Žihobce
Popis
ředmětem prodeje jsou pozemky:
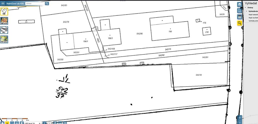
pozemek p.č.st. 218, zastavěná plocha a nádvoří
součástí je stavba: bez č.p./č.e., tech. vyb., bez LV
pozemek p.č. 542/30, jiná plocha
pozemek p.č. 542/91, manipulační plocha
Výše uvedené nemovité věci jsou zapsány v katastru nemovitostí vedeném Katastrálním úřadem pro Plzeňský kraj, katastrální pracoviště Klatovy, na listu vlastnictví č. 92, pro katastrální území Žihobce, obec Žihobce.
Pozemek parc.č. St. 218 o výměře 9 m2 je evidován v katastru nemovitostí jako zastavěná plocha a nádvoří. Na pozemku stojí stavba bez č.p. /č.ev. stavba technického vybavení. Stavba je ve vlastnictví jiného subjektu a není předmětem ocenění (parc. č. 272, LV 428). Oceňovaný pozemek parc.č. 542/30 o výměře 1190 m2 je evidovaný v katastru nemovitostí jako ostatní plocha, způsob využití jiná plocha. Podle platného územního plánu je pozemek regulován jako VZ- plochy zemědělské- plochy staveb a zařízení. Pozemek parc.č. 542/91 o výměře 994 m2 je evidovaný v katastru nemovitostí jako ostatní plocha, způsob využití manipulační plocha. Pozemek nepravidelného tvaru tvoří funkční celek s nemovitostmi v areálu pod společným oplocením. Podle platného územního plánu jsou pozemky regulovány jak VZ- plochy zemědělské – plochy staveb a zařízení.
Oceňované pozemky se nachází v severní části obce Žihobce v prostorách bývalého zemědělského areálu. Obec Žihobce se nachází cca 8 km východně od Sušice, kde je veškerá občanská vybavenost. V obci je obchod s potravinami, pošta, základní a mateřská škola. V obci je zastávka autobusových spojů. Lokalita se zanedbatelným nebezpečím výskytu záplav.
V katastru nemovitostí je evidováno omezení vlastnického práva, které však nemá vliv na cenu obvyklou:
Věcné břemeno právo stavby a instalace kabelové přípojky podzemního kabelu VN v rozsahu dle geometrického plánu. Oprávnění pro SD Klatovy s.r.o., povinnost k parcela St. 272, 542/91
Věcné břemeno užívání a přístupu za účelem údržby a oprav kabelové přípojky a trafostanice. Oprávnění pro SD Klatovy s.r.o., povinnost k parcela St. 272, 542/91
Věcné břemeno chůze a jízdy za účelem přístupu a příjezdu k FVE a jejich součástem a příslušenstvím, trafostanici a kabelové přípojce. Oprávnění pro SD Klatovy s.r.o., povinnost k parcela St. 272, 542/91.
Máte zájem o tuto nemovitost?
Dvořákova 44/14, Brno-město
Pomůžeme Vám!
Pomůžeme Vám!
Kontakt

Magdaléna Kryštofová
Přihlášení k odběru
Nenechte si ujít nejnovější nabídky dražby polí v Žihobcích.
Podobné nabídky

Dražba pole, Sušice, 4799 m2
541 333 Kč