Prodej bytu 3+kk, Plzeň, Zahradní, 73 m2 (ID: 1949901)
Zahradní, Plzeň, Východní Předměstí
Popis
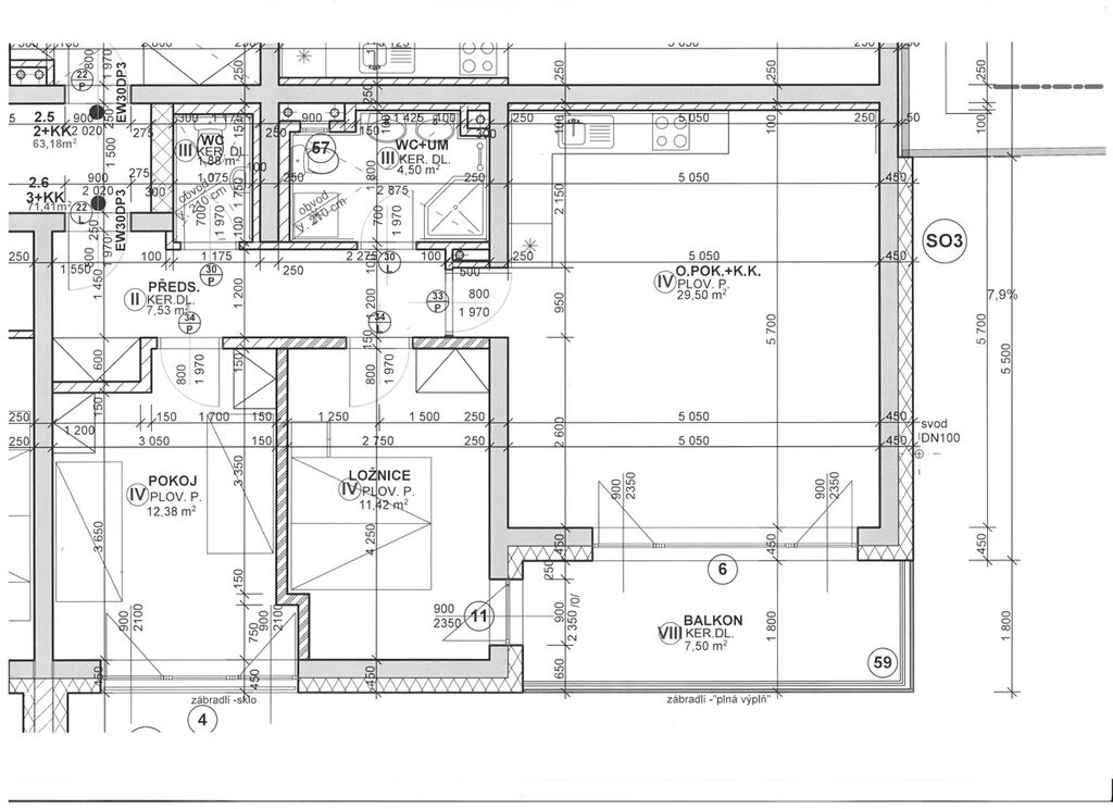
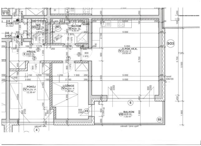
Nabízíme Vám k prodeji nový byt o velikosti 3+kk+balkon označený jako byt 13, nacházející se ve 2. NP o celkové ploše včetně balkonu a zděného sklepa 80,8 m2, který je stavěn v rámci projektu Bydlení Zahradní v žádané plzeňské čtvrti Slovany na rohu Zahradní a Hradišťské ulice v docházkové vzdálenosti od kompletní občanské vybavenosti a zeleně.
V bytě bude k dispozici obývací pokoj s kuchyňským koutem (29,50 m2), ložnice (11,42 m2), další pokoj (12,38 m2), předsíň (7,53 m2), koupelna s WC (4,50 m2), další samostatné WC (1,88 m2) a balkon (7,50 m2) přístupný z ob. pokoje a ložnice. Dále k bytu náleží zděný sklep (1,98 m2) v 1. podzemním podlaží domu. Byt bude osazen velmi dobrými standardy zařizovacích předmětů.
Tento byt zde uvádíme jako modelový, v prodeji jsou ještě další byty 3+kk umístěné v různých podlažích domu. K dispozici jsou pro Vás také byty 2+kk.
Podrobné informace získáte u prodejce bytů ABJ reality s.r.o.
K bytu je možné si zakoupit zastřešené parkovací stání v 1.PP nebo venkovní parkovací stání nacházející se na přilehlém pozemku u domu.
Byty jsou orientovány jak směrem do Zahradní a Hradišťské ulice – jihozápadní orientace, tak do vnitrobloku s východní orientací.
Projekt Bydlení Zahradní tak představuje ideální kombinaci bydlení v žádané plzeňské čtvrti Slovany s dostupnou občanskou vybaveností v docházkové vzdálenosti a dostupnými vycházkovými trasami podél řeky Radbuzy, které Vás dovedou až do centra Plzně, kam dojdete pěšky i s malými dětmi.
Samotná budova bytového domu má pět nadzemních podlaží s 32 byty a jedno podzemní podlaží, ve kterém budou k dispozici částečně krytá parkovací stání a sklepy pro jednotlivé byty. Bytový dům má jeden centrální vchod s výtahem. Nebudou zde komerční prostory. Vytápění domu a ohřev vody bude zajištěno centrálně pomocí teplovodu.
Zahájení výstavby bytového domu je naplánováno na podzim 2024, dokončení domu je naplánováno na podzim roku 2026.
Aktuality z výstavby domu: jsou dokončovány práce na 1.PP a provádí se příprava prací na 1.NP.
Máte zájem o tuto nemovitost?
sady Pětatřicátníků 316/6, Plzeň
Pomůžeme Vám!
Pomůžeme Vám!
Kontakt

Jiří Bažant
Přihlášení k odběru
Nenechte si ujít nejnovější nabídky prodeje bytů 3+kk v Plzni.
Podobné nabídky

Prodej bytu 3+kk, Plzeň, Edvarda Beneše, 84 m2
Cena na vyžádání

Prodej bytu 3+kk, Plzeň, Na Roudné, 94 m2
Cena na vyžádání

Prodej bytu 3+kk, Plzeň - Doudlevce, Heyrovského, 158 m2
Cena na vyžádání

Prodej bytu 3+1, Plzeň, Thámova, 68 m2
Cena na vyžádání