Pronájem bytu 4+kk, Praha - Vysočany, Pod Harfou, 120 m2
Pod Harfou, Praha, Vysočany
(včetně poplatků)
Popis
Tento luxusní, sětlý, prostorný mezonetový byt k pronájmu se nachází v klidné a žádané lokalitě Praha 9 – Pod Harfou.
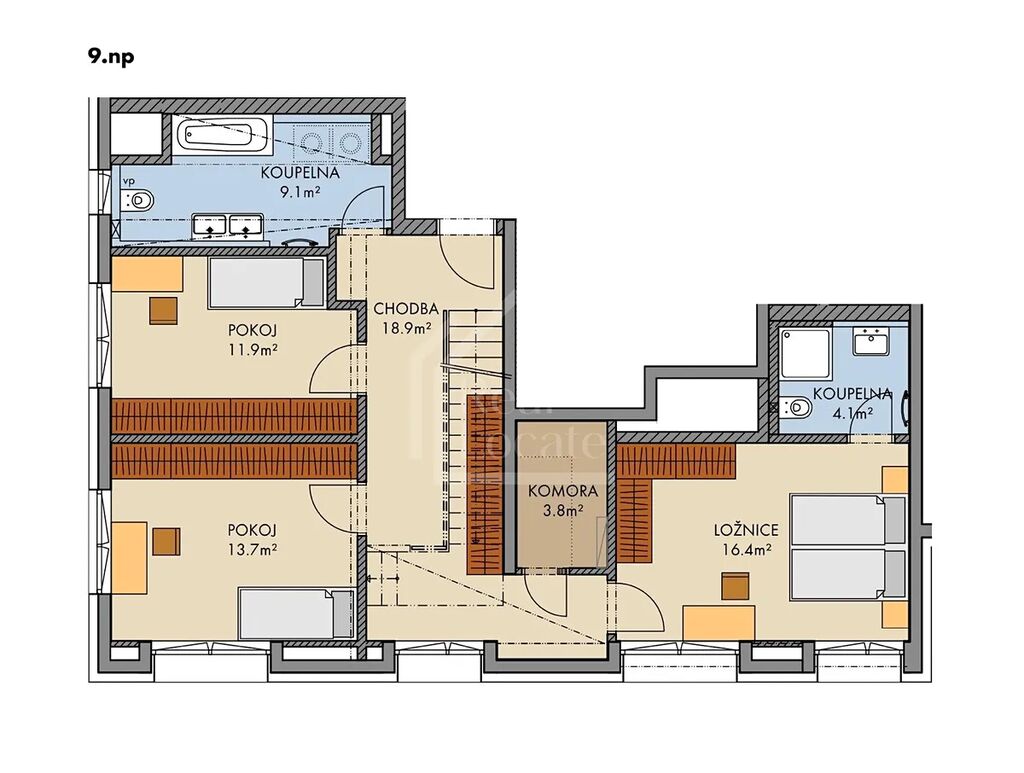
Mezonet o celkové ploše 120 m² nabízí komfortní a praktické bydlení s dostatkem soukromí a nachází se v 9. a 10. nadzemním podlaží s orientací na jih, západ a sever.
Ve spodním patře jsou tři pokoje, dvě koupelny a komora. Horní patro tvoří světlý otevřený obývací prostor s plně vybavenou kuchyní značky Elektrolux, samostatné WC a velká terasa o rozloze 40 m², z níž je část krytá a vhodná pro umístění vířivky.
V každé místnosti je klimatizace, podlahové vytápění a venkovní rolety. Okna jsou izolační trojskla v hliníkovém rámu, podlahy vinylové v barvě světlého dubu a zábradlí na schodišti je skleněné.
Přímo u domu vede cyklostezka. Okolní zástavba je převážně obytná s obchody, službami a hypermarketem. Do centra Prahy se dostanete autem za 15 minut. Tramvajová zastávka je 10 minut pěšky s návazností na metro. Obchodní centrum Galerie Harfa je v docházkové vzdálenosti.
Nájemné činí 60 000 Kč / měsíčně včetně poplatků.
Elektřina se převádí na nájemce.
Vratná kauce je 150 000 Kč.
Součástí nájmu jsou dvě garážová stání a sklep.
Pro více informací a sjednání prohlídky nás kontaktujte.
Máte zájem o tuto nemovitost?
Lublaňská 5/57, Praha
Pomůžeme Vám!
Pomůžeme Vám!
Kontakt

Pavlína Prokešová
Přihlášení k odběru
Nenechte si ujít nejnovější nabídky pronájmu bytů 4+kk v Praze 9.