Prodej vily, Liberec - Liberec I-Staré Město, Ruprechtická, 481 m2 (ID: 1947924)

Ruprechtická, Liberec (nečleněné město)


20 990 000 Kč /za nemovitost
HYPOTÉKA od 93 813 Kč /měs.
Regionální dodavatelé v Liberci

Rekonstrukce

Úklidové služby

Popis

Exkluzivně nabízíme k prodeji historickou vilu v katastrálním území Liberec – Staré Město, ulice Ruprechtická. Vila byla přestavěna do dnešní podoby v roce 1928 pro továrníka Eduarda Hasse a v roce 1948 byla spolu s továrnou znárodněna a nyní vedena jako „průmyslový objekt“.
Nemovitost se nachází v atraktivní lokalitě širšího centra města s výbornou dopravní dostupností a možností parkování před domem nebo v přilehlé slepé ulici.
Až do privatizace v roce 1993 vila sloužila v přízemí jako ordinace závodního lékaře a v prvním patře a podkroví jako ubytování zaměstnanců. Od roku 2003 probíhala postupná rekonstrukce s důrazem na zachování původního historického vzhledu objektu. Byla provedena výměna oken, nová střecha včetně klempířských prvků a odborná rekonstrukce fasády. Nemovitost je v dobrém technickém stavu.
V současné době je v přízemí nadále provozována ordinace praktického lékaře. V prvním patře se nachází čtyři bytové jednotky 1+kk a prostor vhodný pro vybudování další bytové jednotky 1+kk o výměře cca 20 m². V podkroví je umístěn jeden byt 1+kk a dva byty 2+kk.
Vytápění objektu je zajištěno čtyřmi plynovými kotli. Vnitřní prostory byly modernizovány dle současných standardů bydlení. Objekt je částečně podsklepený, sklepní prostory jsou suché, větrané a plně využitelné. Za domem se nachází menší pozemek s možností parkování.
Nemovitost představuje bezpečnou a stabilní investici s atraktivním konzervativním ročním výnosem cca 900 000 až 1 000 000 Kč dle míry obsazenosti. Díky své poloze a charakteru je vhodná také jako reprezentativní sídlo firmy, případně kombinace bydlení, komerčních služeb a kanceláří.
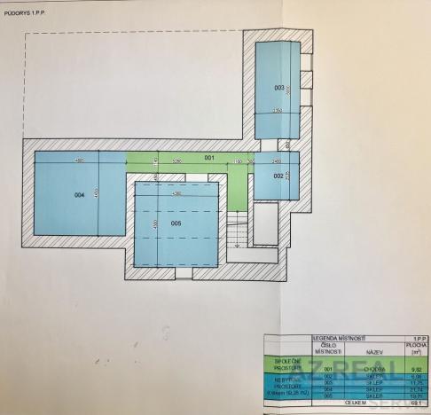
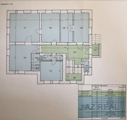
Kompletní půdorysy s výměrami jsou k dispozici mezi fotografiemi.

Cena
20 990 000 Kč /za nemovitost Spočítat hypotéku
Aktualizováno
2. 3. 2026
Adresa
Ruprechtická, Liberec (nečleněné město)
ID
0858
Stavba
Cihlová
Stav objektu
Velmi dobrý
Vybaveno
Částečně
Typ objektu
Přízemní
Druh objektu
Řadový
Lokalita objektu
Centrum obce
Užitná plocha
481 m2
Zastavěná plocha
194 m2
Plocha pozemku
417 m2
Plocha zahrady
150 m2
Třída energetické náročnosti
G - Mimořádně nehospodárná
Elektřina
400V
Plyn
Plynovod
Odpad
Veřejná kanalizace
Komunikace
Asfaltová
Telekomunikace
Kabelové rozvody
Doprava
MHD
Voda
Vodovod
Převod do OV

Máte zájem o tuto nemovitost?

Tímto, v souladu s nařízením Evropského parlamentu a Rady (EU) 2016/679, v platném znění, prohlašuji, že mi je alespoň 16 let a uděluji tak svůj souhlas se zpracováním zadaných údajů (jméno, telefon, e-mail, ip adresa) společnosti B3 Technology, s.r.o., IČ: 07330600, se sídlem Novostavby 126/23, 435 11 Lom (správce dat), za účelem předání dotazu z tohoto formuláře Vámi vybranému inzerentovi a zpětného kontaktování mé osoby. Osobní údaje bude správce zpracovávat manuálně i automaticky přímo prostřednictvím svých zaměstnanců. Informace předané tímto formulářem budou uloženy v databázi správce maximálně po dobu 10 let. Odvolání souhlasu s uložením a zpracováním poskytnutých dat lze e-mailem na info@realitymat.cz. V případě podezření na neoprávněné použití Vámi poskytnutých údajů máte právo předat podnět k šetření Úřadu pro ochranu osobních údajů. Více informací
Chystáte se prodat nemovitost?
Pomůžeme Vám!

Kontakt

Mgr. Martin Mrugala

Mgr. Martin Mrugala

Přihlášení k odběru

Nenechte si ujít nejnovější nabídky prodeje vil v Liberci.

Podobné nabídky