Prodej ubytování, Mladé Buky, 133 m2
Mladé Buky
(včetně poplatků, včetně provize, včetně právního servisu)
Popis
Nabízím vám k prodeji kompletně zrekonstruovaný dvouapartmánový dům v malebné horské obci Mladé Buky. Nemovitost se nachází v klidné části obce s výbornou dostupností do Trutnova i do Pece pod Sněžkou. V bezprostřední blízkosti cca 200 metrů najdete ski areál, golfové hřiště, bobovou dráhu nebo třeba dětský park Hříčky Buky, dříve Baldův Svět.
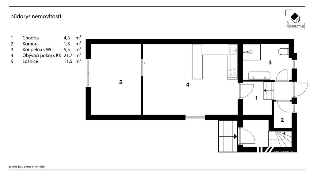
Dům je dispozičně řešen jako dva samostatné apartmány, z nichž každý má vlastní přímý vchod zvenčí. Větší apartmán má plochu 88 m2 a menší apartmán zabírá 44,5 m2. Vzhledem k typu nemovitosti i ke svému umístění je ideální jak pro vlastní bydlení, tak jako investiční nemovitost pro krátkodobé pronájmy s předpokládaným výnosem až 1 mil. ročně.
Základní informace:
• Pozemek o výměře 338 m² - dům, dlážděné nádvoří a samostatné úložné kóje
• Celková podlahová plocha domu 132,6 m², tři podlaží bez výtahu
• Vytápění a ohřev vody: elektrický kotel (podlahové topení, podkroví radiátory)
• Veřejný vodovod a kanalizace
1. apartmán - 88 m2
Větší apartmán má vchod zpředu budovy. Za vstupními dveřmi se nachází chodba se schodištěm, která propojuje jednotlivá podlaží. V přízemí je umístěna prostorná koupelna vybavená sprchovým koutem, toaletou a dvěma umyvadly.
V prvním patře se nachází obývací části s moderní kuchyňskou linkou vybavenou vestavěnými spotřebiči – elektrickou troubou, varnou deskou, mikrovlnnou troubou, lednicí s mrazákem a myčkou. Kuchyňský prostor je doplněn o promyšlené úložné prostory po celém obvodu zdi.
Od obývací části je masivními posuvnými dveřmi elegantně oddělena zadní část místnosti, kde může vzniknout ložnice.
Ve druhém patře se nachází velká podkrovní místnost s odhalenými dřevěnými trámy, která prostoru dodává útulný a přirozený charakter. Skvěle poslouží jako dětský pokoj s hernou.
2. apartmán - 44,5 m2
Menší apartmán má samostatný vstup ze zadní části domu. Za vstupem se nachází technická místnost a koupelna. Hlavní obytný prostor je situovaný o pár schodů výše, kde se nachází kuchyňský kout spojený s jídelní a obývací částí. Zadní část místnosti je opět oddělena designovými posuvnými dveřmi a poslouží tak jako útulná ložnice.
Vytápění a ohřev vody je v celém domě zajišťované elektrickým kotlem. V obou apartmánech řešeno podlahově, v koupelnách je navíc topný žebřík. Pouze v podkroví většího apartmánu zajišťují topení radiátory. Vodu i odpadní hospodářství zajišťují veřejné sítě. Jedná se o původní cihlovou budovu, která prošla kompletní náročnou rekonstrukcí.
Dům je navíc připraven na moderní způsob správy a zabezpečení – majitel při rekonstrukci myslel na budoucí pohodlí. Všechny rozvody a technické přípravy jsou hotové pro instalaci kamerového systému, alarmu, chytré domácnosti i bezkontaktního vydávání klíčů přes kódový zámek. Tato infrastruktura umožňuje pohodlné a bezpečné ovládání domu na dálku, což ocení nejen majitelé využívající nemovitost jako víkendové bydlení, ale především investoři plánující krátkodobé pronájmy. Díky těmto řešením je provoz domu snadný, přehledný a bez nutnosti neustálé osobní přítomnosti.
Tato nemovitost v Mladých Bukách zaujme každého, kdo hledá něco víc než jen dům. Nabízí promyšlené dispoziční řešení, kvalitní rekonstrukci, soukromí, investiční potenciál a výjimečnou polohu v těsné blízkosti přírody, sportovního i rodinného vyžití. Ať už sníte o vlastním bydlení v podhůří Krkonoš, hledáte víkendový únik z města nebo plánujete výnosnou investici, právě jste ji našli.
Přijeďte se sami přesvědčit, co všechno může tenhle dům nabídnout – rád vás nemovitostí osobně provedu.
Máte zájem o tuto nemovitost?
Za Pasáží 1429, Pardubice, Zelené Předměstí
Pomůžeme Vám!
Pomůžeme Vám!
Kontakt

Kryštof Kalhous
Přihlášení k odběru
Nenechte si ujít nejnovější nabídky prodeje ubytování v Mladých Bukách.
Tipy Realitymatu

Prodej činžovního domu, Úpice, Dr. A. Hejny, 549 m2
8 900 000 Kč

Prodej ubytování, Rudník, 88 m2
7 390 000 Kč
Podobné nabídky

Prodej ubytování, Dolní Lánov, 164 m2
6 490 000 Kč

Prodej ubytování, Chvaleč - Petříkovice, 235 m2
8 990 000 Kč

Prodej ubytování, Bílé Poličany, 1000 m2
9 000 000 Kč

Prodej ubytování, Pec pod Sněžkou, 415 m2
12 900 000 Kč