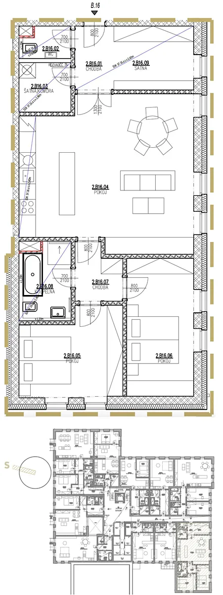
Prodej bytu 3+kk, Jablonec nad Nisou, Krkonošská, 91 m2 (ID: 1947607)
Krkonošská, Jablonec nad Nisou, Kokonín
Popis
Byt připravený k nastěhování – kolaudace dokončena!
Nabízíme k prodeji velkorysý byt B16 o dispozici 3+kk a celkové výměře 96,5 m² dle NOZ (čistá užitná plocha 90,9 m²). Byt se nachází v 2. podlaží a je orientován převážně na jihozápad. Byt disponuje, mimo jiné, technickou místností a velkou předsíní s možností přepažení na další pokoj/pracovnu, samozřejmostí je i sklepní kóje o velikosti 2,1 m². Cena zahrnuje i parkovací stání – vše je uvedeno včetně DPH.
Byt je součástí rezidenčního projektu Bytový dům Sklárna, který vzniká v klidné části Jablonce nad Nisou – Kokoníně, v areálu bývalé sklárny obklopeném zelení. Projekt nabízí celkem 39 bytových jednotek – v novostavbě i zrekonstruované části bývalé huti. Uzavřený areál bude sloužit výhradně rezidentům a jejich návštěvám, součástí je i dětské hřiště a společné zelené plochy.
Všechny byty v projektu mají vysoký standard vybavení: kvalitní vinylové podlahy s akustickou podložkou, teplovodní podlahové vytápění, francouzská okna s izolačním trojsklem, moderní sanita značky Grohe, velkoformátové obklady v koupelnách atd.
Lokalita spojuje výhody klidného bydlení v přírodě s plnou občanskou vybaveností města Jablonce nad Nisou. V blízkosti se nachází Černostudniční hřeben, Bártlův vrch i Jizerské hory – ideální pro bydlení, sport a relaxaci po celý rok.
Více informací a kompletní nabídku bytů najdete na webových stránkách projektu – odkaz naleznete níže v sekci Kontakt. Byt prodává přímo developer – neplatíte žádnou provizi!
Máte zájem o tuto nemovitost?
Palackého 3145/41, Jablonec nad Nisou
Pomůžeme Vám!
Pomůžeme Vám!
Kontakt

Filip Štěpán
Přihlášení k odběru
Nenechte si ujít nejnovější nabídky prodeje bytů 3+kk v Jablonci nad Nisou.
Tipy Realitymatu

Prodej bytu 3+kk, Harrachov - Nový Svět, 87 m2
8 990 000 Kč

Prodej bytu 3+1, Smržovka, Sportovní, 80 m2
3 500 000 Kč