Prodej bytu 1+kk, Jablonec nad Nisou, Krkonošská, 39 m2
Krkonošská, Jablonec nad Nisou, Kokonín
Popis
Byt připravený k nastěhování – kolaudace dokončena!
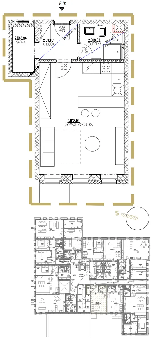
Nabízíme k prodeji prostorný byt B18 o dispozici 1+kk a celkové výměře 40,5 m² dle NOZ (čistá užitná plocha 38,7 m²). Byt se nachází 2. podlaží a je orientován převážně na západ. Jedná se o prostorné 1kk se samostatnou šatnou a samozřejmě i vč sklepní kóje o velikosti 2,7 m². Cena zahrnuje i parkovací stání – vše je uvedeno včetně DPH.
Byt je součástí rezidenčního projektu Bytový dům Sklárna, který vzniká v klidné části Jablonce nad Nisou – Kokoníně, v areálu bývalé sklárny obklopeném zelení. Projekt nabízí celkem 39 bytových jednotek – v novostavbě i zrekonstruované části bývalé huti. Uzavřený areál bude sloužit výhradně rezidentům a jejich návštěvám, součástí je i dětské hřiště a společné zelené plochy.
Všechny byty v projektu mají vysoký standard vybavení: kvalitní vinylové podlahy s akustickou podložkou, teplovodní podlahové vytápění, francouzská okna s izolačním trojsklem, moderní sanita značky Grohe, velkoformátové obklady v koupelnách atd.
Lokalita spojuje výhody klidného bydlení v přírodě s plnou občanskou vybaveností města Jablonce nad Nisou. V blízkosti se nachází Černostudniční hřeben, Bártlův vrch i Jizerské hory – ideální pro bydlení, sport a relaxaci po celý rok.
Více informací a kompletní nabídku bytů najdete na webových stránkách projektu – odkaz naleznete níže v sekci Kontakt. Byt prodává přímo developer – neplatíte žádnou provizi!
Máte zájem o tuto nemovitost?
Palackého 3145/41, Jablonec nad Nisou
Pomůžeme Vám!
Pomůžeme Vám!
Kontakt

Filip Štěpán
Přihlášení k odběru
Nenechte si ujít nejnovější nabídky prodeje bytů 1+kk v Jablonci nad Nisou.
Tipy Realitymatu

Prodej bytu 3+kk, Harrachov - Nový Svět, 87 m2
8 990 000 Kč

Prodej bytu 3+1, Smržovka, Sportovní, 80 m2
3 500 000 Kč
Podobné nabídky

Prodej bytu 1+kk, Harrachov, 28 m2
7 750 000 Kč

Prodej bytu 1+kk, Velké Hamry, 21 m2
2 250 000 Kč