Prodej bytu 3+kk, Praha - Smíchov, Nádražní, 64 m2

Nádražní, Praha, Smíchov


12 850 000 Kč /za nemovitost
HYPOTÉKA od 57 432 Kč /měs.
Regionální dodavatelé v Praze 5

Stěhovací služby

Výkup a prodej starého nábytku

Popis

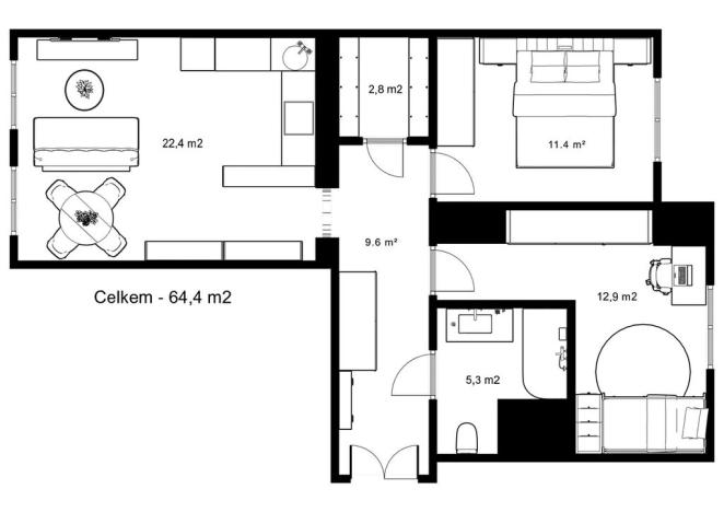
Exkluzivní nabídka světlého bytu o výměře 64 m2.
Pocitově velmi klidný a příjemný byt se nachází ve 2. P v pečlivě spravovaném a udržovaném cihlovém domě, ve správě výborně fungujícího SVJ.

Pocit komfortního bydlení, vzdušnosti a velkorysého prostoru dotváří vysoké stropy se sníženými podhledy s nainstalovaným odhlučněním.

Dispozici bytu tvoří tři samostatné neprůchozí místnosti, koupelna s toaletou a technická místnost.
K vybavení bytu patří kuchyňská linka s vestavěnými spotřebiči.

Orientace bytu je příznivá.
Obývací pokoj je orientován na západní světovou stranu, ložnice a dětský pokoj směřují do klidného vnitrobloku s orientací na východ.
Dostatek denního světla a zároveň snížení hluku do místností, zajišťují kvalitní dřevěná eurookna s izolačními dvojskly.

Byt byl kompletně a precizně zrekonstruován, je nově vymalovaný bez potřeby investic, ihned volný.
Ve fotogalerii se nachází i návrh možné úpravy obývacího pokoje a ložnice.

Parkování za symbolickou cenu formou ročního pronájmu, je možné na vyhrazeném parkovacím místě ve vnitrobloku.
K dispozici je prostorný sklep v suterénu domu o výměře 12 m2.

Lokalita s kompletní občanskou vybaveností.
Výborná dopravní dostupnost - stanice metra 2 minuty chůze, centrum města pohodlně dosažitelné v čase 10 minut.

V současnosti probíhá v okolí výstavba nových developerských projektů, které po dokončení zvýší investiční potenciál dynamicky se rozvíjejícího, městského centra levého břehu Vltavy.

Kompletní informace v RK.

Cena
12 850 000 Kč /za nemovitost Spočítat hypotéku
Aktualizováno
19. 9. 2025
Adresa
Nádražní, Praha, Smíchov
ID
N00380
Stavba
Cihlová
Stav objektu
Po rekonstrukci
Patro
2. z 3
Lokalita objektu
Centrum obce
Vlastnictví
Osobní
Užitná plocha
64 m2
Podlahová plocha
64 m2
Třída energetické náročnosti
G - Mimořádně nehospodárná
Elektřina
230V
Plyn
Plynovod
Odpad
Veřejná kanalizace
Topení
Ústřední plynové
Telekomunikace
Telefon, Internet, Kabelová televize, Kabelové rozvody
Doprava
Vlak, Dálnice, Silnice, MHD, Autobus
Voda
Vodovod
Sklep
Parkování

Máte zájem o tuto nemovitost?

Tímto, v souladu s nařízením Evropského parlamentu a Rady (EU) 2016/679, v platném znění, prohlašuji, že mi je alespoň 16 let a uděluji tak svůj souhlas se zpracováním zadaných údajů (jméno, telefon, e-mail, ip adresa) společnosti B3 Technology, s.r.o., IČ: 07330600, se sídlem Novostavby 126/23, 435 11 Lom (správce dat), za účelem předání dotazu z tohoto formuláře Vámi vybranému inzerentovi a zpětného kontaktování mé osoby. Osobní údaje bude správce zpracovávat manuálně i automaticky přímo prostřednictvím svých zaměstnanců. Informace předané tímto formulářem budou uloženy v databázi správce maximálně po dobu 10 let. Odvolání souhlasu s uložením a zpracováním poskytnutých dat lze e-mailem na info@realitymat.cz. V případě podezření na neoprávněné použití Vámi poskytnutých údajů máte právo předat podnět k šetření Úřadu pro ochranu osobních údajů. Více informací
Chystáte se prodat nemovitost?
Pomůžeme Vám!

Kontakt

Jiří Švára

Jiří Švára

Přihlášení k odběru

Nenechte si ujít nejnovější nabídky prodeje bytů 3+kk v Praze 5.

Podobné nabídky