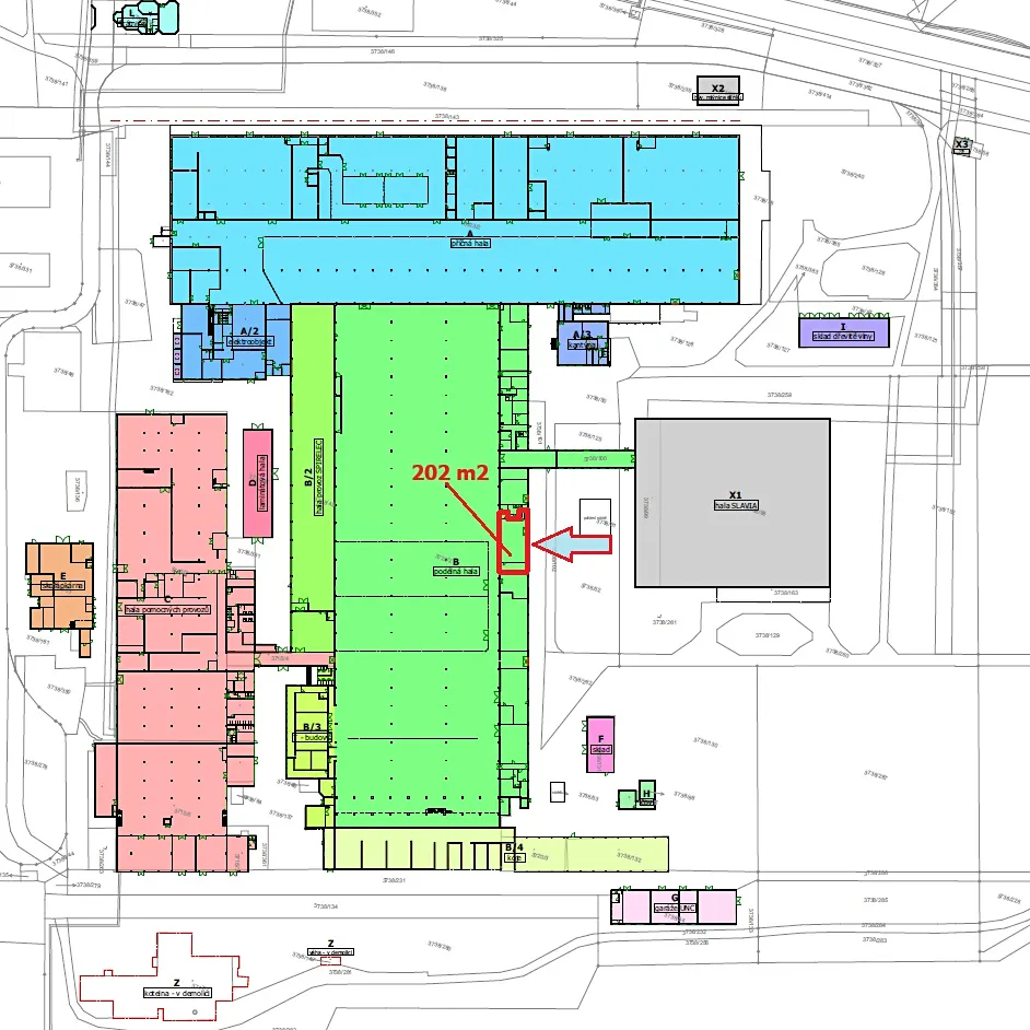
Pronájem skladu, Louny, Postoloprtská, 202 m2

Postoloprtská, Louny


100 Kč /za metr čtvereční / měsíc
Získejte výhodnou HYPOTÉKU
Regionální dodavatelé v Lounech

Okna a dveře

Rekonstrukce

Zámečnické práce

Popis

BEZ PROVIZE OD PŘÍMÉHO MAJITELE
Nabízíme k pronájmu skladovací a výrobní prostory v průmyslovém areálu v Lounech s výborným napojením na dálnici D7 směřující k německým hranicím nebo do Prahy. Areál nabízí množství jednotek různého typu a velikostí, již od 200 m2 a více (sklady, výrobní prostory, kanceláře, venkovní zpevněná a nezpevněná plocha, atd.) Přijďte a u nás si určitě vyberete!

DOSTUPNÝ SKLAD
◉ 202 m2 – nově připravovaný a stavebně upravený skladově výrobní prostor – 2x místnost, samostatný, zděný, vlastní vjezdová vrata 3x3,2m, 2x WC, příprava na kuchyňku, vlastní zpevněný vjezd do prostor, možné jeho variabilní využití.

DALŠÍ SKLADY
◉ v areálu další široká nabídka skladově výrobních prostor až 20.000 m2
◉ možnost pronájmu již od 200 m2 a více

DOSTUPNOST
◉ k dispozici ihned

SPECIFIKACE
◉ temperované prostory
◉ nosnost podlah min. 5t/m2
◉ železniční vlečka
◉ vjezd do areálu pro TIR
◉ velké manipulační plochy
◉ před areálem vlastní parkoviště + zastávka MHD Louny
◉ světlá výška 2,8 – až 3,6 m
◉ možnost pronájmu kanceláří v areálu
◉ přímý vjezd
◉ zázemí (2x WC, šatna, atd.)

LOKALITA
◉ Louny, Ústecký kraj, areál se nachází přímo u dálnice D7 (exit D7, Louny-západ)
◉ vzdálenosti: německé hranice 50 km, Praha 60 km

CENA
◉ od 100,- Kč/m2/měsíc (4 EUR/m2/měsíc)

POBÍDKY
◉ nabízíme rentfree
◉ dočasné snížení nájemného
◉ zajistíme stavební úpravy a požadavky na míru a na přání
◉ v případě zájmu o pronájem, se u nás určitě DOMLUVÍTE

Více informací, vč. prohlídky, na vyžádání zabezpečíme obratem.

Cena
100 Kč /za metr čtvereční / měsíc
Aktualizováno
19. 9. 2025
Adresa
Postoloprtská, Louny
Stavba
Cihlová
Stav objektu
Dobrý
Patro
1.
Lokalita objektu
Okraj obce
Užitná plocha
202 m2
Třída energetické náročnosti
G - Mimořádně nehospodárná
Ukazatel energetické náročnosti
843 kWh/m2 za rok
Elektřina
230V
Plyn
Plynovod
Odpad
Veřejná kanalizace
Komunikace
Asfaltová
Doprava
Vlak, Dálnice, Silnice, MHD, Autobus
Voda
Vodovod
Bezbarierový přístup
Parkování

Máte zájem o tuto nemovitost?

Tímto, v souladu s nařízením Evropského parlamentu a Rady (EU) 2016/679, v platném znění, prohlašuji, že mi je alespoň 16 let a uděluji tak svůj souhlas se zpracováním zadaných údajů (jméno, telefon, e-mail, ip adresa) společnosti B3 Technology, s.r.o., IČ: 07330600, se sídlem Novostavby 126/23, 435 11 Lom (správce dat), za účelem předání dotazu z tohoto formuláře Vámi vybranému inzerentovi a zpětného kontaktování mé osoby. Osobní údaje bude správce zpracovávat manuálně i automaticky přímo prostřednictvím svých zaměstnanců. Informace předané tímto formulářem budou uloženy v databázi správce maximálně po dobu 10 let. Odvolání souhlasu s uložením a zpracováním poskytnutých dat lze e-mailem na info@realitymat.cz. V případě podezření na neoprávněné použití Vámi poskytnutých údajů máte právo předat podnět k šetření Úřadu pro ochranu osobních údajů. Více informací
Chystáte se prodat nemovitost?
Pomůžeme Vám!

Kontakt

Mgr. Jiří Fritsch MBA

Mgr. Jiří Fritsch MBA

Přihlášení k odběru

Nenechte si ujít nejnovější nabídky pronájmu skladů v Lounech.

Podobné nabídky