Prodej vily, Ostrava, Českobratrská, 580 m2 (ID: 1945011)
Českobratrská, Moravská Ostrava
Popis
Reprezentativní sídlo na prestižní adrese v centru Ostravy. Vila, která osloví klienty, hledající pro své podnikatelké aktivity budovu prvorepublikové architektury v kombinaci s požadavky na zázemí odpovídající moderním trendům.
Špičkové zázemí, parkovací stání na pozemku vily, vynikající zviditelnění firmy a mnohem více nabízí tato nabídka prodeje vily na ul. Českobratrská v Moravské Ostravě.
Budova byla postavena dle návrhu architekta Ing. R. Hladiše z roku 1922. Užitná plocha budovy 580m2 plus technické zázemí je rozdělena do čtyř podlaží.
Hlavním vchodem z ulice do budovy vstoupíte do haly s recepcí, dále navazují dvě kanceláře a zasedací místnost se vstupem na balkon.
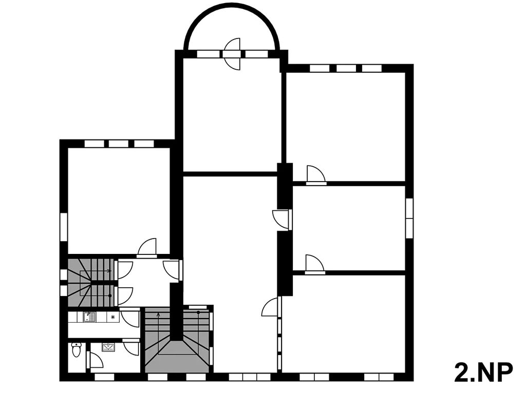
Ve druhém podlaží se nachází reprezentativní přijímací hala, ze které je vstup do prosklené zasedací místnosti a také do čtyř neprůchozích kanceláří.
Třetí patro tvoří čtyři kanceláře.
Každé podlaží budovy je vybaveno moderní kuchyňkou s myčkou a také pánskými a dámskými toaletami.
Kancelářské prostory v suterénu s vlastním vstupem z ulice mohou být odděleny od ostatních částí vily.
Dvě garážové stání s vraty na dálkové ovládání a technická místnost v suterénu rozšiřuje možnost využití budovy pro potřeby menších skladovacích prostor, krytého parkování atd.
Rozložení místností jednotlivých podlaží můžete prohlédnout v přiložených půdorysech ve fotogalerii.
Dům prošel v roce 2020 rozsáhlou rekonstrukcí, která zahrnovala:
výměnu nových dřevěných oken
kompletní výměnu elektrických a vodovodních rozvodů
instalaci IT rozvodů ve všech kancelářích a zasedacích místnostech
nové podlahy a omítky v celé nemovitosti
kompletní oprava fasády
nové kuchyně a sanitu
instalaci nových kotlů na vytápění (kombinace kondenzačního kotle Brötje a záložní elektrický Bosch)
nové garážové vrata Hörmann
vjezdová brána na dálkové ovládání
kamerový systém a napojení na pult centrální ochrany
Zároveň byly v interiéru zachovány původní prvky z doby prvorepublikové výstavby budovy, zejména interiérové vitráže aj.
Propojení moderního designu s těmito historickými prvky vytváří příjemnou atmosféru v celé budově.
Mezi další významné benefity patří 12 parkovacích míst (dvě garážové a 10 venkovních) a vynikající dostupnost centra Ostravy.
Zveme na prohlídku zájemce, kteří hledají vysoký komfort a nadstandardní zázemí pro sídlo své firmy. Rádi Vám sdělíme veškeré informace, prosím, kontaktujte nás.
Máte zájem o tuto nemovitost?
Mlýnská 2353/12, Ostrava, Moravská Ostrava
Pomůžeme Vám!
Pomůžeme Vám!
Kontakt

Ing. Radmila Hladná
Přihlášení k odběru
Nenechte si ujít nejnovější nabídky prodeje vil v Ostravě.
Podobné nabídky

Prodej vily, Ostrava, Bukovanského, 310 m2
16 000 000 Kč

Prodej vily, Ostrava, Muglinovská, 296 m2
19 990 000 Kč

Prodej vily, Ostrava, U Lípy, 220 m2
13 900 000 Kč

Prodej vily, Vřesina, 300 m2
10 990 000 Kč