Prodej bytu 1+kk, Praha - Stodůlky, Na Výrovně, 39 m2

Na Výrovně, Praha, Stodůlky


Rezervováno
6 950 000 Kč /za nemovitost
HYPOTÉKA od 31 062 Kč /měs.
Regionální dodavatelé v Praze 5

Stěhovací služby

Výkup a prodej starého nábytku

Pojištění a finance

Popis

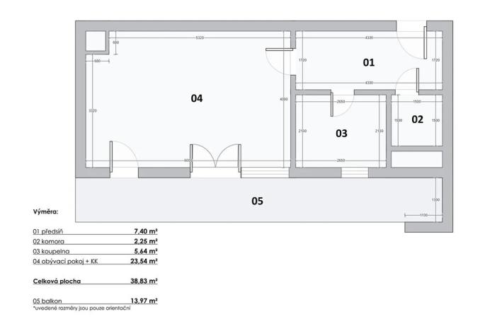
Nabízím k prodeji krásnou bytovou jednotku 1+kk o užitné ploše 39,1 m² ve 4. patře moderního bytového domu na žádané adrese Na Výrovně v Praze 5.

______________________________________________

Byt je situován v jižní části budovy, což mu dodává výjimečnou světlost a příjemnou atmosféru. Nechybí ani prostorná lodžie o velikosti 15,2 m²,
která poskytuje ideální prostor pro ranní kávu, odpočinek po práci nebo drobné zahradničení.
______________________________________________

Komfort a praktičnost v jednom:

Dispozice bytu je navržena s důrazem na maximální využití prostoru a pohodlí. Součástí je také praktická komora, která nabízí dostatek místa pro uskladnění věcí. Byt je díky své velikosti i promyšlenému uspořádání vhodný pro jednotlivce, páry i jako investice k pronájmu.

Velkým benefitem je i možnost úpravy dispozice na 2+kk – kuchyni lze umístit do přední části bytu a vzadu vytvořit klidnou ložnici.

Další velkou výhodou je vlastní garážové stání přímo v domě, což v této lokalitě představuje skutečný komfort. Samozřejmostí je výtah a moderní konstrukční řešení s nízkými provozními náklady.
______________________________________________

Bytový dům se nachází v jedné z nejvyhledávanějších částí Prahy 5. Dopravní dostupnost je vynikající – v blízkosti je metro linky B (Anděl, Smíchovské nádraží), hustá síť tramvají a autobusů i rychlé napojení na dálniční síť.

Přímo u domu je autobusová zastávka s přímým spojením na Zličín, kde se nachází velké obchodní centrum včetně IKEY a zároveň odtud jezdí i přímá linka na letiště – cesta trvá pouhých 15 minut.

Občanská vybavenost je zde na velmi dobré úrovni. V okolí jsou školy, školky, lékařská zařízení, kavárny, restaurace a obchody všeho druhu. Milovníky nakupování potěší nedaleké centrum Anděl City i menší specializované obchody a farmářské trhy.

V docházkové vzdálenosti (cca 1 km od domu) se nachází Centrální park i Dalejské a Prokopské údolí. Najdete zde dětská hřiště, cyklostezky a rozsáhlé zalesněné plochy vhodné i pro delší procházky či výlety.
_____________________________________________
Investiční příležitost:

Byt je díky své poloze a dispozici vhodný nejen pro vlastní bydlení, ale i jako investice. Tato část Prahy je dlouhodobě velmi žádaná nájemníky,
což zajišťuje stabilní výnos z pronájmu.

Stav
Rezervováno
Cena
6 950 000 Kč /za nemovitost Spočítat hypotéku
Aktualizováno
3. 5. 2026
Adresa
Na Výrovně, Praha, Stodůlky
ID
964114
Stavba
Cihlová
Stav objektu
Velmi dobrý
Patro
4. z 6
Vlastnictví
Osobní
Užitná plocha
39 m2
Podlahová plocha
40 m2
Třída energetické náročnosti
B - Velmi úsporná
Elektřina
230V
Telekomunikace
Internet
Voda
Vodovod
Balkon
Garáž
Výtah
Bezbarierový přístup
Parkování

Máte zájem o tuto nemovitost?

Tímto, v souladu s nařízením Evropského parlamentu a Rady (EU) 2016/679, v platném znění, prohlašuji, že mi je alespoň 16 let a uděluji tak svůj souhlas se zpracováním zadaných údajů (jméno, telefon, e-mail, ip adresa) společnosti B3 Technology, s.r.o., IČ: 07330600, se sídlem Novostavby 126/23, 435 11 Lom (správce dat), za účelem předání dotazu z tohoto formuláře Vámi vybranému inzerentovi a zpětného kontaktování mé osoby. Osobní údaje bude správce zpracovávat manuálně i automaticky přímo prostřednictvím svých zaměstnanců. Informace předané tímto formulářem budou uloženy v databázi správce maximálně po dobu 10 let. Odvolání souhlasu s uložením a zpracováním poskytnutých dat lze e-mailem na info@realitymat.cz. V případě podezření na neoprávněné použití Vámi poskytnutých údajů máte právo předat podnět k šetření Úřadu pro ochranu osobních údajů. Více informací
Chystáte se prodat nemovitost?
Pomůžeme Vám!
Theleadway banner

Kontakt

Iva Petrušková

Iva Petrušková

Přihlášení k odběru

Nenechte si ujít nejnovější nabídky prodeje bytů 1+kk v Praze 5.

Podobné nabídky