Prodej obchodního prostoru, Poděbrady, Hakenova, 40 m2
Hakenova, Poděbrady III
(Cena včetně právního servisu a provize.)
Popis
Dobrý den.
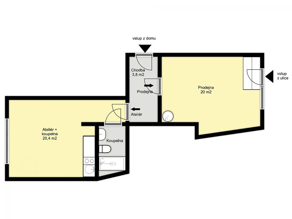
Nabízím Vám nové komerční prostory o velikosti 40,4 m2 na adrese Hakenova 722, Poděbrady.
Jedná se o prostory v těsné blízkosti kolonády, které byly navrženy tak, aby měly co nejširší možnost využití.
Mohou zde být kanceláře, prodejna a vzhledem k tomu, že je zde příprava na vodu a odpady, tak i kadeřnický nebo kosmetický salón.
V současné době se prostor využívá právě jako kadeřnické studio.
Oba prostory mají vlastní elektroměr a vodoměr..
V zadním ateliéru je plnohodnotná kuchyňská linka se zabudovanou troubou, lednicí a sklokeramickou deskou.
Je zde nový anténní rozvod a příprava na optický kabel.
Dále je zde sociální zázemí se sprchovým koutem a wc.
V letošním roce došlo k zateplení jihovýchodní fasády domu a k instalaci předokenních žaluzií.
Vytápění je zde podlahové - elektrické rohože s kombinací s přímotopy.
Výloha do ul. Hakenova je opatřena roletou a vstupní dveře jsou chráněny uzamykatelnou mříží.
K těmto prostorům je možné využívat zahradu za domem, kde je příjemné kryté posezení.
Nemovitost je možné financovat hypotečním úvěrem, který Vám rádi vyřídíme.
Máte zájem o tuto nemovitost?
Na Louži 871, Kolín
Pomůžeme Vám!
Pomůžeme Vám!
Kontakt

Petr Šmíd
Přihlášení k odběru
Nenechte si ujít nejnovější nabídky prodeje obchodních prostor v Poděbradech.
Tipy Realitymatu

Prodej ubytování, Milovice - Benátecká Vrutice, 1082 m2
Cena na vyžádání
Podobné nabídky

Prodej obchodního prostoru, Bříství, 240 m2
7 390 000 Kč

Prodej obchodního prostoru, Sadská, Tylova, 370 m2
10 350 000 Kč