Prodej bytu 3+kk, Praha - Kunratice, Velké Kunratické, 91 m2

Velké Kunratické, Praha, Kunratice


13 490 000 Kč /za nemovitost
HYPOTÉKA od 60 292 Kč /měs.
Regionální dodavatelé v Praze 4

Stěhovací služby

Výkup a prodej starého nábytku

Popis

Dobrý den.

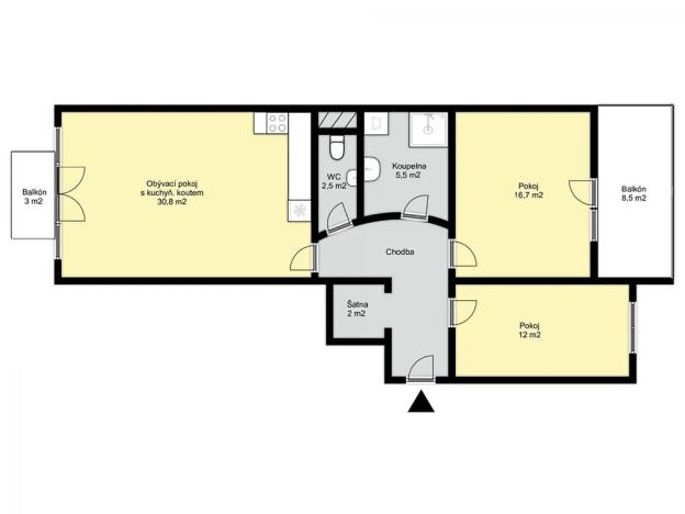
Nabízím Vám k prodeji velice chytře řešený byt o dispozici 3+kk a užitné ploše 91 m2 v ulici Velké Kunratické v těsné blízkosti Kunratického lesa.

Součástí prodejní ceny je garážové parkovací stání a sklep.

Do bytu je bezbariérový přístup a nachází se v 1.NP s výtahem.

Byt se skládá z prostorného obývacího pokoje s kuchyňským koutem, 2 pokojů, koupelny se sprchovým koutem, samostatného WC a šatny.
Kuchyňská linka je vybavena vestavnými spotřebiči (lednice, mrazák, trouba, sklokeramická varná deska, digestoř, myčka a mikrovlnná trouba)

Velkou výhodou jsou 2 protilehlé balkóny jeden o rozloze 8,8 m2 a druhý o rozloze 2,6 m2.

Byt je po kompletní výmalbě.

Přímo před vstupem do domu se nachází Kunratický les, který je vhodný jak pro klidné procházky, tak pro sportovní vyžití.
Autobusová zastávka s přímým spojením na metro C Kačerov je jen pár minut od domu.
V této lokalitě se dále nachází například Thomayerova nemocnice nebo IKEM.

Nemovitost lze financovat hypotečním úvěrem, se kterým Vám rádi pomůžeme.

Těším se na případnou prohlídku.

Cena
13 490 000 Kč /za nemovitost Spočítat hypotéku
Aktualizováno
17. 9. 2025
Adresa
Velké Kunratické, Praha, Kunratice
ID
927
Stavba
Cihlová
Stav objektu
Velmi dobrý
Patro
1. z 7
Vlastnictví
Osobní
Užitná plocha
91 m2
Podlahová plocha
80 m2
Elektřina
230V
Odpad
Veřejná kanalizace
Topení
Ústřední dálkové
Komunikace
Asfaltová
Doprava
Dálnice, Silnice, MHD, Autobus
Voda
Vodovod
Topné těleso
Radiátory
Zdroj topení
Ústřední dálkové
Balkon
Garáž
Sklep
Výtah
Bezbarierový přístup
Parkování

Máte zájem o tuto nemovitost?

Tímto, v souladu s nařízením Evropského parlamentu a Rady (EU) 2016/679, v platném znění, prohlašuji, že mi je alespoň 16 let a uděluji tak svůj souhlas se zpracováním zadaných údajů (jméno, telefon, e-mail, ip adresa) společnosti B3 Technology, s.r.o., IČ: 07330600, se sídlem Novostavby 126/23, 435 11 Lom (správce dat), za účelem předání dotazu z tohoto formuláře Vámi vybranému inzerentovi a zpětného kontaktování mé osoby. Osobní údaje bude správce zpracovávat manuálně i automaticky přímo prostřednictvím svých zaměstnanců. Informace předané tímto formulářem budou uloženy v databázi správce maximálně po dobu 10 let. Odvolání souhlasu s uložením a zpracováním poskytnutých dat lze e-mailem na info@realitymat.cz. V případě podezření na neoprávněné použití Vámi poskytnutých údajů máte právo předat podnět k šetření Úřadu pro ochranu osobních údajů. Více informací
Chystáte se prodat nemovitost?
Pomůžeme Vám!

Kontakt

Šimon Šmíd

Šimon Šmíd

Přihlášení k odběru

Nenechte si ujít nejnovější nabídky prodeje bytů 3+kk v Praze 4.

Podobné nabídky