Prodej bytu 3+kk, Třešť, Nádražní, 91 m2 (ID: 1937062)

Nádražní, Třešť


4 270 000 Kč /za nemovitost
HYPOTÉKA od 19 084 Kč /měs.
Regionální dodavatelé v Třešti

Popis

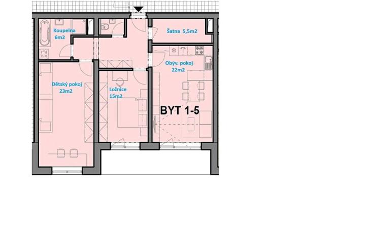
Prodej prostorné novostavby bytu 3+kk 91m2 včetně lodžie 11m2 na ul. Nádražní v Třešti.
Skvělá investiční příležitost - možnost koupě nemovitosti včetně spolehlivého nájemníka.
Prodej přímo od developera bez provize RK. Dobrá dopravní dostupnost do nedaleké Jihlavy.

V klidné části Třeště plné zeleně vyrostl nový bytový dům, který byl zkolaudován v prosinci 2023.

Byt 3+kk č. 15 se nachází v 1.NP a bydlí zde dlouhodobě spolehliví nájemníci. Je to ideální příležitost pro investory hledající nemovitost s okamžitým výnosem z pronájmu, která současným nájemníkům zajistí dlouhodobé bydlení. Cena tohoto bytu VČETNĚ kuch. linky je 4.270.000Kč.

Díky výměře 91m2 splní tento byt všechna naše očekávání: velké úložné prostory, koupelna s vanou a sprch. koutem, prostorné pokoje a nádherná lodžie.

Již při vstupu do bytu nás nadchne prostorná komora o výměře 5m2, která je v bytě hned za vstupními dveřmi. Dále nás příjemně překvapí svojí rozlohou obytné místnosti, z nichž dvě jsou zakončené velkým francouzským oknem se vstupem na lodžii. Lodžie o výměře 11m2 plnohodnotně zastoupí zahradní posezení u rodinného domu a ocení ji celá rodina.
Díky své velké rozloze je byt vhodný pro rodinu s dětmi. Bydlení v tomto bytě je bez kompromisů.

Parkovat lze bezplatně před domem, nebo lze koupit či pronajmout garáž nebo parkovací stání ve vnitrobloku domu. V blízkosti domu je vlaková i autobusová zastávka, odkud se pohodlně dostanete do nedaleké Jihlavy nebo druhým směrem do Telče a Dačic.

Pracujete v Jihlavě a sháníte bydlení? Poptejte u nás v Třešti cenově dostupný byt. Pořiďte si místo malého bytu v hektickém městě větší byt na klidném místě v Třešti v dosahu krajského města.

Třešť nabízí výbornou občanskou vybavenost. V supermarketech Albert a Penny lze nakoupit o víkendech, náměstí a jeho okolí překvapí množstvím malých obchůdků, restaurací a kavárniček. Rodiče s dětmi budou vděční za školu, školku odbornou a střední školu. Dále zde funguje poliklinika, kino, přírodní koupaliště Malvíny....

Zavolejte a domluvte si nezávaznou prohlídku. Rádi vám byt ukážeme.

Cena
4 270 000 Kč /za nemovitost Spočítat hypotéku
Aktualizováno
11. 9. 2025
Adresa
Nádražní, Třešť
Stavba
Cihlová
Stav objektu
Novostavba
Patro
1. z 4
Lokalita objektu
Klidná část obce
Vlastnictví
Osobní
Užitná plocha
91 m2
Třída energetické náročnosti
E - Nehospodárná
Elektřina
230V
Odpad
Veřejná kanalizace
Topení
Lokální elektrické
Komunikace
Dlážděná
Telekomunikace
Internet
Doprava
Vlak, Autobus
Voda
Vodovod
Zdroj topení
Elektrokotel
Lodžie
Výtah
Bezbarierový přístup

Máte zájem o tuto nemovitost?

Tímto, v souladu s nařízením Evropského parlamentu a Rady (EU) 2016/679, v platném znění, prohlašuji, že mi je alespoň 16 let a uděluji tak svůj souhlas se zpracováním zadaných údajů (jméno, telefon, e-mail, ip adresa) společnosti B3 Technology, s.r.o., IČ: 07330600, se sídlem Novostavby 126/23, 435 11 Lom (správce dat), za účelem předání dotazu z tohoto formuláře Vámi vybranému inzerentovi a zpětného kontaktování mé osoby. Osobní údaje bude správce zpracovávat manuálně i automaticky přímo prostřednictvím svých zaměstnanců. Informace předané tímto formulářem budou uloženy v databázi správce maximálně po dobu 10 let. Odvolání souhlasu s uložením a zpracováním poskytnutých dat lze e-mailem na info@realitymat.cz. V případě podezření na neoprávněné použití Vámi poskytnutých údajů máte právo předat podnět k šetření Úřadu pro ochranu osobních údajů. Více informací
Chystáte se prodat nemovitost?
Pomůžeme Vám!

Kontakt

Pavla Semrádová

Pavla Semrádová

Přihlášení k odběru

Nenechte si ujít nejnovější nabídky prodeje bytů 3+kk v Třešti.

Podobné nabídky