Pronájem obchodního prostoru, Mnichovo Hradiště, Turnovská, 117 m2

Turnovská, Mnichovo Hradiště


13 000 Kč /za měsíc
Získejte výhodnou HYPOTÉKU
Regionální dodavatelé v Mnichově Hradišti

Popis

Hledáte prostory pro Vaše podnikání? A jak by se Vám líbilo si tyto prostory uzpůsobit dle svých představ?

Nabízím k pronájmu komerční prostory o celkové výměře 117 m², které se nacházejí na frekventované ulici Turnovská v Mnichově Hradišti.

V současné době se zde nachází zavedená prodejna chovatelských potřeb, prostory jsou vhodné a nabízejí více využití, jak pro obchodní činnost, kanceláře, služby, e-shop, showroom nebo menší provozovny. Prostor je k dispozici jako celek nebo ve formě sdílení či podpronájmu.

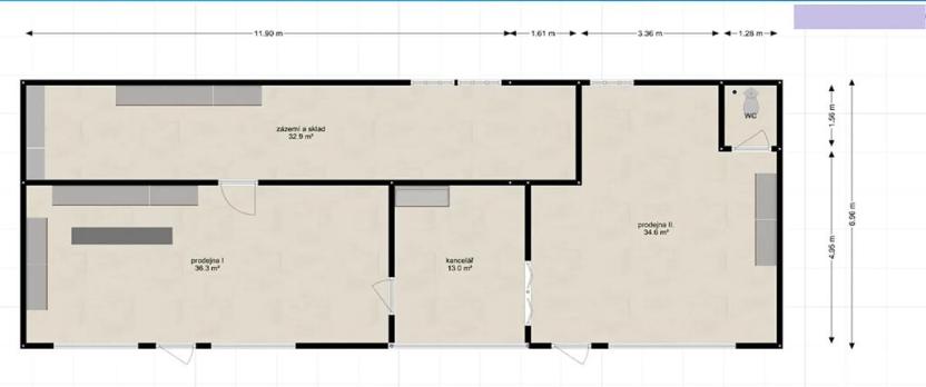
Dispozice prostor:

- prodejní plocha 36,3 a 34,6 m² s pěti prosklenými výlohami a dvěma přímými vstupy z ulice

- kancelář 13 m²

- sklad + zázemí 32,9 m²

- sociální zařízení, WC

Výhody nemovitosti:

- strategická poloha

- dlouhodobě zavedené obchodní místo

- přímý vstup z ulice, 2x vchod + 5x velké prosklené výlohy s možností marketingového využití

- velmi dobré zásobování a parkování přímo před prostory

Podmínky nájmu:

- nájemné: 13.000 Kč / měsíc

- vratná kauce: 2 měsíční nájmy

- provize RK: 13.000 Kč

- měsíční zálohy na vodu: budou upřesněny dle povahy provozované činnosti

- elektřinu a plyn si budoucí nájemce převede na sebe
uvolnění prostor dle domluvy

Cena
13 000 Kč /za měsíc
Aktualizováno
10. 9. 2025
Adresa
Turnovská, Mnichovo Hradiště
Stavba
Cihlová
Stav objektu
Dobrý
Patro
1.
Lokalita objektu
Centrum obce
Užitná plocha
117 m2
Zastavěná plocha
117 m2
Podlahová plocha
117 m2
Elektřina
230V
Plyn
Plynovod
Odpad
Veřejná kanalizace
Komunikace
Asfaltová
Doprava
Vlak, Dálnice, Silnice, Autobus
Voda
Vodovod
Topné těleso
Radiátory
Zdroj topení
Plynový kotel
Zdroj teplé vody
Průtokový ohřívač

Máte zájem o tuto nemovitost?

Tímto, v souladu s nařízením Evropského parlamentu a Rady (EU) 2016/679, v platném znění, prohlašuji, že mi je alespoň 16 let a uděluji tak svůj souhlas se zpracováním zadaných údajů (jméno, telefon, e-mail, ip adresa) společnosti B3 Technology, s.r.o., IČ: 07330600, se sídlem Novostavby 126/23, 435 11 Lom (správce dat), za účelem předání dotazu z tohoto formuláře Vámi vybranému inzerentovi a zpětného kontaktování mé osoby. Osobní údaje bude správce zpracovávat manuálně i automaticky přímo prostřednictvím svých zaměstnanců. Informace předané tímto formulářem budou uloženy v databázi správce maximálně po dobu 10 let. Odvolání souhlasu s uložením a zpracováním poskytnutých dat lze e-mailem na info@realitymat.cz. V případě podezření na neoprávněné použití Vámi poskytnutých údajů máte právo předat podnět k šetření Úřadu pro ochranu osobních údajů. Více informací
Chystáte se prodat nemovitost?
Pomůžeme Vám!

Kontakt

Eva Říhová

Eva Říhová

Přihlášení k odběru

Nenechte si ujít nejnovější nabídky pronájmu obchodních prostor v Mnichově Hradišti.

Podobné nabídky