Prodej bytu 4+kk, Liberec - Liberec XXV-Vesec, U Sadu, 131 m2

U Sadu, Liberec (nečleněné město)


5 990 000 Kč /za nemovitost
HYPOTÉKA od 26 772 Kč /měs.
Regionální dodavatelé v Liberci

Rekonstrukce

Úklidové služby

Popis

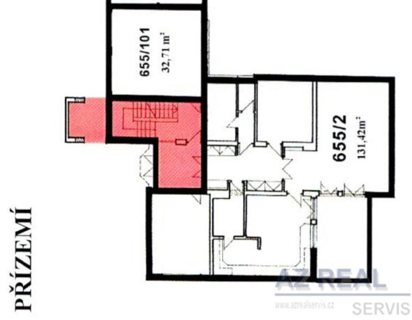
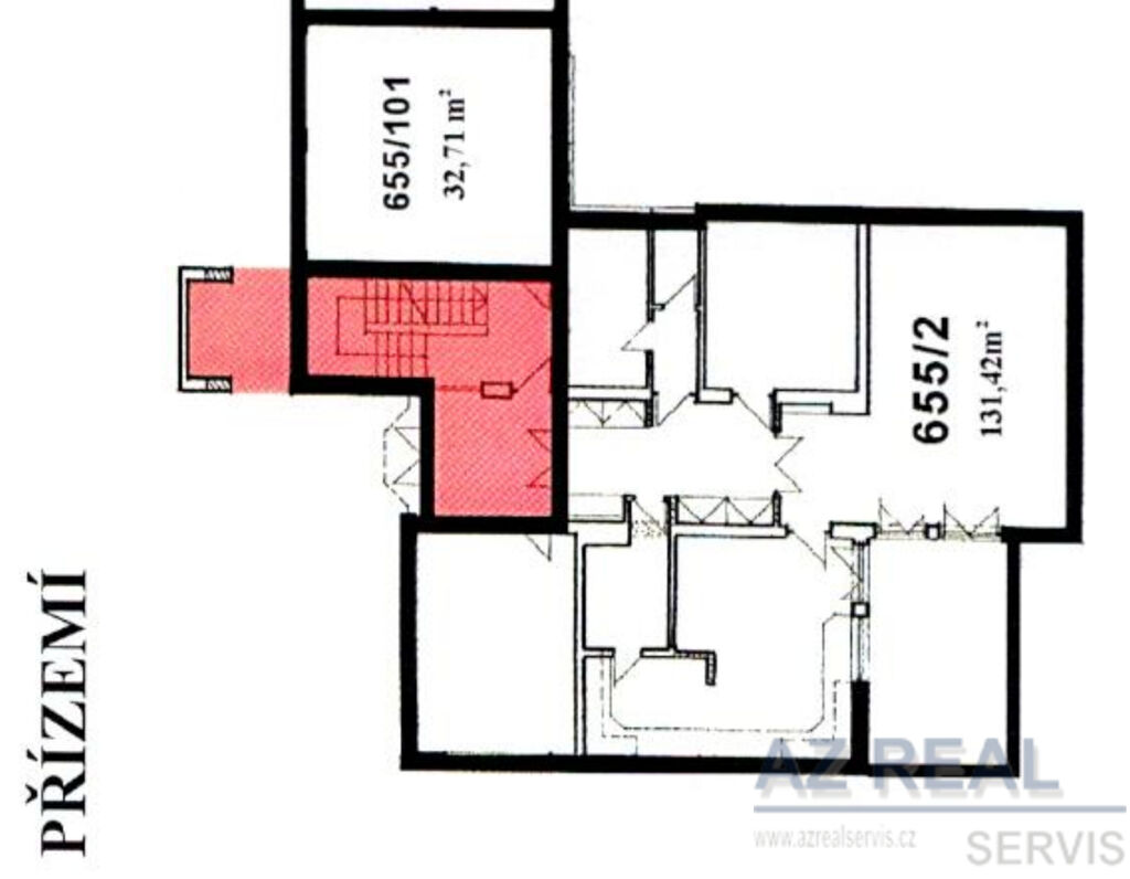
Exkluzivně nabízíme prodej prostorného bezbariérového bytu v klidné lokalitě Vesce, nedaleko vodní nádrže Tajch. Byt se nachází v menším bytovém domě o šesti bytových jednotkách a šesti garážích, postaveném v roce 1997. Byt se rozprostírá se přes celé patro domu – z ulice je situován v přízemí, ze zahrady v patře.
Dispozice bytu
• obývací pokoj 32 m² s krbem a vstupem na velkou terasu s nádherným výhledem na Ještědský hřbet
• kuchyně s jídelnou 27 m² a spíží 5 m²
• dva pokoje 18 m² a 15 m² (jeden z nich se samostatným vstupem – možnost dvougeneračního bydlení či domácí pracovny)
• prostorná předsíň 23 m² s vestavěnou skříní
• koupelna se samostatným WC cca 9 m²
Další výhody:
• dům je napojen na vlastní studnu a kanalizaci
• plynová přípojka využitá na ohřev teplé vody
• centrální topení kotlem na tuhá paliva se službou a ročním nákladem kolem 35tis
• k bytu náleží samostatný pozemek 158 m² za domem – ideální na zahrádku či posezení
• možnost dokoupení dvougaráže přímo na stejném podlaží, přístupné ze schodiště (voda, elektřina i příprava pro nabíjení elektromobilu)
Byt je ihned k nastěhování, případně k úpravám dle vlastních představ.
Nejedná se o běžný „panelákový“ byt – zde získáte komfortní bydlení v přírodě, s parkováním, vlastní zahrádkou a kouzelnými výhledy.

Cena
5 990 000 Kč /za nemovitost Spočítat hypotéku
Aktualizováno
22. 10. 2025
Adresa
U Sadu, Liberec (nečleněné město)
ID
0857
Stavba
Smíšená
Stav objektu
Dobrý
Patro
1. z 3
Vybaveno
Částečně
Lokalita objektu
Klidná část obce
Vlastnictví
Osobní
Užitná plocha
131 m2
Zastavěná plocha
342 m2
Podlahová plocha
131 m2
Plocha zahrady
158 m2
Třída energetické náročnosti
G - Mimořádně nehospodárná
Elektřina
400V
Plyn
Plynovod
Odpad
Septik, Jímka
Komunikace
Dlážděná, Asfaltová
Telekomunikace
Internet, Satelit
Doprava
Silnice
Voda
Studna
Terasa
Bezbarierový přístup

Máte zájem o tuto nemovitost?

Tímto, v souladu s nařízením Evropského parlamentu a Rady (EU) 2016/679, v platném znění, prohlašuji, že mi je alespoň 16 let a uděluji tak svůj souhlas se zpracováním zadaných údajů (jméno, telefon, e-mail, ip adresa) společnosti B3 Technology, s.r.o., IČ: 07330600, se sídlem Novostavby 126/23, 435 11 Lom (správce dat), za účelem předání dotazu z tohoto formuláře Vámi vybranému inzerentovi a zpětného kontaktování mé osoby. Osobní údaje bude správce zpracovávat manuálně i automaticky přímo prostřednictvím svých zaměstnanců. Informace předané tímto formulářem budou uloženy v databázi správce maximálně po dobu 10 let. Odvolání souhlasu s uložením a zpracováním poskytnutých dat lze e-mailem na info@realitymat.cz. V případě podezření na neoprávněné použití Vámi poskytnutých údajů máte právo předat podnět k šetření Úřadu pro ochranu osobních údajů. Více informací
Chystáte se prodat nemovitost?
Pomůžeme Vám!

Kontakt

Mgr. Martin Mrugala

Mgr. Martin Mrugala

Přihlášení k odběru

Nenechte si ujít nejnovější nabídky prodeje bytů 4+kk v Liberci.

Podobné nabídky