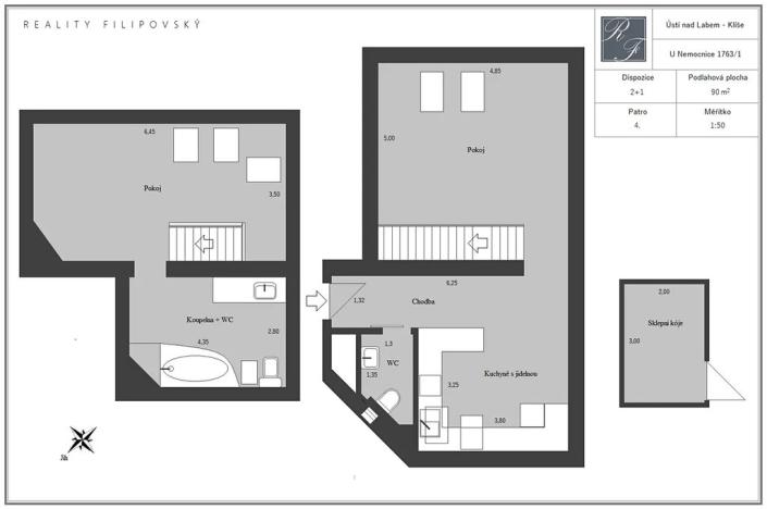
Prodej bytu 2+1, Ústí nad Labem, U Nemocnice, 90 m2

U Nemocnice, Ústí nad Labem-centrum


4 950 000 Kč /za nemovitost
HYPOTÉKA od 22 124 Kč /měs.
Regionální dodavatelé v Ústí nad Labem

Okna a dveře

Rekonstrukce

Zámečnické práce

Popis

Dovoluji si Vám nabídnout výjimečný mezonetový byt 2+1 (2x WC) s podlahovou plochou 90 m2, který se nachází v nejžádanější ústecké lokalitě na rozhraní čtvrtí Klíše a Ústí nad Labem-centrum, v těsném sousedství oblíbeného městského parku s rozlohou téměř 65 000 m2.

Bytová jednotka vznikla zdařilou adaptací části půdního prostoru s přiznáním jeho konstrukčních prvků, které poskytují tomuto bydlení zcela jedinečný charakter. Dispoziční řešení klade důraz na pocit vzdušnosti celého interiéru, což se mu dokonale daří. Nedávno byl v bytě instalován nový plynový kotel s chytrou regulací.

Tato nemovitost je i mimořádně zajímavou investiční příležitostí. Potenciál výtěžnosti z pronájmu je zde totiž akcelerován bezprostřední blízkostí kampusu Univerzity J. E. Purkyně (60 m od domu). Také chystaný projekt rychlodráhy s dojezdovým časem Ústí – Praha 20 min., s terminálem na stávajícím Západním nádraží, i vývoj cen bytů v hlavním městě, předurčují nemovitosti v Ústí nad Labem, a zejména ty s atraktivní polohou a charakterem, k pokračujícímu cenovému růstu.

Budu se těšit na setkání s Vámi.

PENB připravujeme, proto je dočasně uvedena třída G.

Cena
4 950 000 Kč /za nemovitost Spočítat hypotéku
Aktualizováno
5. 9. 2025
Adresa
U Nemocnice, Ústí nad Labem-centrum
ID
615
Stavba
Cihlová
Stav objektu
Velmi dobrý
Patro
5.
Vlastnictví
Osobní
Užitná plocha
90 m2
Třída energetické náročnosti
G - Mimořádně nehospodárná
Elektřina
230V
Plyn
Plynovod
Odpad
Veřejná kanalizace
Voda
Vodovod
Zdroj topení
Plynový kondenzační kotel
Zdroj teplé vody
Plynový kondenzační kotel
Sklep

Máte zájem o tuto nemovitost?

Tímto, v souladu s nařízením Evropského parlamentu a Rady (EU) 2016/679, v platném znění, prohlašuji, že mi je alespoň 16 let a uděluji tak svůj souhlas se zpracováním zadaných údajů (jméno, telefon, e-mail, ip adresa) společnosti B3 Technology, s.r.o., IČ: 07330600, se sídlem Novostavby 126/23, 435 11 Lom (správce dat), za účelem předání dotazu z tohoto formuláře Vámi vybranému inzerentovi a zpětného kontaktování mé osoby. Osobní údaje bude správce zpracovávat manuálně i automaticky přímo prostřednictvím svých zaměstnanců. Informace předané tímto formulářem budou uloženy v databázi správce maximálně po dobu 10 let. Odvolání souhlasu s uložením a zpracováním poskytnutých dat lze e-mailem na info@realitymat.cz. V případě podezření na neoprávněné použití Vámi poskytnutých údajů máte právo předat podnět k šetření Úřadu pro ochranu osobních údajů. Více informací
Chystáte se prodat nemovitost?
Pomůžeme Vám!

Kontakt

Marek Filipovský - certifikovaný obchodník s nemovitostmi

Marek Filipovský - certifikovaný obchodník s nemovitostmi

Přihlášení k odběru

Nenechte si ujít nejnovější nabídky prodeje bytů 2+1 v Ústí nad Labem.

Podobné nabídky