Prodej komerční nemovitosti, Kutná Hora, Tylova, 398 m2

Tylova, Kutná Hora-Vnitřní Město


15 750 000 Kč /za nemovitost
HYPOTÉKA od 70 393 Kč /měs.

(Cena včetně provize a právních služeb.)


Regionální dodavatelé v Kutné Hoře

Popis

Nabízíme k prodeji prostorný vícegenerační dům s komerčními prostory a terasou, který se nachází na prestižní adrese Tylova 404/11 ve Vnitřním Městě Kutné Hory jen 150m od Palackého náměstí.

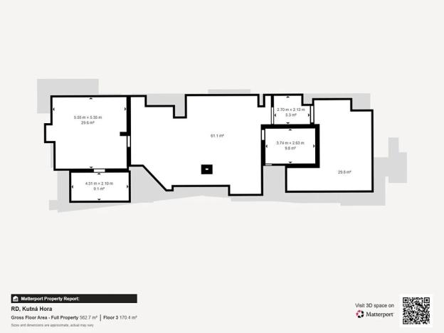
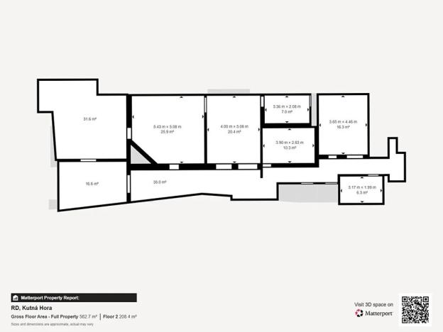
Celková zastavěná plocha domu činí 293 m², přičemž stejně velká je i parcela, na které dům stojí. Disponuje dvěma nadzemními podlažími a jedním podzemním a půdou, ze které se dá udělat plnohodnotné podlaží. Díky tomu je dům ideální pro vícegenerační bydlení nebo pro kombinaci bydlení a podnikání.

Jedná o investičně atraktivní objekt s obrovským potenciálem pro zhodnocení.
V přízemí se nachází prostor bývalé prodejny Drogerie U Bláhů a aktuálně provozovaná opravna obuvi, kde končí nájemní smlouva 31.10.2025. Provozovna obuvi není obsažena v 3D prohlídce, ale samozřejmě je také předmětem prodeje. Obě jednotky mají samostatný vstup a disponují sklady a sociálním zařízením.
Ke schodišti do sklepení a dalších pater se dostanete dalším samostatným vchodem. Máme zde tedy 3 vchody.
V prvním patře se nachází 6 místností, sociální zařízení a terasa. Možnost využití jako kanceláře nebo bytové jednotky.
Prostorná půda s vysokým krovem a betonovou podlahou se vybízí k vybudování dalších místností, nyní jsou zde dvě dílny a půda.
Nemovitost je z většiny podsklepená a sklep je suchý se standartně vysokým stropem.
Dům je ihned k dispozici k realizaci vašich projektů a ŽÁDÁ SI OSOBNÍ PROHLÍDKU.
Nemovitost je připojena na všechny sítě, veřejný vodovod, kanalizace, plyn a elektřina.
Štítek PENB a technická zpráva nemovitosti jsou v přípravě.
Pokud hledáte nemovitost, která kombinuje historii a podnikání či život ve skvělé lokalitě, tento dům v Kutné Hoře bude ideální volba pro vaši rodinu, firmu nebo jako investice do budoucna.

Majitel nemovitosti si vyhrazuje právo výběru kupujícího na základě záměru s nemovitostí a výši případné nabídky.
V případě zájmu mě prosím kontaktujte pro dohodnutí prohlídky.
První prohlídkový den je stanoven na 4.9.

Cena
15 750 000 Kč /za nemovitost Spočítat hypotéku
Poznámka k ceně
Cena včetně provize a právních služeb.
Aktualizováno
2. 9. 2025
Adresa
Tylova, Kutná Hora-Vnitřní Město
ID
966115
Stavba
Smíšená
Stav objektu
Projekt
Užitná plocha
398 m2
Zastavěná plocha
293 m2
Podlahová plocha
398 m2
Třída energetické náročnosti
G - Mimořádně nehospodárná
Elektřina
230V
Plyn
Plynovod
Odpad
Veřejná kanalizace
Komunikace
Dlážděná
Voda
Vodovod

Máte zájem o tuto nemovitost?

Tímto, v souladu s nařízením Evropského parlamentu a Rady (EU) 2016/679, v platném znění, prohlašuji, že mi je alespoň 16 let a uděluji tak svůj souhlas se zpracováním zadaných údajů (jméno, telefon, e-mail, ip adresa) společnosti B3 Technology, s.r.o., IČ: 07330600, se sídlem Novostavby 126/23, 435 11 Lom (správce dat), za účelem předání dotazu z tohoto formuláře Vámi vybranému inzerentovi a zpětného kontaktování mé osoby. Osobní údaje bude správce zpracovávat manuálně i automaticky přímo prostřednictvím svých zaměstnanců. Informace předané tímto formulářem budou uloženy v databázi správce maximálně po dobu 10 let. Odvolání souhlasu s uložením a zpracováním poskytnutých dat lze e-mailem na info@realitymat.cz. V případě podezření na neoprávněné použití Vámi poskytnutých údajů máte právo předat podnět k šetření Úřadu pro ochranu osobních údajů. Více informací
Chystáte se prodat nemovitost?
Pomůžeme Vám!

Kontakt

Tomáš Jarkovský

Tomáš Jarkovský

Přihlášení k odběru

Nenechte si ujít nejnovější nabídky prodeje komerčních nemovitostí v Kutné Hoře.

Podobné nabídky