Pronájem výrobních prostor, Strakonice - Strakonice II, Tovární, 4035 m2 (ID: 1923627)

Tovární, Strakonice - Strakonice II


Cena na vyžádání
Získejte výhodnou HYPOTÉKU
Regionální dodavatelé v Strakonicích

Výkup a prodej starého nábytku

Popis

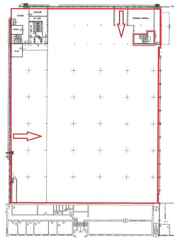
Nabízíme k pronájmu výrobní a skladovou halu v areálu ČZ a. s. o užitné ploše 4.035 m² s odpovídajícím sociálním a kancelářským zázemím. Zpevněná venkovní plocha 894 m². Hala je konstrukčně ocelový skelet. Podpěrné sloupy s rozponem 10 x 10 metrů. Světlá výška stropu 4 m. Plochá střecha s živičnou krytinou, obloukové polykarbonátové světlíky pro denní osvětlení. Betonové podlahy pro středně těžký provoz s korundovým vsypem. Teplovodní vytápění z vlastní plynové kotelny, elektrická energie 240/400V, rozvod stlačeného vzduchu, telefonní rozvody a datové sítě. Dvojice rolo průmyslových vrat a přístřešek k nakládce / vykládce materiálu a zboží. Hala je součástí průmyslového areálu s možností příjezdu i parkování kamionů. Vjezd automobilů i vstup osob do areálu je možný přes dvě vrátnice. Celý areál je napojen na kamerový systém doplněný o fyzickou ostrahu. Na areál z hlediska požární ochrany dohlíží vlastní jednotka hasičů s nepřetržitou službou. Je zajištěna údržba a opravy komunikací celého areálu stejně tak jako ostatních ploch. Nabízí se možnost využívat centrální poštovní služby. Pro zaměstnance je k dispozici polední a večerní závodní stravování s centrální jídelnou vzdálenou od haly 110 metrů. K parkování zaměstnanců a klientů je možné využívat přilehlé parkoviště. Zastávka veřejné hromadné dopravy je 5 minut chůze od haly.

Bližší informace na tel.: 736 643 882

Cena
Cena na vyžádání
Aktualizováno
29. 8. 2025
Adresa
Tovární, Strakonice - Strakonice II
ID
ČZ hala II
Stavba
Skeletová
Stav objektu
Dobrý
Užitná plocha
4035 m2
Třída energetické náročnosti
D - Méně úsporná

Máte zájem o tuto nemovitost?

Tímto, v souladu s nařízením Evropského parlamentu a Rady (EU) 2016/679, v platném znění, prohlašuji, že mi je alespoň 16 let a uděluji tak svůj souhlas se zpracováním zadaných údajů (jméno, telefon, e-mail, ip adresa) společnosti B3 Technology, s.r.o., IČ: 07330600, se sídlem Novostavby 126/23, 435 11 Lom (správce dat), za účelem předání dotazu z tohoto formuláře Vámi vybranému inzerentovi a zpětného kontaktování mé osoby. Osobní údaje bude správce zpracovávat manuálně i automaticky přímo prostřednictvím svých zaměstnanců. Informace předané tímto formulářem budou uloženy v databázi správce maximálně po dobu 10 let. Odvolání souhlasu s uložením a zpracováním poskytnutých dat lze e-mailem na info@realitymat.cz. V případě podezření na neoprávněné použití Vámi poskytnutých údajů máte právo předat podnět k šetření Úřadu pro ochranu osobních údajů. Více informací
Chystáte se prodat nemovitost?
Pomůžeme Vám!

Kontakt

Ing. Miroslav Kučera MBA

Ing. Miroslav Kučera MBA

Přihlášení k odběru

Nenechte si ujít nejnovější nabídky pronájmu výrobních prostor v Strakonicích.

Podobné nabídky