Pronájem bytu 1+1, Litvínov, Tylova, 35 m2

Tylova, Horní Litvínov


6 590 Kč /za měsíc
Získejte výhodnou HYPOTÉKU
Regionální dodavatelé v Litvínově

Okna a dveře

Rekonstrukce

Zámečnické práce

Popis

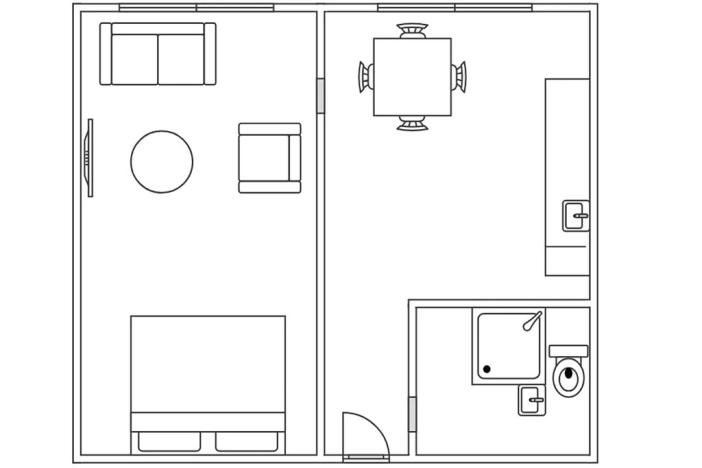
Nabízíme Vám hezký a světlý byt 1+1 v ulici Tylova v Litvínově . Byt o výměře 35m² se nachází v 7. patře, je nově vymalovaný, má nová osvětlení a nové vstupní dveře.
K bytu náleží lodžie, která se nachází pod prvním schodištěm. Jakmile vstoupíme dovnitř, máme po pravé straně koupelnu se sprchovým koutem a WC. To je částečně oddělené. V kuchyni se nachází kuchyňská linka s kombinovaným sporákem a stolem. V oddělené místnosti je skříň, na zemi je položena plovoucí podlaha. Pokoj je vizualizovaný pro lepší představu, jak by mohl vypadat zařízený. V bytě jsou plastová okna.

Dům je revitalizován, je čistý a udržovaný, stejně jako jeho okolí. Byt se nachází ve vyhledávané lokalitě u lesa, kde je klid a nabízí tak příjemné bydlení. Nedaleko je park, škola i školka. Byt je připravený k okamžitému nastěhování.

Náklady na bydlení jsou ve výši 6 900 Kč nájemné + služby 2 030, Kč/ osoba + další os. 600, Kč). Energie si nájemce hradí sám. Při podpisu nájemní smlouvy jsou požadovány 2 kauce. První je vratná ve výši 9 500, Kč. Druhá platba je nevratná ve výši 9 500, Kč + DPH (provize RK). Nabídka platí pouze pro zájemce s pracovní smlouvou. V případě zájmu o prohlídku nebo o více informací kontaktujte, prosím, makléřku.

Cena
6 590 Kč /za měsíc
Aktualizováno
23. 10. 2025
Adresa
Tylova, Horní Litvínov
ID
965664
Stavba
Panelová
Stav objektu
Dobrý
Patro
7. z 8
Vlastnictví
Družstevní
Užitná plocha
35 m2
Podlahová plocha
35 m2
Třída energetické náročnosti
C - Úsporná
Sklep
Lodžie
Výtah
Převod do OV

Máte zájem o tuto nemovitost?

Tímto, v souladu s nařízením Evropského parlamentu a Rady (EU) 2016/679, v platném znění, prohlašuji, že mi je alespoň 16 let a uděluji tak svůj souhlas se zpracováním zadaných údajů (jméno, telefon, e-mail, ip adresa) společnosti B3 Technology, s.r.o., IČ: 07330600, se sídlem Novostavby 126/23, 435 11 Lom (správce dat), za účelem předání dotazu z tohoto formuláře Vámi vybranému inzerentovi a zpětného kontaktování mé osoby. Osobní údaje bude správce zpracovávat manuálně i automaticky přímo prostřednictvím svých zaměstnanců. Informace předané tímto formulářem budou uloženy v databázi správce maximálně po dobu 10 let. Odvolání souhlasu s uložením a zpracováním poskytnutých dat lze e-mailem na info@realitymat.cz. V případě podezření na neoprávněné použití Vámi poskytnutých údajů máte právo předat podnět k šetření Úřadu pro ochranu osobních údajů. Více informací
Chystáte se prodat nemovitost?
Pomůžeme Vám!

Kontakt

Ing. Martina Wohlová

Ing. Martina Wohlová

Přihlášení k odběru

Nenechte si ujít nejnovější nabídky pronájmu bytů 1+1 v Litvínově.

Podobné nabídky