Pronájem výrobních prostor, Tuchoměřice, Ke Kopanině, 3296 m2
Ke Kopanině, Tuchoměřice
Popis
Pronájem skladu, výrobních prostor 3296 m² Tuchoměřice.
V zastoupení majitele a bez provize nabízíme industriální prostory vhodné pro sklad nebo výrobu, umístěné na strategickém místě nedaleko Letiště Václava Havla, s výbornou dostupností na dálnici D7 a do Prahy.
- výrobní prostory, logistické centrum, sídla firem, výzkumné prostory, školící centra a kanceláře
- hala (A4) ve výstavbě, k dispozici 02/2026
- světlá výška od 5 m
- nosnost podlahy minimálně 5 t/m²
- 3 vjezdy v úrovni vozovky
- LED osvětlení, sprinklery
- moderní, úsporná budova s certifikátem udržitelnosti BREEAM
- kancelářské a sociální zázemí dle potřeby
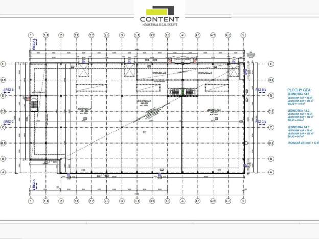
- objekt je možné rozdělit na samostatné jednotky:
•	947 m² skladové plochy + kanceláře
•	933 m² skladové plochy + kanceláře
•   1 416 m² skladové plochy + kanceláře
- oplocený areál s ostrahou
Cena bude stanovena dle dalších požadavků individuálně.
Fotografie jsou pouze ilustrativní. Pro více informací nás kontaktujte.
Máte zájem o tuto nemovitost?
 
                                Průmyslová 1472/11, Praha 10
Pomůžeme Vám!
Pomůžeme Vám!
Kontakt
 
                        Matěj Ježek
Přihlášení k odběru
Nenechte si ujít nejnovější nabídky pronájmu výrobních prostor v Tuchoměřicích.
Podobné nabídky
 
        Pronájem výrobních prostor, Tuchoměřice, Ke Kopanině, 2889 m2
Cena na vyžádání
 
        Pronájem výrobních prostor, Hostivice, Průmyslová, 8763 m2
Cena na vyžádání
 
        Pronájem výrobních prostor, Hostivice, Průmyslová, 2779 m2
Cena na vyžádání
 
                                                                                     
                                                                                     
                                                                                     
                                                                                     
                                                                                     
                                                                                     
                                                                                     
                                                                                     
                                                                                     
                                                                                     
                                                                                     
                                                                                    