Prodej bytu 4+1, Pardubice - Zelené Předměstí, Sokolovská, 113 m2
Sokolovská, Pardubice, Zelené Předměstí
Popis
Hledáte prostorné a pohodlné bydlení pro sebe i svou rodinu? Máme pro vás byt, který vás nadchne! 
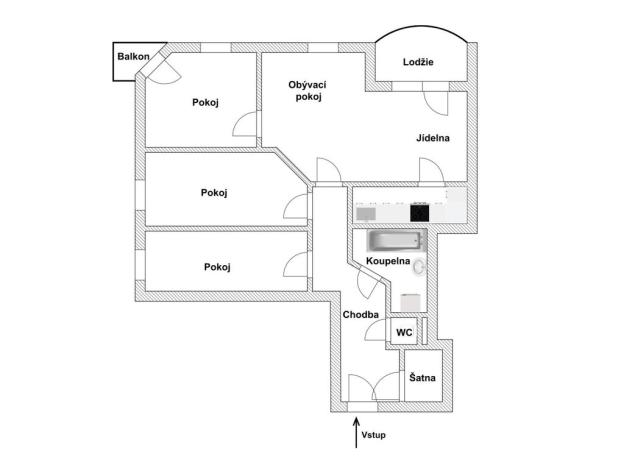
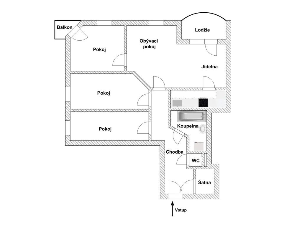
V exkluzivním zastoupení majitelů nabízím výjimečnou nemovitost, nacházející se ve třetím patře domu s výtahem na adrese Sokolovská 2720 v Pardubicích. Kromě velkorysé podlahové plochy (celkem včetně příslušenství 146 m²) nabízí toto bydlení i větší balkon (3,5 m²), prostornou lodžii (7,8m²) s pěkným výhledem, kde si můžete vychutnat ranní kávu nebo večerní posezení. Nechybí ani desetimetrový sklep a vlastní garážové stání v suterénu domu 2,5x5 m². 
Byt je moderně dispozičně řešený a poskytuje dostatek místa pro pohodlný rodinný život. Najdete zde vzdušnou vstupní chodbu, velkou kuchyni, obývací pokoj s jídelnou, který se stane srdcem domova. Dále tři samostatné pokoje, koupelnu, samostatné WC, a praktickou šatnu. 
I když se nejedná o novostavbu, byt je velmi dobře udržovaný, ve skvělém technickém stavu a připravený k okamžitému nastěhování.
Lokalita je ideální pro rodiny s dětmi. V okolí najdete školky, školy, hřiště, obchody, lékaře i kulturní a sportovní vyžití. Okrajová část sídliště nabízí dostatek zeleně a klid, a přitom zůstává skvěle dostupná. V blízkosti domu je rychlostní komunikace s napojením na dálnici D11, díky čemuž se pohodlně dostanete do Prahy, Hradce Králové i Chrudimi.
Tento byt je skvělou příležitostí pro ty, kteří hledají prostorné a komfortní bydlení v žádané části Pardubic s perfektní dostupností a výborným zázemím pro rodinný život. 
Byt je vymalovaný, precizně uklizený a připravený k okamžitému nastěhování. Díky nezatíženému listu vlastnictví může být celý proces prodeje velmi rychlý a hladký. S financováním rád pomůže náš zkušený hypoteční specialista.
Máte zájem o tuto nemovitost?
 
                                Štrossova 172, Pardubice, Bílé Předměstí
Pomůžeme Vám!
Pomůžeme Vám!
Kontakt
 
                        Lucie Kopecká
Přihlášení k odběru
Nenechte si ujít nejnovější nabídky prodeje bytů 4+1 v Pardubicích.
Tipy Realitymatu
 
        Prodej bytu 3+kk, Pardubice, Labský Palouk, 86 m2
8 990 000 Kč
Podobné nabídky
 
        Prodej bytu 4+1, Pardubice, Kosmonautů, 68 m2
5 250 000 Kč
 
        Prodej bytu 3+kk, Pardubice, Školní náměstí, 80 m2
10 500 000 Kč
 
        Prodej bytu 3+1, Pardubice, Karla IV., 72 m2
6 930 000 Kč
 
                                                                                     
                                                                                     
                                                                                     
                                                                                     
                                                                                     
                                                                                     
                                                                                     
                                                                                     
                                                                                     
                                                                                     
                                                                                     
                                                                                     
                                                                                     
                                                                                     
                                                                                     
                                                                                     
                                                                                     
                                                                                     
                                                                                     
                                                                                     
                                                                                     
                                                                                     
                                                                                     
                                                                                     
                                                                                     
                                                                                     
                                                                                     
                                                                                     
                                                                                     
                                                                                     
        