Prodej výrobních prostor, Klášterec nad Ohří - Vernéřov, 476 m2

Klášterec nad Ohří, Vernéřov


8 808 550 Kč /za nemovitost
HYPOTÉKA od 39 369 Kč /měs.

(včetně poplatků, včetně provize, včetně právního servisu)


Regionální dodavatelé v Klášterci nad Ohří

Okna a dveře

Rekonstrukce

Zámečnické práce

Popis

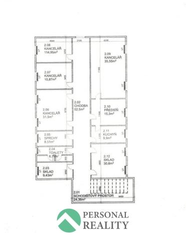
Nabízíme k prodeji komerční objekt s pozemkem o celkové ploše 3490m2. Tento objekt, stojí na ploše 279m2 s přilehlým pozemkem o rozloze 280m2 jako zpevněná plocha ze silničních panelů. Celý prostor je oplocen, osvětlen a pod kamerovým systémem. Objekt se nachází v katastrálním území Klášterec nad Ohří spadající pod obec Vernéřov, v těsné blízkosti elektrárny Prunéřov. Objekt je veden jako stavba pro výrobu a skladování, což z něho pro jeho strategické umístění dělá ideální prostor pro využití jako výrobna, sklad, dílna, opravna atd. Stavba s přilehlým pozemkem je umístěna ve středu vlastního pozemku, vedeného jako manipulační plocha o rozloze 2931m2, což nabízí velký potenciál pro Vaše podnikání. Prohlídku vřele doporučujeme, tak nám neváhejte zavolat, rádi Vás objektem provedeme.

Cena
8 808 550 Kč /za nemovitost Spočítat hypotéku
Poznámka k ceně
včetně poplatků, včetně provize, včetně právního servisu
Aktualizováno
5. 12. 2025
Adresa
Klášterec nad Ohří, Vernéřov
ID
02521
Stavba
Smíšená
Stav objektu
Velmi dobrý
Vybaveno
Ne
Typ objektu
Patrový
Druh objektu
Samostatný
Lokalita objektu
Okraj obce
Užitná plocha
476 m2
Zastavěná plocha
279 m2
Podlahová plocha
3490 m2
Plocha pozemku
3211 m2
Třída energetické náročnosti
G - Mimořádně nehospodárná
Elektřina
230V, 400V
Odpad
Veřejná kanalizace
Topení
Ústřední tuhá paliva

Máte zájem o tuto nemovitost?

Tímto, v souladu s nařízením Evropského parlamentu a Rady (EU) 2016/679, v platném znění, prohlašuji, že mi je alespoň 16 let a uděluji tak svůj souhlas se zpracováním zadaných údajů (jméno, telefon, e-mail, ip adresa) společnosti B3 Technology, s.r.o., IČ: 07330600, se sídlem Novostavby 126/23, 435 11 Lom (správce dat), za účelem předání dotazu z tohoto formuláře Vámi vybranému inzerentovi a zpětného kontaktování mé osoby. Osobní údaje bude správce zpracovávat manuálně i automaticky přímo prostřednictvím svých zaměstnanců. Informace předané tímto formulářem budou uloženy v databázi správce maximálně po dobu 10 let. Odvolání souhlasu s uložením a zpracováním poskytnutých dat lze e-mailem na info@realitymat.cz. V případě podezření na neoprávněné použití Vámi poskytnutých údajů máte právo předat podnět k šetření Úřadu pro ochranu osobních údajů. Více informací
Chystáte se prodat nemovitost?
Pomůžeme Vám!

Kontakt

Michaela Hermanová, DiS.

Michaela Hermanová, DiS.

Přihlášení k odběru

Nenechte si ujít nejnovější nabídky prodeje výrobních prostor v Klášterci nad Ohří.

Podobné nabídky