Prodej ubytování, Ostrava - Radvanice, U Lípy, 273 m2 (ID: 1910030)

U Lípy, Ostrava, Radvanice


13 900 000 Kč /za nemovitost
HYPOTÉKA od 62 125 Kč /měs.
Regionální dodavatelé v Ostravě

Popis

Nabízíme k prodeji velmi unikátní nemovitost, jejíž styl je naprosto autentický a nekopírovatelný.
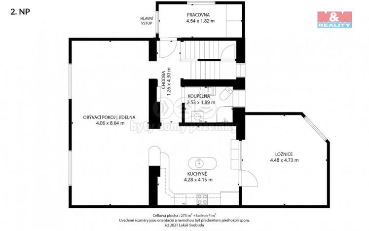
Honosné vícegenerační sídlo, rozprostírající se na třech podlažích dosud sloužilo jako rodinný dům.
Možná nastal čas na změnu a využít tuto prodejní příležitost k investici, která následně povede ke krátkodobému pronájmu s výnosem zajímavých částek.
Součástí komplexu je wellness s celoročním vyhřívaným bazénem (solární panely), saunou, společenskou místností a dobře vybaveným barem.
Na famózní zahradě se krom dostatku soukromí i prostoru pro venkovní aktivity nachází také masivní krb, altánek, zastřešené technické zázemí, které lze využít i jinak, stylová garáž, zastřešené stání a mnoho další parády.
Celý pozemek je oplocen. Na přilehlém dvorku je kvalitní a udržovanou zámková dlažba, kde také najdete kryté stání.

Cena
13 900 000 Kč /za nemovitost Spočítat hypotéku
Aktualizováno
28. 11. 2025
Adresa
U Lípy, Ostrava, Radvanice
ID
917161
Stavba
Cihlová
Stav objektu
Po rekonstrukci
Vybaveno
Částečně
Lokalita objektu
Klidná část obce
Vlastnictví
Osobní
Užitná plocha
273 m2
Plocha pozemku
1248 m2

Máte zájem o tuto nemovitost?

Tímto, v souladu s nařízením Evropského parlamentu a Rady (EU) 2016/679, v platném znění, prohlašuji, že mi je alespoň 16 let a uděluji tak svůj souhlas se zpracováním zadaných údajů (jméno, telefon, e-mail, ip adresa) společnosti B3 Technology, s.r.o., IČ: 07330600, se sídlem Novostavby 126/23, 435 11 Lom (správce dat), za účelem předání dotazu z tohoto formuláře Vámi vybranému inzerentovi a zpětného kontaktování mé osoby. Osobní údaje bude správce zpracovávat manuálně i automaticky přímo prostřednictvím svých zaměstnanců. Informace předané tímto formulářem budou uloženy v databázi správce maximálně po dobu 10 let. Odvolání souhlasu s uložením a zpracováním poskytnutých dat lze e-mailem na info@realitymat.cz. V případě podezření na neoprávněné použití Vámi poskytnutých údajů máte právo předat podnět k šetření Úřadu pro ochranu osobních údajů. Více informací
Chystáte se prodat nemovitost?
Pomůžeme Vám!

Kontakt

Lukáš Svoboda

Lukáš Svoboda

Přihlášení k odběru

Nenechte si ujít nejnovější nabídky prodeje ubytování v Ostravě.

Podobné nabídky