Pronájem obchodního prostoru, Orlová, Slezská, 54 m2 (ID: 1909053)
Slezská, Orlová, Poruba
8 500 Kč
/za měsíc
Získejte výhodnou HYPOTÉKU
(nájem + služby 2 500,- + elektřina + vratná kauce 17 000,- + náklady RK 12 000,-)
Regionální
dodavatelé v Orlové
Popis
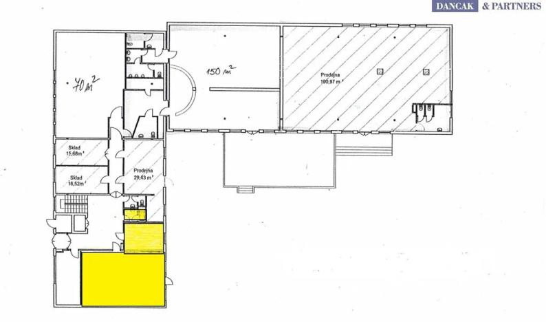
Nabízíme k pronájmu obchodní prostor, který sestává z hlavní prodejní místnosti, skladu, sociálního zázemí a společné chodby. Prostory jsou vhodné k různému účelu podnikání. Jsou situovány v přízemí komerčního objektu v městské části Poruba. V blízkosti je dostatek parkovacích míst. K dispozici od 1.6.2025. Budete li mít zájem o jakékoliv další informace, či prohlídku prostor, kontaktujte makléřku.
Cena
8 500 Kč /za měsíc
Poznámka k ceně
nájem + služby 2 500,- + elektřina + vratná kauce 17 000,- + náklady RK 12 000,-
Aktualizováno
27. 8. 2025
Adresa
Slezská, Orlová, Poruba
ID
121
Stavba
Cihlová
Stav objektu
Dobrý
Užitná plocha
54 m2
Elektřina
230V
Odpad
Veřejná kanalizace
Voda
Vodovod
Bezbarierový přístup
Máte zájem o tuto nemovitost?
tř. T. G. Masaryka 1108, Frýdek-Místek
Pomůžeme Vám!
Pomůžeme Vám!
Kontakt

Hana Vašková
Přihlášení k odběru
Nenechte si ujít nejnovější nabídky pronájmu obchodních prostor v Orlové.