Prodej atypického bytu, Dolní Podluží, 246 m2 (ID: 1908591)
Dolní Podluží
(včetně provize, včetně právního servisu, cena k jednání)
Popis
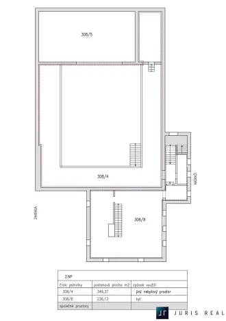
Nabízíme k prodeji atypickou jednotku o výměře 246 m2. Jednotka se nachází v několika podlažích a je vhodná pro vestavbu několika bytových jednotek(3-5 bytů). Jde vyloženě o hrubou stavbu, vše je potřeba vybudovat. Objekt je napojen na vodovod a kanalizaci, v ulici se nachází i přípojka plynu. V areálu je možné přikoupit skladovací prostory, restauraci, kanceláře, sklep nebo garáž. Zajistíme financování, nákup možný i na splátky. Cena k jednání. Je možná také výměna za jinou nemovitost.
Máte zájem o tuto nemovitost?
Šrobárova 2100/49, Praha, Vinohrady
Pomůžeme Vám!
Pomůžeme Vám!
Kontakt

Martin Vlček
Přihlášení k odběru
Nenechte si ujít nejnovější nabídky prodeje atypických bytů v Dolním Podluží.
Tipy Realitymatu