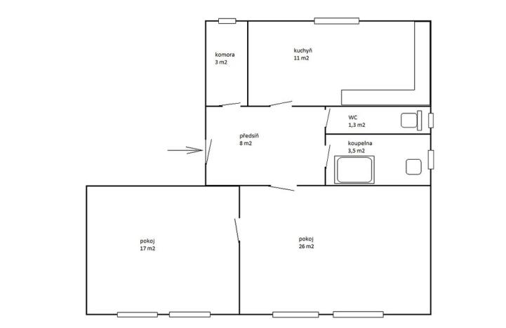
Prodej bytu 2+1, Karlovy Vary, Vítězná, 72 m2

Vítězná, Karlovy Vary


3 550 000 Kč /za nemovitost
HYPOTÉKA od 15 866 Kč /měs.

(Cena včetně provize a právních služeb.)


Regionální dodavatelé v Karlových Varech

Popis

Nabízíme k prodeji pěkný byt 2+1, 72 m2, OV, ve velmi dobrém stavu ve čtvrtém patře cihlového domu ve Vítězné ulici v Karlových Varech. V bytě jsou na podlahách v pokojích renovované parkety, v kuchyni je PVC, jinak dlažba, okna jsou plastová, topení je ústřední. Koupelna je se sprchovým koutem, WC je samostatně, je zde prostorná komora, k bytu patří také sklep. Dům je ve velmi dobrém stavu v atraktivní lokalitě v blízkosti centra a lázeňské zóny, v okolí je veškerá občanská vybavenost.

Cena
3 550 000 Kč /za nemovitost Spočítat hypotéku
Poznámka k ceně
Cena včetně provize a právních služeb.
Náklady na bydlení
2900 Kč/měsíc včetně FO
Aktualizováno
1. 11. 2025
Adresa
Vítězná, Karlovy Vary
Stavba
Cihlová
Stav objektu
Velmi dobrý
Patro
4.
Vlastnictví
Osobní
Užitná plocha
72 m2

Máte zájem o tuto nemovitost?

Tímto, v souladu s nařízením Evropského parlamentu a Rady (EU) 2016/679, v platném znění, prohlašuji, že mi je alespoň 16 let a uděluji tak svůj souhlas se zpracováním zadaných údajů (jméno, telefon, e-mail, ip adresa) společnosti B3 Technology, s.r.o., IČ: 07330600, se sídlem Novostavby 126/23, 435 11 Lom (správce dat), za účelem předání dotazu z tohoto formuláře Vámi vybranému inzerentovi a zpětného kontaktování mé osoby. Osobní údaje bude správce zpracovávat manuálně i automaticky přímo prostřednictvím svých zaměstnanců. Informace předané tímto formulářem budou uloženy v databázi správce maximálně po dobu 10 let. Odvolání souhlasu s uložením a zpracováním poskytnutých dat lze e-mailem na info@realitymat.cz. V případě podezření na neoprávněné použití Vámi poskytnutých údajů máte právo předat podnět k šetření Úřadu pro ochranu osobních údajů. Více informací
Chystáte se prodat nemovitost?
Pomůžeme Vám!

Kontakt

František Cakl

František Cakl

Přihlášení k odběru

Nenechte si ujít nejnovější nabídky prodeje bytů 2+1 v Karlových Varech.

Podobné nabídky