Prodej bytu 3+kk, Klecany, Spojovací, 111 m2 (ID: 1906574)
Spojovací, Klecany
(cena včetně provize RK a právního servisu)
Popis
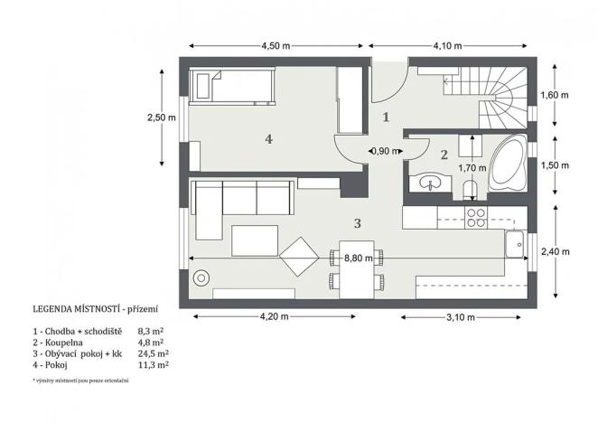
Nabízíme k prodeji mezonetový byt 3+kk v Klecanech o celkové výměře 111 m2 ve třetím patře cihlového domu. Město Klecany má velmi dobrou dostupnost do Prahy.
Bytový dům stojí v těsné blízkosti základní školy (cca 150 m), která právě prošla celkovou rekonstrukcí a rozsáhlou modernizací.
Bytový dům je udržovaný a SVJ dobře hospodaří.
Dispozice bytu je : spodní podlaží - předsíň, koupelna s WC, dětský pokoj a obývací pokoj s plně vybavenou kuchyní.
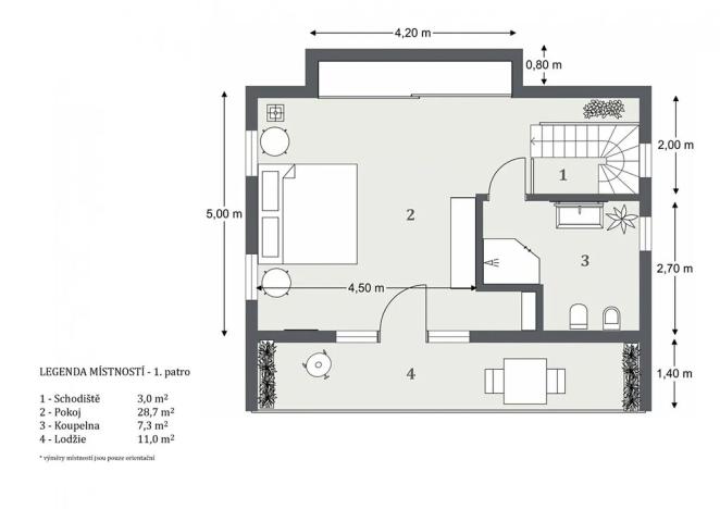
horní podlaží - ložnice se vstupem na lodžii a druhá koupelna s WC.
V celém bytě je dostatek úložných prostorů, včetně velké vestavěné skříně v ložnici. Horní patro je vybaveno klimatizací, kterou je možno i přitápět. K bytu náleží sklep o velikosti dvou sklepních kójí.
Klecany jsou malým, ale velmi dobře prosperujícím městem, které díky svým poměrně vysokým příjmům bohatě investuje do svého rozvoje. Kromě plné občanské vybavenosti je zde i mnoho příležitostí pro sport, kulturu a aktivity v přírodě.
Byt je dočasně klasifikován v energetické třídě E.
V případě zájmu o prohlídku nebo bližší informace kontaktujte makléřku. Těšíme se na Vaši návštěvu!
Máte zájem o tuto nemovitost?
Klára Kyliánková - realitní makléřka
Chmelova 550, Kralupy nad Vltavou
Pomůžeme Vám!
Pomůžeme Vám!
Kontakt

Klára Kyliánková
Přihlášení k odběru
Nenechte si ujít nejnovější nabídky prodeje bytů 3+kk v Klecanech.
Tipy Realitymatu

Prodej bytu 4+1, Přezletice, Nové Haltýře, 91 m2
9 350 000 Kč
Podobné nabídky

Prodej bytu 3+kk, Klecany, Nám. Třebízského, 72 m2
8 890 000 Kč

Prodej bytu 3+kk, Klecany, V Honech, 68 m2
8 390 000 Kč

Prodej bytu 3+kk, Klecany, Topolová, 81 m2
11 274 054 Kč

Prodej bytu 3+kk, Nehvizdy, Úvalská, 66 m2
8 299 000 Kč