Prodej ubytování, Karlovy Vary, Zámecký vrch, 934 m2
Zámecký vrch, Karlovy Vary
Popis
Jedinečný investiční projekt – budovu bývalého hotelu, která se nachází na prestižní ulici Zámecký Vrch v samém srdci lázeňské zóny Karlových Varů. Tato nemovitost je ideální pro rekonstrukci a přeměnu na butikový hotel, což zajistí vysokou návratnost a prestiž.
Charakteristika nemovitosti:
• Poloha: Budova se nachází na jedné z nejmalebnějších ulic Karlových Varů, v bezprostřední blízkosti slavných kolonád s minerálními prameny. To zajišťuje nemovitosti vysoký turistický a investiční potenciál.
• Stav: Byly již provedeny veškeré nezbytné statické práce na zpevnění nosných konstrukcí, což je jedna z nejnáročnějších a nejdražších fází. To výrazně zkracuje lhůty a náklady na dokončení projektu. Budova je připravena k celkové rekonstrukci.
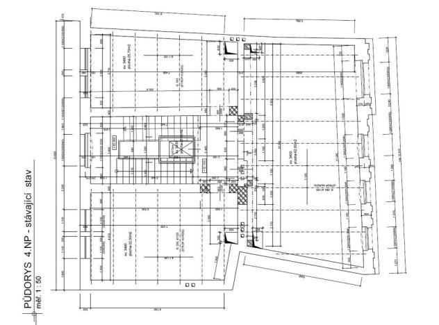
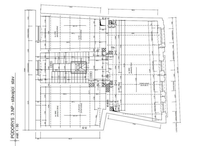
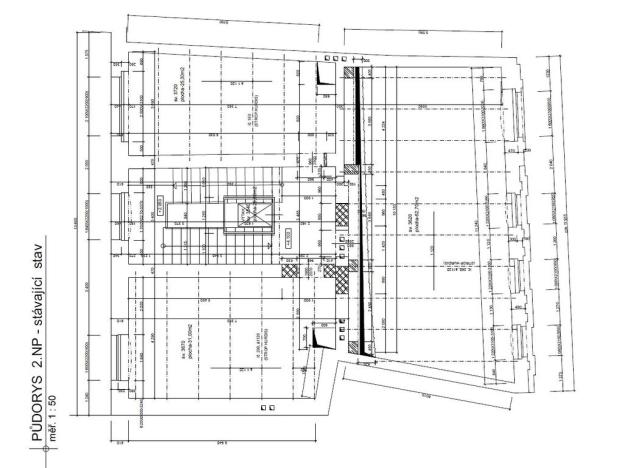
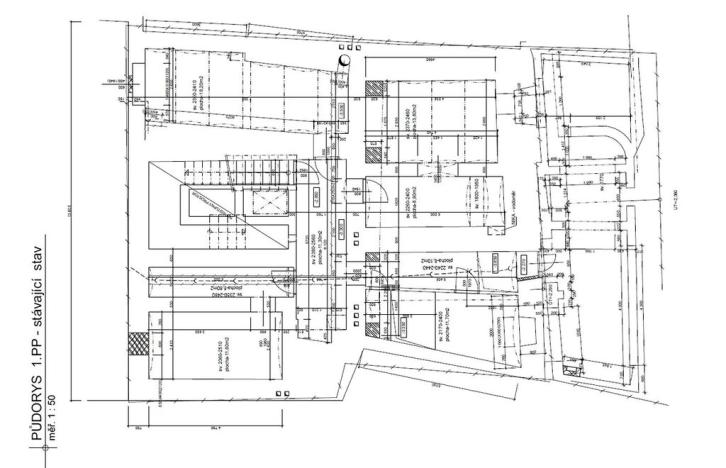
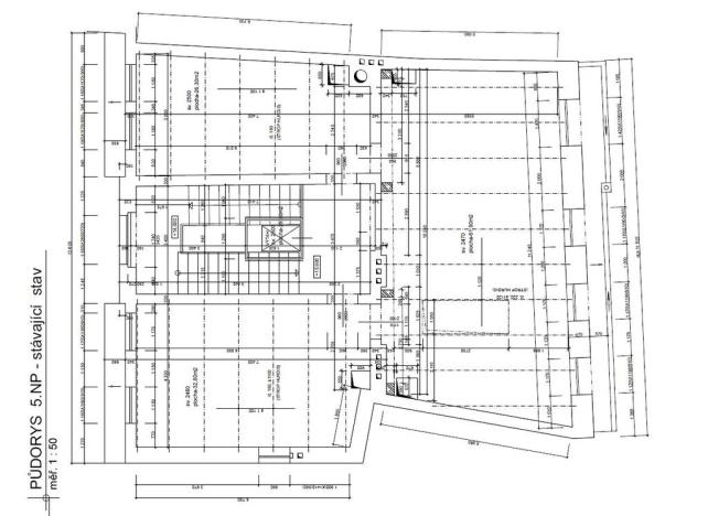
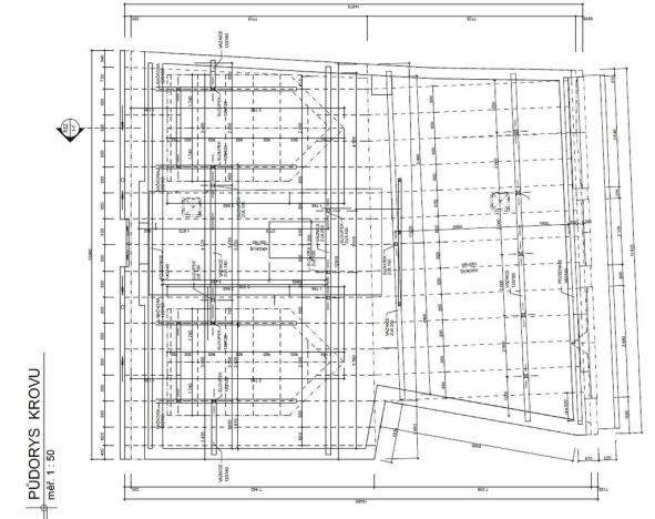
• Potenciál: Projektová dokumentace a fotografie názorně ukazují možnosti vytvoření moderní a funkční nemovitosti. Půdorysy pater umožňují navrhnout prostorné apartmány nebo pokoje s vysokými stropy a podkroví nabízí perspektivu pro vytvoření exkluzivního penthouse nebo dalších prostor.
• Dostupná dokumentace: K nemovitosti je přiložena architektonická dokumentace a povolení, které potvrzují připravenost budovy k rekonstrukci a poskytují úplný přehled o jejích konstrukčních vlastnostech.
Výhody pro investora:
• Připravenost k výstavbě: Provedené statické práce umožňují okamžitě začít s dokončovacími pracemi a vnitřním uspořádáním.
• Vysoká návratnost: Jedinečná poloha a status luxusního lázeňského města zajišťují vysokou poptávku po bydlení a hotelových službách.
• Investice do historie: Koupě nemovitosti v historickém centru Karlových Varů je nejen výhodnou investicí, ale také příležitostí stát se součástí bohatého kulturního dědictví.
Tato nemovitost je vzácnou příležitostí k získání budovy s již provedenými přípravnými pracemi v jedné z nejvyhledávanějších lokalit České republiky.
Máte zájem o tuto nemovitost?
Havlíčkova 1682/15, Praha, Nové Město
Pomůžeme Vám!
Pomůžeme Vám!
Kontakt

Mgr. Sergej Čestnoj
Přihlášení k odběru
Nenechte si ujít nejnovější nabídky prodeje ubytování v Karlových Varech.
Podobné nabídky

Prodej ubytování, Karlovy Vary, 1700 m2
27 500 000 Kč

Prodej ubytování, Karlovy Vary, 660 m2
41 700 000 Kč

Prodej ubytování, Karlovy Vary, Západní, 2600 m2
81 000 000 Kč