Pronájem kanceláře, Praha - Karlín, Pobřežní, 460 m2 (ID: 1903512)
Pobřežní, Praha, Karlín
Popis
Exkluzivně nabízíme k podnájmu krásné nové a kompletně vybavené kancelářské prostory v moderní administrativní budově Keystone Office Building na Praze 8 – Karlín.
Keystone Office Building splňuje veškeré nároky na moderní kancelářské prostory a nabízí reprezentativní recepci a flexibilní uspořádání prostor na každém patře. Budova se nachází v atraktivní lokalitě Karlína s výbornou dostupností MHD a širokou nabídkou služeb v okolí.
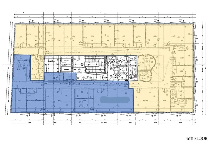
Prostory k podnájmu:
6. patro, kanceláře 460 m2 (kompletně zařízené kanceláře s krásným novým fitoutem, podnájem 08/2027)
Na plánku se jedná o žlutou část patra.
Cena podnájmu: 17,10 EUR/m2/měsíc
Služby 160,-Kč/m2/měsíc
Parkování 130 EUR/místo/měsíc (k dispozici 2-8 míst v garážích)
Keystone Office Building poskytuje moderní pracovní prostředí s možností individuálního přizpůsobení dispozic.
Neztrácejte čas hledáním – kontaktujte nás a nechte si zdarma připravit přehled nejlepších alternativ v okolí i celé Praze. Bez provize, s individuálním přístupem a detailní znalostí trhu.
Máte zájem o tuto nemovitost?
Prague Offices Solutions s.r.o.
Rybná 682/14, Praha, Staré Město
Pomůžeme Vám!
Pomůžeme Vám!
Kontakt

Ing. Zdeněk Vojtěchovský
Přihlášení k odběru
Nenechte si ujít nejnovější nabídky pronájmu kanceláří v Praze 8.