Prodej restaurace, Český Šternberk, 480 m2 (ID: 1901840)

Český Šternberk


26 000 000 Kč
HYPOTÉKA od 116 204 Kč /měs.

(včetně provize RK)


Regionální dodavatelé v Českém Šternberku

Pojištění a finance

Popis

Zavedená, prosperující a zisková restaurace Pod Hradem v Českém Šternberku, která nemá v širokém okolí významnou konkurenci.

Návratnost investice nejpozději v rozmezí 10 až 13 let při současném provozu. Znalcem vypracován tržní odhad nemovité věci společně s výnosností, vše bude předloženo. Podrobná roční rozvaha k dispozici.

Představuji vám jedinečnou příležitost převzít celoročně perfektně fungující podnik s dlouhou tradicí a výbornou pověstí. Restaurace Pod Hradem těží ze své strategické polohy v turisticky atraktivní lokalitě přímo pod hradem Český Šternberk (návštěvníků více jak 85 tis/rok). Řeka Sázava zajišťuje další hosty v podobě vodáků během sezony, kolem restaurace vedou tři cyklostezky. Můžete zde pořádat svatby, oslavy, firemní akce. V sezoně se zde stojí fronty na volný stůl.

Restaurace si vybudovala natolik dobrou pověst, že je pravidelně navštěvována i obyvateli z okolí a širokého regionu.

Okamžitá připravenost k provozu, stačí nakoupit suroviny a můžete fungovat bez dalších výrazných investic.

Hlavní budova:
Užitná plocha přízemí 331 m² (restaurace, výčep, dětský koutek, kuchyně s chladícím boxem, sociální zařízení, sklady a chodby). Excelentní, funkčně řešený otevřený prostor hlavní části restaurace s výčepem a navazující kuchyní. Stávající kapacita přes 100 osob. Kompletní náklady na provoz restaurace (elektřina, vytápění, plyn, voda, odpad) činí 380 tis. Kč/rok.

Sklepní prostory pod budovou 56 m², sloužící pro uskladnění, technické zázemí, případně část jako kotelna a další jiné využití.

Letní zahrádka o ploše 250 m², současná kapacita 100 osob.

Samostatná prodejna zmrzliny o 18 m² s výdejním okénkem do ulice, vybavená a připravená k provozu s kompletním zázemím, která výrazně přispívá k celkovému obratu podniku.

Skladovací prostory o velikosti 45 m² v části naproti hlavní budově nabízí možnost vybudování menšího vinného sklípku a třeba i udírny, která zde již v minulosti byla.

Vjezd pro zásobování zajištěn vraty z ulice přímo do dvora.

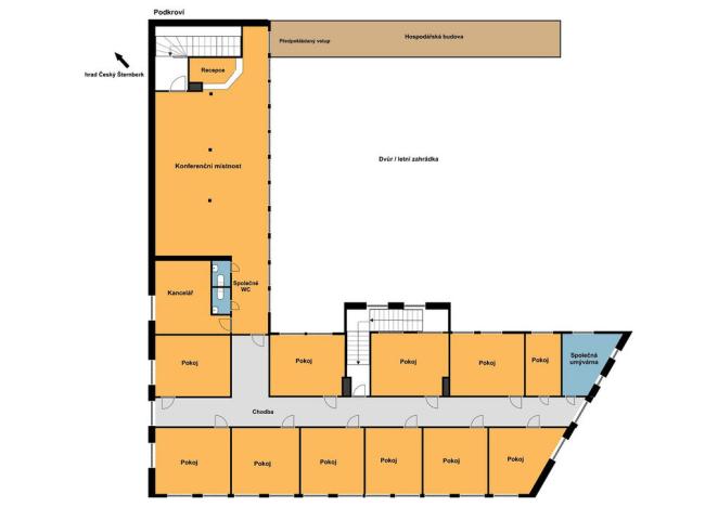
Plocha podkroví 300 m² nabízí možnost vybudování ubytování. Dříve zde pokoje již byly a návrat k využití je realizovatelný. Počítáno s 11 pokoji, konferenční místností, recepcí a společným sociálním zařízením. Vhodné si zde vybudovat vlastní bydlení.

Rekonstrukce stavebních a technických prvků proběhla v letech 2014–2017, zateplení obvodového zdiva, podlah a stropů mezi přízemím a podkrovím, výměna stropních trámů, instalace plastových, dřevěných oken a dveří. Komplet nová elektroinstalace, rozvaděč 3x80A, vodoinstalace. Vytápění elektrickým kotlem s ústředním topením. Vyvložkování komínu, možnost okamžitého napojení kotle na TP. Připojení na obecní vodovod a vlastní studnu (pro užitnou vodu), odpad řešen přes velkokapacitní vlastní ČOV. Zabezpečeno alarmem, kamerami.
Rozšíření kapacity restaurace a dvorku přidáním dalších stolů umožní navýšit počet hostů během nejvytíženějších období, dále pak zprovoznění vinného sklípku v hospodářské budově.

Restaurace je vybavena profesionální technikou z nerezové oceli a ostatním vybavením (komplet vybavení kuchyně, kuchyňské spotřebiče, míchače, konvektomaty, kávovary, zmrzlinovač, platební terminály, stoly, židle atd). Veškeré movité vybavení je udržováno, repasováno, kontrolováno, s revizemi, ve výborném stavu a může být odkoupeno za cenu 2 mil. Kč + DPH. Kompletní seznam zařízení bude předložen vážným zájemcům.

Nemovitost není v povodňovém pásmu ani 100 leté vody, ochranné památkové pásmo.

Parkování zajištěno na obecním parkovišti před restaurací.

Současní majitelé odcházejí s těžkým srdcem, nikoliv však z ekonomických důvodů – podnik je v perfektní kondici, plně fungující a připraven na další provoz a rozvoj. Při prohlídce vám vše rád vysvětlím.

Veškeré stavební projekty, pasporty, revize, opravy, přehled nákladů jsou k dispozici.

Kontaktujte mě ještě dnes, podobné příležitosti jsou velmi vzácné.

Více informací najdete na mém webu, odkaz v profilu makléře.

Cena
26 000 000 Kč Spočítat hypotéku
Poznámka k ceně
včetně provize RK
Aktualizováno
3. 8. 2025
Adresa
Český Šternberk
ID
00003
Stavba
Smíšená
Stav objektu
Dobrý
Vybaveno
Ano
Lokalita objektu
Centrum obce
Užitná plocha
480 m2
Zastavěná plocha
499 m2
Plocha pozemku
801 m2
Třída energetické náročnosti
G - Mimořádně nehospodárná

Máte zájem o tuto nemovitost?

Tímto, v souladu s nařízením Evropského parlamentu a Rady (EU) 2016/679, v platném znění, prohlašuji, že mi je alespoň 16 let a uděluji tak svůj souhlas se zpracováním zadaných údajů (jméno, telefon, e-mail, ip adresa) společnosti B3 Technology, s.r.o., IČ: 07330600, se sídlem Novostavby 126/23, 435 11 Lom (správce dat), za účelem předání dotazu z tohoto formuláře Vámi vybranému inzerentovi a zpětného kontaktování mé osoby. Osobní údaje bude správce zpracovávat manuálně i automaticky přímo prostřednictvím svých zaměstnanců. Informace předané tímto formulářem budou uloženy v databázi správce maximálně po dobu 10 let. Odvolání souhlasu s uložením a zpracováním poskytnutých dat lze e-mailem na info@realitymat.cz. V případě podezření na neoprávněné použití Vámi poskytnutých údajů máte právo předat podnět k šetření Úřadu pro ochranu osobních údajů. Více informací
Chystáte se prodat nemovitost?
Pomůžeme Vám!
Theleadway banner

Kontakt

Jindřich Kuthan

Jindřich Kuthan

Přihlášení k odběru

Nenechte si ujít nejnovější nabídky prodeje restaurací v Českém Šternberku.

Podobné nabídky