Prodej bytu 3+kk, Kašperské Hory, Zlatá stezka, 52 m2 (ID: 1897115)
Zlatá stezka, Kašperské Hory, okres Klatovy
(REZERVACE)
Popis
REZERVACE
Poloha domu: Stylový apartmánový dům se nachází v jedinečné lokalitě Šumavy, přímo v malebném městečku Kašperské Hory, které se pyšní výškou 758 m n. m. Siluetu krajiny dotváří majestátní hrad Kašperk – nejvýše položený hrad v Čechách, jenž zde stojí jako vzpomínka na éru Karla IV. Tato dominanta spolu s překrásnou přírodou vytváří pohádkové kouzlo staré Šumavy. Kašperské Hory okouzlí svým historickým náměstím s romantickými domy, kašnou a gotickým kostelem sv. Markéty. Na okraji města se nachází kostel sv. Mikuláše, obestřený legendami, kde jsou pořádány koncerty s výjimečnou atmosférou. Díky kompletní občanské vybavenosti (škola, školka, lékař, knihovna, muzea, restaurace) a skiareálu s večerním osvětlením i letními možnostmi pěší turistiky a cyklistiky je toto místo ideální pro celoroční bydlení i rekreaci.
Popis apartmánového domu: 
Bytový dům, původně měšťanský dům zmiňovaný již kolem roku 1830, se nachází v klidné části Zlaté stezky. Jeho poloha kombinuje blízkost přírody a historického centra – pouhé 3 minuty pěší chůze na náměstí. Dům byl citlivě renovován, aby zachoval svůj historický ráz a zároveň splňoval moderní energetické standardy (třída C – úsporná). Jedním z unikátních prvků je pavlač, která umocňuje jeho historický charakter.
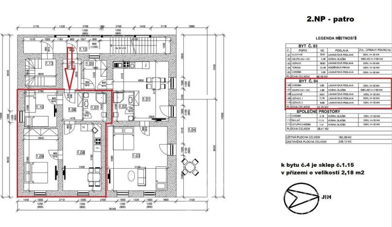
Popis nabízeného apartmánu č.4 : Apartmán o výměře 52,35 m² nabízí: Vstupní chodbu, Koupelnu se sprchovým koutem, Ložnici, Obývací místnost s kuchyňským koutem, Druhou ložnici. Byt je vybaven bezpečnostními vstupními dveřmi, dřevěnými okny s izolačním trojsklem, masivními interiérovými dveřmi, sklepem v přízemí domu (zahrnutý v ceně). Technické vybavení: byt je napojen na centrální teplovod z městské výtopny na biomasu, s podlahovým vytápěním a samostatným měřením spotřeby tepla. Nabízí moderní komfort v souladu s ekologickými trendy. Byt nebyl dosud obýván, takže se prodává jako nový. Měsíční příspěvek do fondu oprav činí 1 880 Kč + elektřina dle spotřeby.
Máte zájem o tuto nemovitost?
Hájkova 192, Sušice
Pomůžeme Vám!
Pomůžeme Vám!
Kontakt
 
                        Ilona Korcová
Přihlášení k odběru
Nenechte si ujít nejnovější nabídky prodeje bytů 3+kk v Kašperských Horách.
Podobné nabídky
 
        Prodej bytu 3+kk, Kašperské Hory, Horní, 96 m2
5 990 000 Kč
 
        Prodej bytu 3+kk, Nýrsko, 72 m2
4 850 000 Kč
 
        Prodej bytu 3+kk, Železná Ruda - Špičák, 58 m2
8 290 000 Kč
 
                                                                                     
                                                                                     
                                                                                     
                                                                                     
                                                                                     
                                                                                     
                                                                                     
                                                                                     
                                                                                     
                                                                                     
                                                                                     
                                                                                     
                                                                                     
                                                                                     
                                             
                                             
        