Pronájem obchodního prostoru, Kolín, Karlovo náměstí, 114 m2
Karlovo náměstí, Kolín I
(K ceně je třeba připočítat zálohu na el. energii, kauci ve výši 24000 Kč a odměnu RM 12000,-Kč + DPH)
Popis
Nabízíme k pronájmu jedinečné obchodní prostory v centru města Kolín - Karlovo náměstí. 
Vzhledem ke své pozici lze využít také jako prostory kanceláře s výhledem na náměstí a kostel sv. Bartoloměje.
Mezi další benefity, mimo strategickou pozici, bezpochyby patří oddělený vstup od prostor v přízemí, klimatizace i možnost využití nákladního výtahu po dohodě se správcem.
V případě dlouhodobého nájmu lze sjednat dohodu o rekonstrukci se správcem budovy. Podíl na rekonstrukci by následně mohl být řešen formou odpuštění nájmů po určitou dobu.
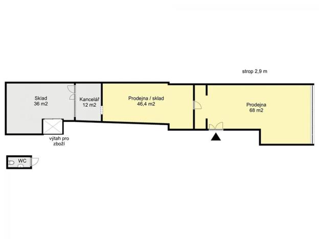
Do prostor není přivedena voda a odpady. Toaleta s umyvadlem je situována v 3.nadzemním podlaží.
Měsíční nájemné činí 12 000,-Kč + DPH, 
Energie jsou hrazeny formou měsíčních záloh pronajímateli (elektřina 3000,-Kč, teplo 5500 Kč, voda 200 Kč/osoba). 
Společné prostory 1000,-Kč/měsíc.
Při podpisu nájemní smlouvy se skládá vratná kauce ve výši 24000,-Kč, první nájemné činí 12000,-Kč + DPH, zálohy na služby 9700,-Kč a provize RK ve výši 12000,-Kč + DPH.
Obchodní prostory: 114 m2
Skladové prostory: 48 m2 
V případě zájmu mě neváhejte kontaktovat.
Máte zájem o tuto nemovitost?
Na Louži 871, Kolín
Pomůžeme Vám!
Pomůžeme Vám!
Kontakt
 
                        Aleš Huml
Přihlášení k odběru
Nenechte si ujít nejnovější nabídky pronájmu obchodních prostor v Kolíně.
 
                                                                                     
                                                                                     
                                                                                     
                                                                                     
                                                                                     
                                                                                     
                                                                                     
                                                                                     
                                                                                     
                                                                                     
         
         
        