Prodej ubytování, Světlá nad Sázavou, 828 m2 (ID: 1894400)

Světlá nad Sázavou, Kochánov


Cena na vyžádání /za nemovitost
Získejte výhodnou HYPOTÉKU

(včetně právního servisu, s provizí RK)


Regionální dodavatelé v Světlé nad Sázavou

Popis

Dobrý den,

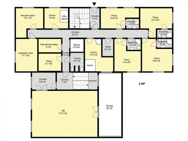
dovoluji si Vám nabídnout ke koupi malebné lázně Casiopea, které se nacházejí na okraji vesničky Kochánov poblíž Světlé nad Sázavou. Lázně disponují pokoji s vlastním sociálním zařízením, TV a Wi-fi.
Mezi lázeňské vybavení nemovitosti patří tři sauny, a to 2x finská a jedna infra sauna, masážní sprchy a vany, měděná vana, masážní salónek a kosmetická místnost. Dále k nemovitosti náleží restaurace s krbem, barem a vybavenou kuchyní, prostorná společenská/taneční místnost s vyhrazeným prostorem pro hudebníky a byt pro správce.
Venkovní prostory lázní nabízejí gril, udírnu, venkovní bazén, dětské hřiště a posezení vedle malebného potůčku s přímým vstupem do restaurace.

Svým umístěním vedle řeky Sázavy jsou lázně ideálním místem pro relaxaci a venkovní rekreační aktivity. Ze zajímavých míst v okolí stojí za to navštívit například zámek Světlá nad Sázavou, Ski areál Kadlečák, Národní památník odposlechu, hrady Lipnice a Ledeč nad Sázavou nebo záchrannou stanici v obci Pavlov.


Pokud máte zájem o prohlídku či více informací, tak neváhejte mě kontaktovat.

Cena
Cena na vyžádání Spočítat hypotéku
Poznámka k ceně
včetně právního servisu, s provizí RK
Aktualizováno
31. 10. 2025
Adresa
Světlá nad Sázavou, Kochánov
ID
737
Stavba
Cihlová
Stav objektu
Dobrý
Vybaveno
Ano
Užitná plocha
828 m2
Elektřina
230V
Odpad
Jímka
Topení
Lokální elektrické
Komunikace
Zpevněná
Doprava
Silnice
Voda
Vodovod, Studna
Zdroj topení
Elektrokotel
Bezbarierový přístup
Parkování

Máte zájem o tuto nemovitost?

Tímto, v souladu s nařízením Evropského parlamentu a Rady (EU) 2016/679, v platném znění, prohlašuji, že mi je alespoň 16 let a uděluji tak svůj souhlas se zpracováním zadaných údajů (jméno, telefon, e-mail, ip adresa) společnosti B3 Technology, s.r.o., IČ: 07330600, se sídlem Novostavby 126/23, 435 11 Lom (správce dat), za účelem předání dotazu z tohoto formuláře Vámi vybranému inzerentovi a zpětného kontaktování mé osoby. Osobní údaje bude správce zpracovávat manuálně i automaticky přímo prostřednictvím svých zaměstnanců. Informace předané tímto formulářem budou uloženy v databázi správce maximálně po dobu 10 let. Odvolání souhlasu s uložením a zpracováním poskytnutých dat lze e-mailem na info@realitymat.cz. V případě podezření na neoprávněné použití Vámi poskytnutých údajů máte právo předat podnět k šetření Úřadu pro ochranu osobních údajů. Více informací
Chystáte se prodat nemovitost?
Pomůžeme Vám!

Kontakt

Vojtěch Novotný

Vojtěch Novotný

Přihlášení k odběru

Nenechte si ujít nejnovější nabídky prodeje ubytování v Světlé nad Sázavou.