Pronájem obchodního prostoru, Ústí nad Labem, Žižkova, 360 m2

Žižkova, Ústí nad Labem-centrum


45 000 Kč /za měsíc
Získejte výhodnou HYPOTÉKU

(+ zálohy na energie)


Regionální dodavatelé v Ústí nad Labem

Okna a dveře

Rekonstrukce

Zámečnické práce

Popis

K dlouhodobému pronájmu Vám nabízíme obchodní a výrobní prostory, vhodné na velkoobchodní zastoupení firmy , lehkou výrobu, skladování nebo případnou servisní činnost.
Tyto prostory jsou umístěné v obchodním areálu Sartopark, Žižkova 722/67, Ústí nad Labem, při hlavní komunikaci E442, na sjezdu dálnice D8 do centra Ústí nad Labem. V místě s výbornou dopravní obslužností a vysokou frekventovaností.

Stěžejní info:
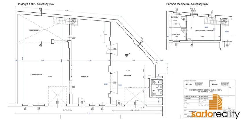
* Velikost prostor - 360 m2
* Cena - 125,-Kč/m2
* El. proud - 230/400V
* Výška prostor 4,0-6,0 m
* Sekční vrata
* Areál přístupný 24/7
* Možnost vyhrazených parkovacích míst

V Sartoparku dlouhodobě sídlí významné firmy, např. Elfetex, Würth, VEKRA okna, Yamaha, sklad IKEA a další.
Prostory jsou rozdělené na 3 propojené sekce, s možností vjezdu sekčními vraty. Po dohodě s možností dalších dílčích úprav. K dispozici od 10/2025. Více info rádi poskytneme při dalším jednání. Nájemce neplatí provizi!

Cena
45 000 Kč /za měsíc
Poznámka k ceně
+ zálohy na energie
Aktualizováno
29. 7. 2025
Adresa
Žižkova, Ústí nad Labem-centrum
ID
00044
Stavba
Smíšená
Stav objektu
Velmi dobrý
Lokalita objektu
Centrum obce
Užitná plocha
360 m2
Třída energetické náročnosti
G - Mimořádně nehospodárná
Elektřina
230V, 400V
Odpad
Veřejná kanalizace
Komunikace
Asfaltová
Doprava
Vlak, Dálnice, Silnice, MHD, Autobus
Voda
Vodovod
Výtah
Parkování

Máte zájem o tuto nemovitost?

Tímto, v souladu s nařízením Evropského parlamentu a Rady (EU) 2016/679, v platném znění, prohlašuji, že mi je alespoň 16 let a uděluji tak svůj souhlas se zpracováním zadaných údajů (jméno, telefon, e-mail, ip adresa) společnosti B3 Technology, s.r.o., IČ: 07330600, se sídlem Novostavby 126/23, 435 11 Lom (správce dat), za účelem předání dotazu z tohoto formuláře Vámi vybranému inzerentovi a zpětného kontaktování mé osoby. Osobní údaje bude správce zpracovávat manuálně i automaticky přímo prostřednictvím svých zaměstnanců. Informace předané tímto formulářem budou uloženy v databázi správce maximálně po dobu 10 let. Odvolání souhlasu s uložením a zpracováním poskytnutých dat lze e-mailem na info@realitymat.cz. V případě podezření na neoprávněné použití Vámi poskytnutých údajů máte právo předat podnět k šetření Úřadu pro ochranu osobních údajů. Více informací
Chystáte se prodat nemovitost?
Pomůžeme Vám!

Kontakt

Jiří Krejčí

Jiří Krejčí

Přihlášení k odběru

Nenechte si ujít nejnovější nabídky pronájmu obchodních prostor v Ústí nad Labem.

Podobné nabídky