Prodej vícegeneračního domu, Praha - Hostavice, Kaňovská, 210 m2 (ID: 1888012)
Kaňovská, Praha, Hostavice
( Cena zahrnuje provizi a veškerý právní a realitní servis.)
Popis
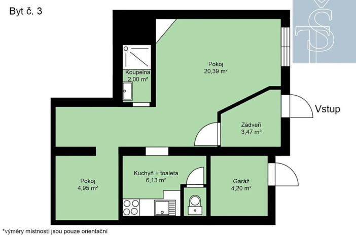
Nabízíme k prodeji rodinný dům v klidné a oblíbené lokalitě pražských Hostavic. Dům nabízí široké využití od vícegeneračního bydlení po komerční využití spojené s bydlením či jako investice do nájemního bydlení. Skvělá investice - dům se třemi prostornými byty. Hlavní stavba domu (dispozice dle přiloženého schématu) nabízí byt o velikosti 4+1 (v přízemí obývací pokoj, kuchyň, jídelna a obývací pokoj, koupelna, v patře 2 ložnice a další koupelna, terasa) a 2+1 v přízemí s vlastním vstupem (2 pokoje, kuchyň, koupelna). 
Novější přístavba disponuje bytem rovněž se samostatným vstupem o dispozici 4+kk. Dispoziční schémata bytů přiložená ve fotodokumentaci.
Celkově se v nemovitosti nachází 3 krbová kamna, jinak je dům vytápěn plynovým kotlem a připojen na veřejný vodovod a kanalizaci. Dům je v dobrém technickém stavu bez nutností rozsáhlejších rekonstrukcí, k užívání prakticky ihned. Na pozemku se nachází ještě dřevník (sklad), pergola s posezením, terasa. Parkování je možné jak ve dvoře, tak na vymezeném místě před domem v přilehlé ulici. 
Přístavba je prakticky samostatným domem, stavby na sebe sice navazují, ale jsou na sobě vzájemně nezávislé (energie, inženýrské sítě apod.).
V dané lokalitě se nachází kompletní občanská vybavenost, přírodní park v Pískovně, Počernický rybník, cyklostezky, golfové hřiště, paintball, adrenalinová dráha a další. Obrovskou výhodou nemovitosti je místo samotné, vytvářející oázu klidu uprostřed velkoměsta.
Máte zájem o tuto nemovitost?
Na Pankráci 332/14, Praha
Pomůžeme Vám!
Pomůžeme Vám!
Kontakt
 
                        Marek Šlosar
Přihlášení k odběru
Nenechte si ujít nejnovější nabídky prodeje vícegeneračních domů v Praze 9.
Podobné nabídky
 
        Prodej rodinného domu, Praha, Na nové silnici, 110 m2
10 960 000 Kč
 
                                                                                     
                                                                                     
                                                                                     
                                                                                     
                                                                                     
                                                                                     
                                                                                     
                                                                                     
                                                                                     
                                                                                     
                                                                                     
                                                                                     
                                                                                     
                                                                                     
                                                                                     
                                                                                     
                                                                                     
                                                                                     
                                                                                     
                                                                                     
                                                                                     
                                                                                     
                                                                                     
                                                                                     
                                                                                     
                                                                                     
                                                                                     
                                             
         
         
        