Prodej bytu 3+kk, Zadar, Chorvatsko, 74 m2

Zadar


355 250 € /za nemovitost

Regionální dodavatelé

Popis

Dovolujeme si Vám nabídnout na prodej hezký apartmán se 2 ložnicemi v novostavbě s částečným výhledem na moře v ZadaruKožino v Zadarské oblasti v Chorvatsku.

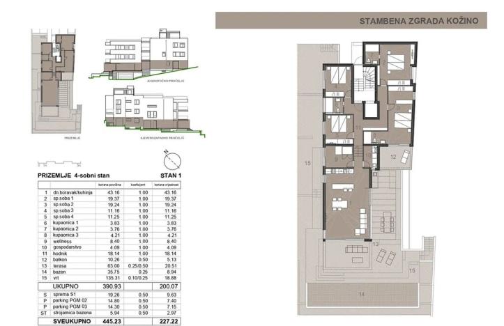
Apartmán S3 o ploše 74,36 m2 je umístěný v 1. patře třípodlažní budovy a sestává z chodby, 2 ložnic, koupelny, obývacího pokoje s kuchyní a jídelnou se vstupem na prostornou terasu s výhledem na moře. V každé místnosti je klimatizace na chlazení i vytápění a v koupelně je elektrické podlahové vytápění, na oknech jsou elektrické rolety. Apartmán je vybaven vysoce kvalitní italskou keramikou, sanitou značky Grohe a Laufen, a dům je zateplený. K apartmánu náleží jedno parkovací stání v garáži a jedno před budovou a také úložný prostor.

Dům je napojený na vodovodní a kanalizační řád a od moře je vzdálený 80 m.

Letovisko Kožino se nachází cca 5 km severozápadně od města Zadar. Město Zadar se kvůli velkému množství kostelů a římským památkám (např. Zadarské Foru, na němž vyrostl kostel sv. Donáta, nazývá „Malým chorvatským Římem“. V Zadaru se dále nachází dvě světové unikátní atrakce, Mořské varhany (Morske orgulje) a Pozdrav Slunci (Pozdrav Suncu). Na Riviéře Zadar se nachází i další historická místa s překrásnými památkami.

Cena
355 250 € /za nemovitost
Aktualizováno
4. 8. 2025
Adresa
Zadar
ID
CHSM25-061-S3
Stavba
Smíšená
Stav objektu
Novostavba
Patro
2. z 3
Vlastnictví
Osobní
Užitná plocha
74 m2
Podlahová plocha
74 m2
Třída energetické náročnosti
G - Mimořádně nehospodárná
Odpad
Veřejná kanalizace
Voda
Vodovod
Garáž
Terasa
Parkování

Máte zájem o tuto nemovitost?

Tímto, v souladu s nařízením Evropského parlamentu a Rady (EU) 2016/679, v platném znění, prohlašuji, že mi je alespoň 16 let a uděluji tak svůj souhlas se zpracováním zadaných údajů (jméno, telefon, e-mail, ip adresa) společnosti B3 Technology, s.r.o., IČ: 07330600, se sídlem Novostavby 126/23, 435 11 Lom (správce dat), za účelem předání dotazu z tohoto formuláře Vámi vybranému inzerentovi a zpětného kontaktování mé osoby. Osobní údaje bude správce zpracovávat manuálně i automaticky přímo prostřednictvím svých zaměstnanců. Informace předané tímto formulářem budou uloženy v databázi správce maximálně po dobu 10 let. Odvolání souhlasu s uložením a zpracováním poskytnutých dat lze e-mailem na info@realitymat.cz. V případě podezření na neoprávněné použití Vámi poskytnutých údajů máte právo předat podnět k šetření Úřadu pro ochranu osobních údajů. Více informací
Chystáte se prodat nemovitost?
Pomůžeme Vám!

Kontakt

Violeta Borisova

Violeta Borisova

Přihlášení k odběru

Nenechte si ujít nejnovější nabídky prodeje bytů 3+kk.

Podobné nabídky