Prodej bytu 2+1, Brno, náměstí SNP, 55 m2
náměstí SNP, Brno, Černá Pole
(VČETNÉ provize RK, včetně právního servisu, včetně poplatků)
Popis
Hledáte byt na skvělé adrese, který byste si  zrekonstruovali podle svých potřeb a vyšperkovali  podle svého vkusu? Jeden takový, volný a vyklizený, čeká na nové majitele v Brně - Černých Polích, přímo  u parku na náměstí SNP.
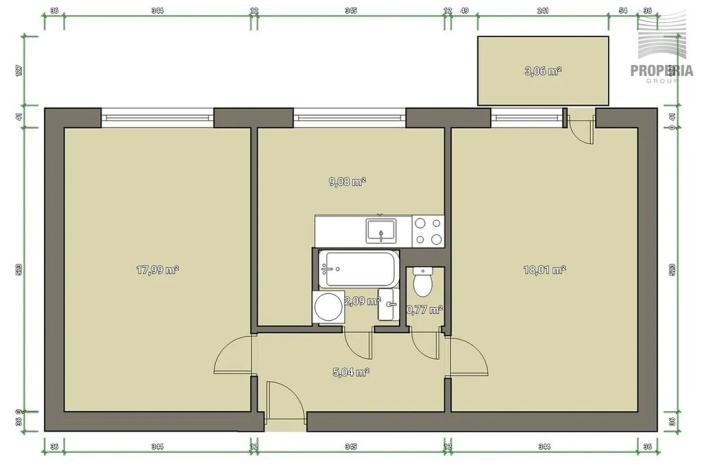
Má dispozici 2+1 s balkonem, je v původním stavu (s umakartovým jádrem), přesto má i nyní svoje kouzlo... Mezi fotografiemi najdete i orientační plánek bytu.
Byt se nachází v posledním (8.) podlaží , takže nehrozí, že by Vás shora rušilo dupání dětských nožiček..., z balkonu i všech oken nabízí krásný výhled na okolí plné zeleně, orientován je na jihovýchod. Bytový dům je po revitalizaci, výtah je samozřejmostí, v přízemí domu je sklepní kóje, k dispozici je i společná kolárna a kočárkárna.
Při koupi nemovitostí je nejdůležitější lokalita a troufám si říct, že v Brně těžko najdete lepší místo pro bydlení, než jsou Černá Pole, sama bydlím nedaleko. Černá Pole jsou z velké části tvořena zástavbou rodinnými domy, tyto klidné ulice spolu se spoustou zeleně a několika parky lákají k procházkám a sportovním aktivitám, třeba v  krásném parku Schreberovy zahrádky a v okolí vily Tugendhat. No a pokud někdo dává přednost klidnému odpočinku, stačí sjet výtahem a posedět třeba na lavičce v parku přímo u domu.
Co se týče občanské vybavenosti, přímo na Náměstí SNP najdete vše potřebné. Pár metrů od domu jsou MŠ a ZŠ, dětská hřiště, restaurace, posilovna, wellness, knihovna, sportoviště, obchůdky, zubní ordinace, lékárna, také Mendelova univerzita s arboretem,.., a co nenajdete tady, najdete  o kousek dál, třeba na Lesné (supermarkety, polikliniku na Halasově nám., krytý bazén Tesla..).
Do centra se dostanete tramvají za 10 minut, já jsem si to dávala s kočárkem přes nedaleké Lužánky i pěšky, je to skvělá procházka. Výborná je i dostupnost do všech brněnských nemocnic, středních i vysokých škol, divadel, nákupních center.. 
Parkování je možné v okolí domu v modrých zónách. S majiteli budeme nabízet k prodeji i garáž v parkovacím domě na ulici Loosova. I když to není zrovna u domu, třeba by se také hodila..
Měsíční náklady vychází na 3.898,- Kč (z toho fond oprav 1.103,- Kč) + elektřina a plyn (pouze sporák). 
Pokud Vás tato nabídka zaujala, volejte, pište, ráda sdělím více informací a domluvíme se na prohlídku. Budu se na Vás těšit!
Máte zájem o tuto nemovitost?
Máchova 1301/2, Brno, Královo Pole
Pomůžeme Vám!
Pomůžeme Vám!
Kontakt
 
                        Lenka Kocí Panáčková
Přihlášení k odběru
Nenechte si ujít nejnovější nabídky prodeje bytů 2+1 v Brně.
Podobné nabídky
 
        Prodej bytu 2+1, Brno, Kobylín, 53 m2
6 190 000 Kč
 
        Prodej bytu 2+1, Brno, Húskova, 54 m2
5 390 000 Kč
 
        Prodej bytu 2+1, Brno, 76 m2
7 600 000 Kč
 
        Prodej bytu 2+1, Brno, Karlova, 48 m2
4 000 000 Kč
 
                                                                                     
                                                                                     
                                                                                     
                                                                                     
                                                                                     
                                                                                     
                                                                                     
                                                                                     
                                                                                     
                                                                                     
                                                                                     
                                                                                     
                                                                                     
                                                                                     
                                                                                     
                                                                                     
                                                                                    