Prodej činžovního domu, Velké Meziříčí - Mostiště, 380 m2 (ID: 1884058)

Velké Meziříčí, Mostiště


10 300 000 Kč /za nemovitost
HYPOTÉKA od 46 035 Kč /měs.

(Za nemovitost.)


Regionální dodavatelé v Velkém Meziříčí

Popis

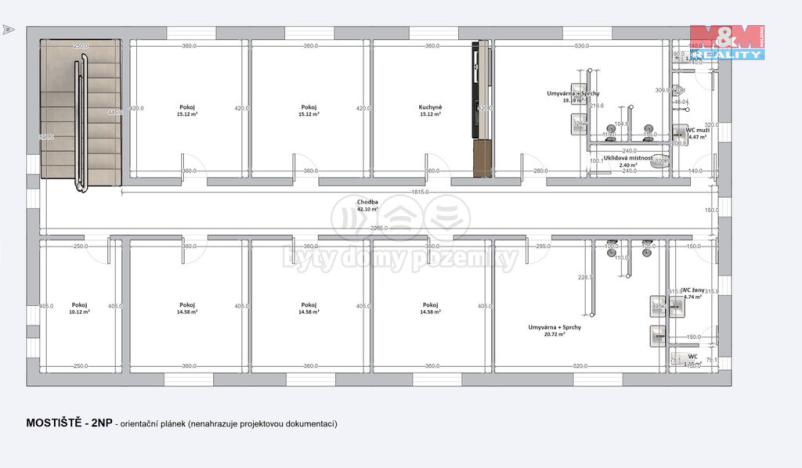
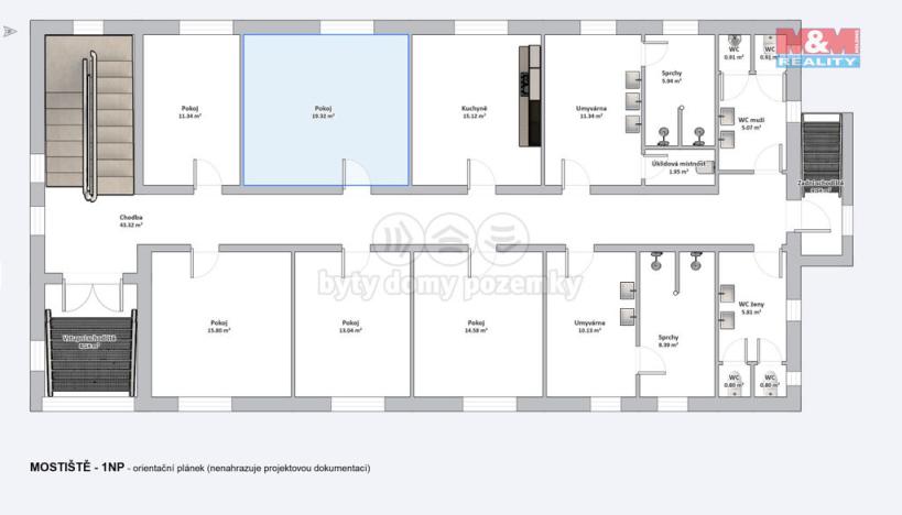
Nabízíme k prodeji ubytovací dům v klidné části Mostiště, v bezprostřední blízkosti Velkého Meziříčí. Tento zděný dům s dvěma NP a jedním PP představuje vynikající příležitost pro investici do ubytovacího zařízení. Dům disponuje celkem 10 dvoulůžkovými pokoji, které byly nedávno zrekonstruovány, dvěmi vybavenými kuchyněmi, dvěma koupelnami se sprchovým koutem a umyvadly a dvěma místnostmi s toaletami. K dispozici je také parkování ve 4 garážích přímo u objektu, což zajišťuje pohodlné parkování pro hosty. Celý objekt je ve velmi dobrém technickém stavu a průběžně je udržován a modernizován. Poslední rekonstrukce proběhla v roce 2021. Pro vytápění a ohřev vody je využívána vlastní kotelna, kde nalezneme plynový kotel, tepelné čerpadlo, bojler. Dům je napojen na inženýrské sítě. Kromě toho je k dispozici vyhrazené parkovací stání zdarma. Ubytovna je momentálně plně pronajmuta. Tento dobře udržovaný dům nabízí potenciál pro stabilní výnosy z pronájmu.

Cena
10 300 000 Kč /za nemovitost Spočítat hypotéku
Poznámka k ceně
Za nemovitost.
Aktualizováno
4. 8. 2025
Adresa
Velké Meziříčí, Mostiště
ID
870004
Stavba
Cihlová
Stav objektu
Dobrý
Vybaveno
Ano
Lokalita objektu
Polosamota
Vlastnictví
Osobní
Užitná plocha
380 m2
Plocha pozemku
868 m2

Máte zájem o tuto nemovitost?

Tímto, v souladu s nařízením Evropského parlamentu a Rady (EU) 2016/679, v platném znění, prohlašuji, že mi je alespoň 16 let a uděluji tak svůj souhlas se zpracováním zadaných údajů (jméno, telefon, e-mail, ip adresa) společnosti B3 Technology, s.r.o., IČ: 07330600, se sídlem Novostavby 126/23, 435 11 Lom (správce dat), za účelem předání dotazu z tohoto formuláře Vámi vybranému inzerentovi a zpětného kontaktování mé osoby. Osobní údaje bude správce zpracovávat manuálně i automaticky přímo prostřednictvím svých zaměstnanců. Informace předané tímto formulářem budou uloženy v databázi správce maximálně po dobu 10 let. Odvolání souhlasu s uložením a zpracováním poskytnutých dat lze e-mailem na info@realitymat.cz. V případě podezření na neoprávněné použití Vámi poskytnutých údajů máte právo předat podnět k šetření Úřadu pro ochranu osobních údajů. Více informací
Chystáte se prodat nemovitost?
Pomůžeme Vám!

Kontakt

Simona Haráková

Simona Haráková

Přihlášení k odběru

Nenechte si ujít nejnovější nabídky prodeje činžovních domů v Velkém Meziříčí.

Podobné nabídky