Prodej bytu 4+1, Praha - Vinohrady, Uruguayská, 165 m2

Uruguayská, Praha 2


29 990 000 Kč /za nemovitost
HYPOTÉKA od 134 037 Kč /měs.
Regionální dodavatelé v Praze 2

Stěhovací služby

Výkup a prodej starého nábytku

Popis

Koupě bytu na pražských Vinohradech patří mezi nejstabilnější rezidenční investice: tradiční čtvrť s aktivním společenským životem, špičkovými školami, kavárnami a restauracemi, perfektní dopravní dostupností do centra a množstvím zeleně v okolních parcích.

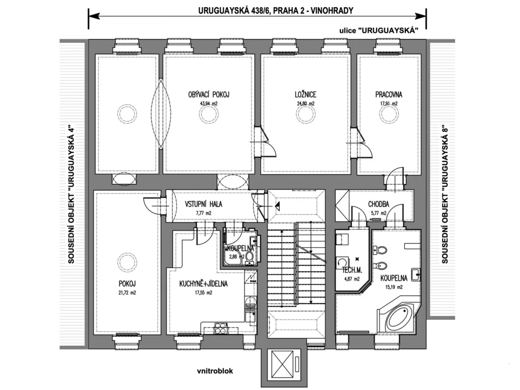
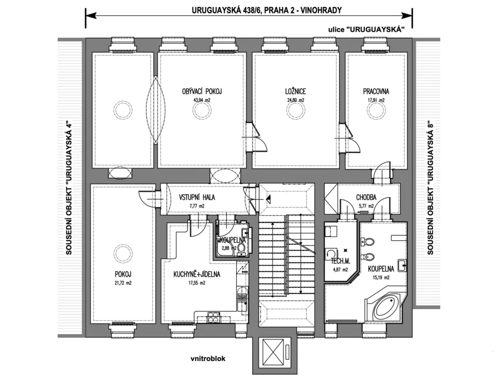
Nabízíme prostorný byt 4+1 o užitné ploše 162,4 m² ve 3. NP / 2. patře udržovaného historického cihlového domu ve Vinohradech, ul. Uruguayská. Jednotka zabírá celé patro a vznikla sloučením tří původních bytů, což zajišťuje mimořádné soukromí i flexibilitu pro další úpravy dispozic.

Současné uspořádání: velký obývací prostor vzniklý propojením dvou místností + herna / hudební kout s klavírním křídlem, samostatná kuchyně s jídelnou, dále tří velké pokoje, dvě koupelny, samostatné WC, technická místnost a široké chodby. Celkové členění ploch: obytná část 108,4 m², kuchyně + jídelna 17,6 m², zázemí (koupelny, komunikace, technická část) 36,4 m².

Byt prošel při sloučení celkovou modernizací – nové měděné elektro rozvody, nové rozvody vody a kanalizace s měřením T/S, vytápění a TUV z vlastního plynového kotle se zásobníkem, rozvody do radiátorů, příprava na vysokorychlostní internet a kabelovou TV (optická síť). Stav hodnocen jako velmi dobrý; konstrukce bez zjevných poruch.

Dům je reprezentativní vinohradská činžovní stavba z přelomu 19./20. století; vstupní vestibul navazuje na průjezd do zeleného vnitrobloku, schodiště po kompletní renovaci, přístup k výtahu z mezipodest.

Lokalita: stabilizované obytné území v městské památkové zóně Vinohrady; v docházce metro A – Náměstí Míru, tramvaje i autobusy, bohatá občanská vybavenost, parky typu Riegrovy sady. Území napojeno na všechny městské sítě (voda, kanalizace, plyn, elektřina, data) a leží mimo záplavové území.

Právní a technické jistoty: byt v osobním vlastnictví.
Nemovitost se nachází v běžné městské zástavbě mimo zvláštní ochranná nebo bezpečnostní pásma; objekt není v záplavovém území ani v ochranném pásmu kulturní památky dle evidence NPÚ.

Vybavení, materiály & atmosféra
• Původní dřevěná špaletová okna (zachovalá; přirozené větrání, historický charakter).
• Dubové parkety ve většině obytných místností; dlažby ve zázemí.
• Vlastní plynový kotel – topení + TUV (kombinovaný).
• Rozvody v mědi, měřená voda, radiátory.
• Optické datové připojení možné.

Úložné prostory
K bytu náleží sklepní místnost cca 9 m²

Investiční potenciál
Díky historickému sloučení tří bytů lze uvažovat o několika scénářích: zachování velkorysého rodinného bytu, rozčlenění na více apartmánů pro nájemní výnos, či částečná rekonstrukce s vyčleněním pracovny / ordinace (po projednání se stavebním úřadem). Základní podklady v pasportu k dispozici.

Cena a financování
29 990 000 Kč (≈ 185 tis. Kč/m² při 162 m² užitné plochy; sklep 9 m² nezapočten).

Zálohy na společné domovní služby, fond oprav a vodu činí pouze 6 097 Kč / měsíc.
SVJ je dobře hospodařící, bez dluhů a s řádně vedeným fondem oprav.
Byt je bez právních vad, hypoték a závazků

Cena
29 990 000 Kč /za nemovitost Spočítat hypotéku
Aktualizováno
10. 3. 2026
Adresa
Uruguayská, Praha 2
ID
Vinohrady
Stavba
Smíšená
Stav objektu
Velmi dobrý
Patro
3. z 5
Vybaveno
Částečně
Lokalita objektu
Klidná část obce
Vlastnictví
Osobní
Užitná plocha
165 m2
Podlahová plocha
175 m2
Třída energetické náročnosti
D - Méně úsporná
Ukazatel energetické náročnosti
261 kWh/m2 za rok
Plyn
Plynovod
Odpad
Veřejná kanalizace
Komunikace
Asfaltová
Telekomunikace
Telefon, Internet, Kabelová televize, Kabelové rozvody
Doprava
Vlak, Dálnice, Silnice, MHD, Autobus
Sklep
Výtah

Máte zájem o tuto nemovitost?

Tímto, v souladu s nařízením Evropského parlamentu a Rady (EU) 2016/679, v platném znění, prohlašuji, že mi je alespoň 16 let a uděluji tak svůj souhlas se zpracováním zadaných údajů (jméno, telefon, e-mail, ip adresa) společnosti B3 Technology, s.r.o., IČ: 07330600, se sídlem Novostavby 126/23, 435 11 Lom (správce dat), za účelem předání dotazu z tohoto formuláře Vámi vybranému inzerentovi a zpětného kontaktování mé osoby. Osobní údaje bude správce zpracovávat manuálně i automaticky přímo prostřednictvím svých zaměstnanců. Informace předané tímto formulářem budou uloženy v databázi správce maximálně po dobu 10 let. Odvolání souhlasu s uložením a zpracováním poskytnutých dat lze e-mailem na info@realitymat.cz. V případě podezření na neoprávněné použití Vámi poskytnutých údajů máte právo předat podnět k šetření Úřadu pro ochranu osobních údajů. Více informací
Chystáte se prodat nemovitost?
Pomůžeme Vám!

Kontakt

Sergej Gončarov

Sergej Gončarov

Přihlášení k odběru

Nenechte si ujít nejnovější nabídky prodeje bytů 4+1 v Praze 2.

Podobné nabídky