Pronájem bytu 2+kk, Praha - Smíchov, Grafická, 57 m2 (ID: 1883902)

Grafická, Praha, Smíchov


33 880 Kč /za měsíc
Získejte výhodnou HYPOTÉKU

(včetně 21% DPH + poplatky za služby)


Regionální dodavatelé v Praze 5

Stěhovací služby

Výkup a prodej starého nábytku

Popis

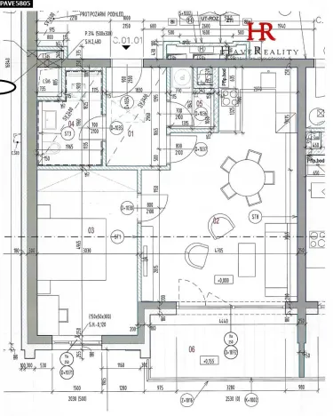
Dovolujeme si Vám s platností od 15.9.2025 nabídnout do pronájmu exkluzivní, nábytkem vybavený atelier/byt o dispozici 2+kk, 57 m2 s terasou 9 m2 v novostavbě bytového komplexu Neugraf, ulice Grafická č.p.3365/7, Praha 5 - Smíchov. Stavba bytového domu byla dokončena na jaře roku 2021. Atelier se nachází v 1.NP (bezbariérový přístup) a splňuje nejvyšší standard moderního bydlení. Dispozičně je členěn na: vstupní chodbu, koupelnu se sprchovým koutem, závěsným WC a umyvadlovou skříňkou, technickou místnost s automatickou pračkou prádla, obývací pokoj s kuchyňským koutem vybaveným vestavnými spotřebiči zn. Electrolux (myčka nádobí 60 cm, indukční varná deska, pečící trouba, lednice s mrazákem, digestoř). Obývací pokoj je vybaven rozkládací sedačkou s úložným prostorem, 4 židlemi a masivním jídelním stolem. Vstup na prostornou terasu 9,4m2 s výhledem do klidu dvora ve vnitrobloku. Ložnice je vybavena šatní skříní, 2 nočními stolky a manželskou postelí s matracemi. Okna v objektu jsou dřevěná, s izolačními 3 skly. V obou místnostech jsou instalovány předokenní žaluzie na dálkové ovládání, v obývacím pokoji rozdělené na 2 zvlášť ovladatelné části, pro pohodlný vstup na lodžii. Podlaha v pokojích a na chodbě je masivní - dřevo, v koupelně a technické místnosti je dlažba, na terase jsou rošty z termoborovice. V prostoru je funkční rekuperační jednotka. Vytápění v koupelně je elektrické podlahové, v místnostech jsou: podlahový konvektor Fancoil, v ložnici radiátor, vše ovládáno z centrální jednotky. K atelieru/bytu patří vlastní prostorná sklepní kóje a za poplatek (4.719,- Kč měsíčně) lze nabídnout možnost parkování vozu v podzemní garáži. V domě se nachází recepce s nepřetržitým provozem, soukromé wellness a společná prádelna. Na střeše BD možno využít terasu ke společnému grilování, relaxaci atd… Požadované měsíční nájemné činí 33.880,-Kč vč. DPH + zálohy na služby ve výši 6.000,-Kč včetně spotřeby elektrické energie. Jistota činí 40.000,-Kč a je vratná po ukončení nájemního vztahu. Provize pro RK ve výši 28.000,-Kč vč. DPH. Do obchodního centra Nový Smíchov se dostanete pěšky za 9 min. Mateřská a základní škola minutu pěší chůze. Nejbližší zastávka MHD 2 minuty chůze (autobus) nebo 4 minuty (tramvaj). Na stanici metra Anděl trasa B je to 11 minut pěšky. Cca 5 minut chůze od domu se nachází Park Sacré Coeur, 10 minut park Mrázovka. V případě Vašeho zájmu o prohlídku bytu nás kontaktujte na uvedeném tel. čísle. PENB třída „B“.

Cena
33 880 Kč /za měsíc
Poznámka k ceně
včetně 21% DPH + poplatky za služby
Aktualizováno
19. 7. 2025
Adresa
Grafická, Praha, Smíchov
ID
PAVE5805
Stavba
Smíšená
Stav objektu
Velmi dobrý
Patro
1. z 5
Lokalita objektu
Centrum obce
Vlastnictví
Osobní
Užitná plocha
57 m2
Podlahová plocha
57 m2
Třída energetické náročnosti
B - Velmi úsporná
Garáž
Terasa
Bezbarierový přístup
Převod do OV

Máte zájem o tuto nemovitost?

Tímto, v souladu s nařízením Evropského parlamentu a Rady (EU) 2016/679, v platném znění, prohlašuji, že mi je alespoň 16 let a uděluji tak svůj souhlas se zpracováním zadaných údajů (jméno, telefon, e-mail, ip adresa) společnosti B3 Technology, s.r.o., IČ: 07330600, se sídlem Novostavby 126/23, 435 11 Lom (správce dat), za účelem předání dotazu z tohoto formuláře Vámi vybranému inzerentovi a zpětného kontaktování mé osoby. Osobní údaje bude správce zpracovávat manuálně i automaticky přímo prostřednictvím svých zaměstnanců. Informace předané tímto formulářem budou uloženy v databázi správce maximálně po dobu 10 let. Odvolání souhlasu s uložením a zpracováním poskytnutých dat lze e-mailem na info@realitymat.cz. V případě podezření na neoprávněné použití Vámi poskytnutých údajů máte právo předat podnět k šetření Úřadu pro ochranu osobních údajů. Více informací
Chystáte se prodat nemovitost?
Pomůžeme Vám!

Kontakt

Andrea Venerová

Andrea Venerová

Přihlášení k odběru

Nenechte si ujít nejnovější nabídky pronájmu bytů 2+kk v Praze 5.

Podobné nabídky