Prodej bytu 3+kk, Praha, Tetauerova, 114 m2 (ID: 1883791)
Tetauerova, Praha 3
Popis
V žádané lokalitě Prahy 3 nabízíme k prodeji prostorný byt 3+kk v nově vzniklém rezidenčním komplexu, který je umístěn v nejvyšším patře a je ze dvou stran obklopen nosnými zdmi. Tento luxusní byt se nachází v unikátním projektu, který přetváří část Žižkova na moderní městskou lokalitu s rozsáhlými zelenými plochami a kompletní infrastrukturou. Byt nabízí komfortní bydlení s vynikající dopravní dostupností a kompletní občanskou vybaveností v okolí.
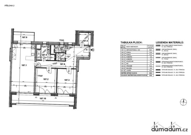
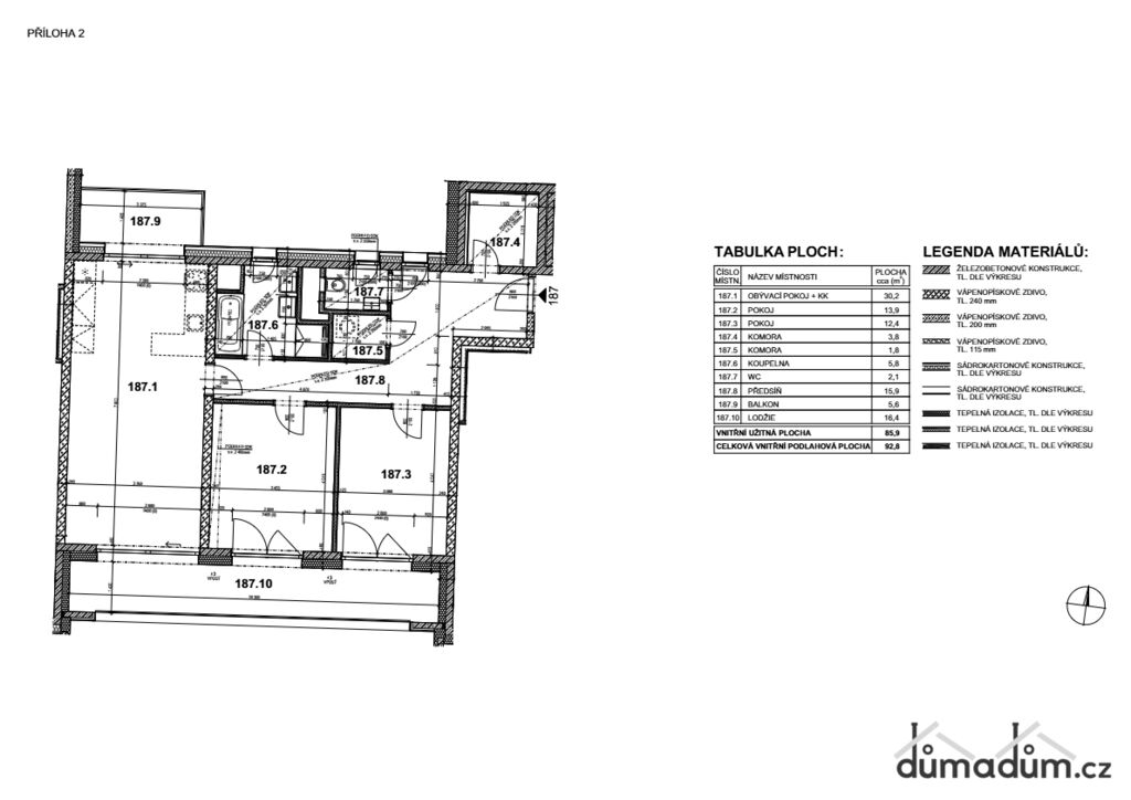
Celková plocha bytu včetně lodžie a balkonu, avšak bez sklepa a garážového stání, činí 93 m². Interiér bytu dominuje prostorný obývací pokoj s kuchyňským koutem (30 m²) a velkou lodžii (16 m²) orientovanou na jih, která rozšiřuje obytný prostor a je ideální k odpočinku. Obývací pokoj disponuje také balkonem (6 m²) na severní straně s výhledem do vnitrobloku rezidence, což umožňuje příjemnou cirkulaci vzduchu a nabízí alternativní venkovní prostor. Dvě samostatné ložnice (14 m² a 12 m²) poskytují dostatek soukromí pro všechny členy rodiny. Koupelna s WC (6 m²) a samostatné WC jsou navrženy s důrazem na funkčnost a estetiku, obě místnosti jsou vybaveny okny. Praktické dvě komory nabízejí dostatečný úložný prostor.
K bytu náleží sklepní kóje a parkovací stání v podzemní garáži.
Byt je vybaven nadstandardními prvky pro maximální komfort bydlení. Systém řízeného větrání s rekuperací tepla zajišťuje zdravé vnitřní prostředí a úsporu energií. Klimatizace poskytuje příjemné prostředí v horkých letních dnech. Sofistikovaný systém podlahového vytápění přináší optimální teplotní komfort v každém koutě bytu. Předokenní žaluzie a kvalitní okna s trojskly zaručují optimální tepelnou a zvukovou izolaci. Na lodžii a balkonu je položena mrazuvzdorná keramická dlažba.
Byt se nachází v rezidenci se zvláštním důrazem na ekologii a pohodlí. Zelené střechy, retenční nádrže na dešťovou vodu a parkové úpravy s vodními prvky přispívají k příjemnému mikroklimatu. Součástí projektu je také výstavba nové mateřské školy a vytvoření rozsáhlého parku, který poskytne ideální prostor pro relaxaci a aktivní odpočinek.
Lokalita nabízí vynikající dopravní dostupnost - pouhých 5 minut chůze ke stanici metra Želivského a plánovanou novou tramvajovou trať přímo v srdci čtvrti. V okolí se nachází kompletní občanská vybavenost včetně škol, zdravotnických zařízení, obchodů a restaurací. Díky své poloze v širším centru Prahy, nadstandardnímu vybavení a promyšlenému urbanistickému řešení celé čtvrti je tento byt ideální volbou pro náročné zájemce o kvalitní bydlení.
Energetická třída PENB B — velmi úsporná.
ID: 1369
Máte zájem o tuto nemovitost?
Pomůžeme Vám!
Kontakt
 
                        Alexander Čečetkin
Přihlášení k odběru
Nenechte si ujít nejnovější nabídky prodeje bytů 3+kk v Praze 3.
Tipy Realitymatu
 
        Prodej bytu 3+1, Praha, Biskupcova, 83 m2
9 990 000 Kč
 
        Prodej bytu 2+kk, Praha - Žižkov, Cimburkova, 36 m2
6 799 000 Kč
Podobné nabídky
 
        Prodej bytu 3+kk, Praha - Žižkov, Štítného, 67 m2
9 000 000 Kč
 
        Prodej bytu 3+kk, Praha - Žižkov, Šrámkové, 112 m2
19 490 000 Kč
 
        Prodej bytu 3+kk, Praha - Žižkov, Buková, 53 m2
8 999 900 Kč
 
        Prodej bytu 3+kk, Praha - Žižkov, Seifertova, 70 m2
16 995 800 Kč
 
                                                                                     
                                                                                     
                                                                                     
                                                                                     
                                                                                     
                                                                                     
                                                                                     
                                                                                     
                                                                                     
                                                                                     
                                                                                     
                                                                                     
                                                                                     
                                                                                     
                                                                                     
                                                                                     
                                                                                     
                                                                                     
                                                                                     
                                                                                     
                                                                                     
                                                                                     
                                             
                                