Prodej domu na klíč, Pardubice, 78 m2
Pardubice, Staročernsko
(včetně DPH)
Popis
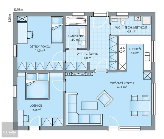
Prodám nízkoenergetický rodinný dům v Pardubicích o dispozici 3+1 s podlahovou plochou 78 m2. 
Interiér překvapí štědrým prostorem o téměř 80 m2 obytné plochy. Velkorysý obývací prostor je propojen s jídelnou a kuchyňským koutem. Velké prosklené plochy zajišťují dostatek světla v interiéru, přirozené propojení s terasou a ničím nerušený výhled do zahrady. Bungalov je ideální volbou pro všechny, kteří si přejí pohodlí bez schodů. Navíc je dům možné doplnit pergolou, garážovým stáním nebo garáží.
Za uvedenou cenu bude dům kompletně stavebně dokončen včetně krbového komínu, vytápění, obkladů, sanitárního vybavení, podlahových krytin a vnitřních dveří. 
K pozemku jsou přivedeny všechny inženýrské sítě: elektro, kanalizace, plynovod a vodovod. V celkové ceně není zahrnuta spodní stavba a domovní přípojky inženýrských sítí.
Pozemek má výměru o rozloze 432 m2. Uvedená cena je včetně pozemku a DPH. Doba výstavby je 2 - 3 měsíce.
Máte zájem o tuto nemovitost?
Štětkova 1001/5, Praha, Nusle
Pomůžeme Vám!
Pomůžeme Vám!
Kontakt
 
                        Ing. Jan Fikeis
Přihlášení k odběru
Nenechte si ujít nejnovější nabídky prodeje domů na klíč v Pardubicích.
Podobné nabídky
 
        Prodej domu na klíč, Ráby, 89 m2
9 284 510 Kč
 
        Prodej domu na klíč, Neratov, 48 m2
1 856 900 Kč
 
        Prodej domu na klíč, Libišany, 104 m2
9 939 521 Kč
 
                                                                                     
                                                                                     
                                                                                     
                                                                                     
        