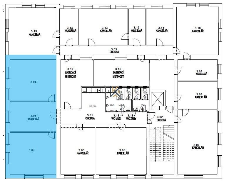
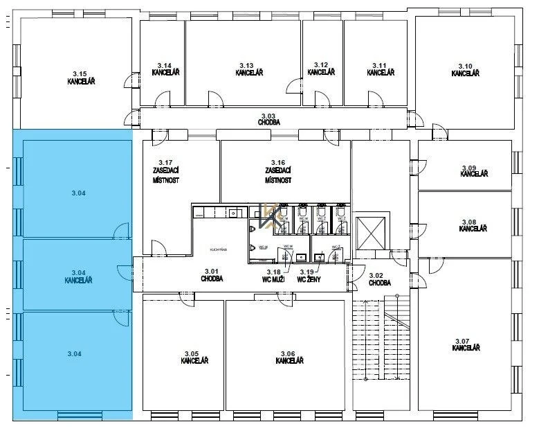
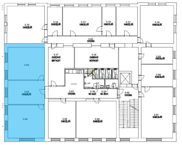
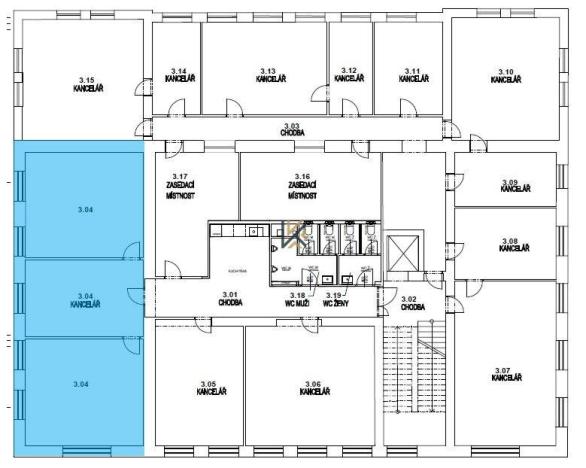
Pronájem kanceláře, Praha - Smíchov, Nádražní, 98 m2

Nádražní, Praha 5


38 875 Kč /za měsíc
Získejte výhodnou HYPOTÉKU

(+ služby 20 444 Kč/měs. + DPH)


Regionální dodavatelé v Praze 5

Stěhovací služby

Výkup a prodej starého nábytku

Popis

Neplatíte provizi ! Nabízíme k pronájmu kanceláře o výměře 98m2 v 3. nadzemním patře administrativní budovy Business Centrum Smíchov v ul. Nádražní, Praha 5 Smíchov. V březnu 2024 byla dokončena zdařilá rekonstrukce interierů (podhledy, světla, koberce, dlažba, kuchyňky vč. spotřebičů, toalety, dveře, vstupní recepce). Nájemcům je k dispozici centrální recepce s provozem Po Pá 7:00 19:00, neomezený přístup 24/7, security, kolárna, sprcha, střešní terasa 90m2 s výhledem na řeku, sdílená zasedací místnost, klimatizace, otevíratelná okna, výtah.

Možnost parkování přímo u budovy (3 500 Kč/měs.)

Pouze pár kroků od stanice metra (B) Smíchovské nádražní + Tram + Bus + Vlak.

Zdarma pro Vás připravíme nabídku kanceláří z více jak 300 budov po celé Praze.

Cena
38 875 Kč /za měsíc
Poznámka k ceně
+ služby 20 444 Kč/měs. + DPH
Aktualizováno
5. 1. 2026
Adresa
Nádražní, Praha 5
ID
963556
Stavba
Smíšená
Stav objektu
Velmi dobrý
Patro
3. z 4
Typ objektu
Patrový
Vlastnictví
Osobní
Užitná plocha
98 m2
Plocha nebytových prostor
98 m2
Třída energetické náročnosti
D - Méně úsporná
Elektřina
230V
Topení
Jiné
Doprava
Vlak, Silnice, MHD
Výtah
Parkování

Máte zájem o tuto nemovitost?

Tímto, v souladu s nařízením Evropského parlamentu a Rady (EU) 2016/679, v platném znění, prohlašuji, že mi je alespoň 16 let a uděluji tak svůj souhlas se zpracováním zadaných údajů (jméno, telefon, e-mail, ip adresa) společnosti B3 Technology, s.r.o., IČ: 07330600, se sídlem Novostavby 126/23, 435 11 Lom (správce dat), za účelem předání dotazu z tohoto formuláře Vámi vybranému inzerentovi a zpětného kontaktování mé osoby. Osobní údaje bude správce zpracovávat manuálně i automaticky přímo prostřednictvím svých zaměstnanců. Informace předané tímto formulářem budou uloženy v databázi správce maximálně po dobu 10 let. Odvolání souhlasu s uložením a zpracováním poskytnutých dat lze e-mailem na info@realitymat.cz. V případě podezření na neoprávněné použití Vámi poskytnutých údajů máte právo předat podnět k šetření Úřadu pro ochranu osobních údajů. Více informací
Chystáte se prodat nemovitost?
Pomůžeme Vám!

Kontakt

Martin Vacek

Martin Vacek

Přihlášení k odběru

Nenechte si ujít nejnovější nabídky pronájmu kanceláří v Praze 5.

Podobné nabídky