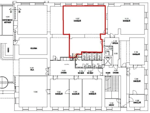
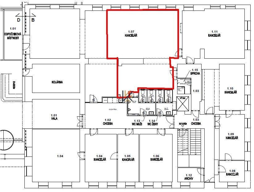
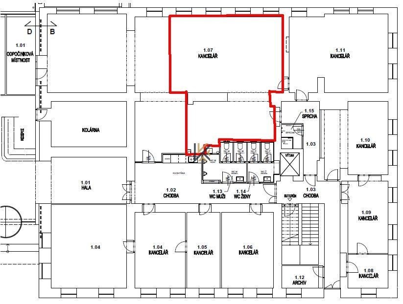
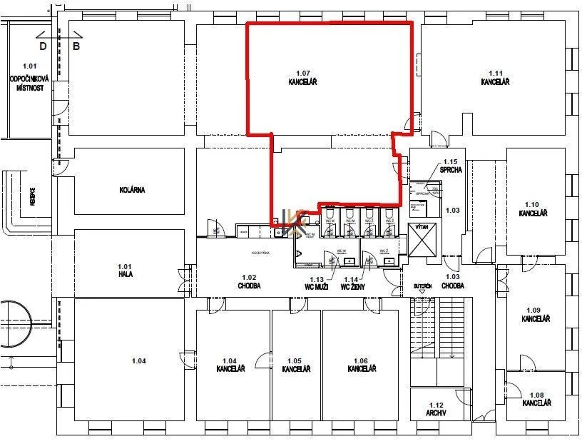
Pronájem obchodního prostoru, Praha - Smíchov, Nádražní, 94 m2
Nádražní, Praha 5
(+ služby 19 685 Kč/měs. + DPH)
Popis
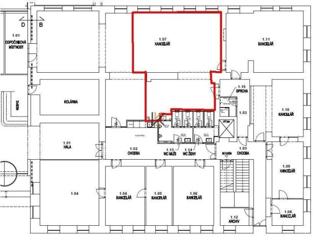
Neplatíte provizi ! Nabízíme k pronájmu komerční prostory o výměře 94m2 v přízemí administrativní budovy Business Centrum Smíchov v ul. Nádražní, Praha 5 Smíchov. V březnu 2024 byla dokončena zdařilá rekonstrukce interierů (podhledy, světla, koberce, dlažba, kuchyňky vč. spotřebičů, toalety, dveře, vstupní recepce). Nájemcům je k dispozici centrální recepce s provozem Po Pá 7:00 19:00, neomezený přístup 24/7, security, kolárna, sprcha, střešní terasa 90m2 s výhledem na řeku, sdílená zasedací místnost, klimatizace, otevíratelná okna, výtah.
Možnost parkování přímo u budovy (3 500 Kč/měs.)
Pouze pár kroků od stanice metra (B) Smíchovské nádražní + Tram + Bus + Vlak.
Zdarma pro Vás připravíme nabídku kanceláří z více jak 300 budov po celé Praze.
Máte zájem o tuto nemovitost?

Pernerova 697/35, Praha, Karlín
Pomůžeme Vám!
Pomůžeme Vám!
Kontakt

Martin Vacek
Přihlášení k odběru
Nenechte si ujít nejnovější nabídky pronájmu obchodních prostor v Praze 5.