Prodej bytu 1+1, Česká Lípa, Štursova, 39 m2
Štursova, Česká Lípa
Popis
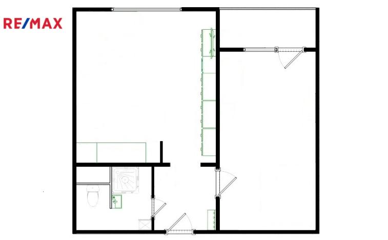
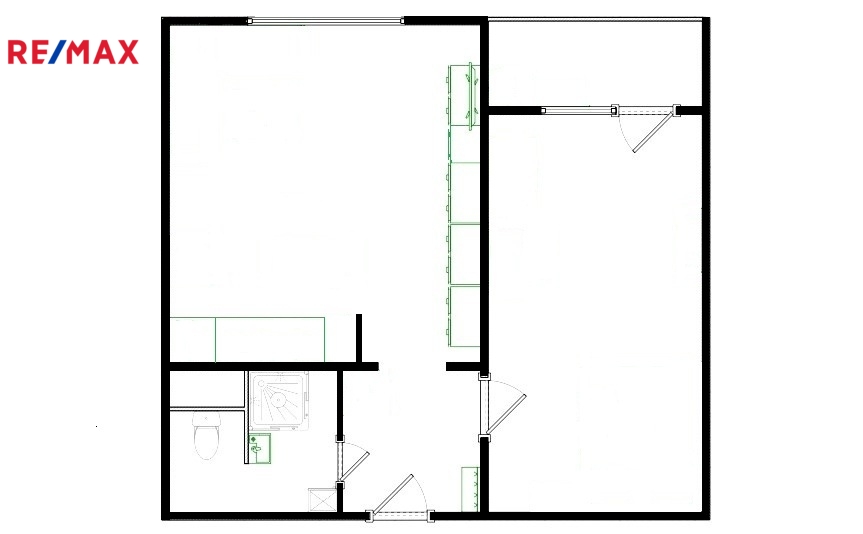
Prodej bytu 1+1 40 m2
 Přetvořte svůj sen na realitu v České Lípě! Hledáte ideální bydlení, které si můžete přizpůsobit přesně podle svých představ? Exkluzivně nabízíme byt 1+1 v klidné části sídliště Špičák v ulici Štursova. Tento byt v původním stavu je skvělou příležitostí pro ty, kteří chtějí zrealizovat svou vizi a vytvořit si domov podle svých snů!
Klíčové vlastnosti:
•	Družstevní vlastnictví: Ideální pro investory i pro vlastní bydlení.
•	Dispozice bytu: pokoj s kuchyňským koutem 17,9 m2, pokoj 14,6 m2, WC + koupelna 3,2 m2, předsíň 4,2 m2
•	Páté nadzemní patro: V zatepleném panelovém domě s energetickým štítkem C.
•	Prosklená lodžie 3,4 m2 : Užijte si výhled a příjemné chvíle na čerstvém vzduchu.
•	Modernizace: Byt je vybaven plastovými okny a sklepní kójí pro další úložný prostor.
•	Bezpečnost a komfort: V domě nový výtah a kamerový systém, který hlídá vstup a chodbu. Nově se bude na střechu instalovat solární elektrárna pro napájení společných prostor.
•	Velká parkovací kapacita: Bezproblémové parkování pro vás i vaše hosty, což je v dnešní době velkou výhodou.
•	Dětské hřiště: Skvělé místo pro vaše děti, kde si mohou hrát a rozvíjet se v bezpečném prostředí.
•	Hodně zeleně v okolí: Příjemné prostředí plné zeleně, které nabízí klid a prostor pro odpočinek a relaxaci.
Neváhejte a využijte tuto skvělou příležitost! Zavolejte nám ještě dnes a domluvte si prohlídku. Váš nový domov čeká na to, aby ožil vašimi nápady!
Máte zájem o tuto nemovitost?
 
                                Masarykova 518/4a, Liberec I-Staré Město
Pomůžeme Vám!
Pomůžeme Vám!
Kontakt
 
                        Ing. René Poupa
Přihlášení k odběru
Nenechte si ujít nejnovější nabídky prodeje bytů 1+1 v České Lípě.
Podobné nabídky
 
        Prodej bytu 1+1, Česká Lípa, Východní, 40 m2
1 995 000 Kč
 
        Prodej bytu 1+1, Nový Bor, Wolkerova, 39 m2
2 150 000 Kč
 
        Prodej bytu 1+1, Mimoň, Sídliště pod Ralskem, 35 m2
1 500 000 Kč
 
                                                                                     
                                                                                     
                                                                                     
                                                                                     
                                                                                     
                                                                                     
                                                                                     
                                                                                     
                                                                                     
                                                                                     
                                                                                     
                                                                                     
                                                                                     
                                             
        